Villa bifamiliare Contrada Bore di Tenna, Fermo

€ 355.000
5+
139 m²
2
Lusso
No

Nota

Annuncio aggiornato il 11/11/2025
Descrizione

riferimento: 1492-21451

Villa in vendita a Fermo

VISTA INFINITA
Il tuo angolo di pace con vista mare
Villetta nuova tutta su un piano, con giardino privato a Fermo
Immagina di svegliarti ogni mattina con il profumo del mare e la luce del sole che entra dalle ampie porte finestre…
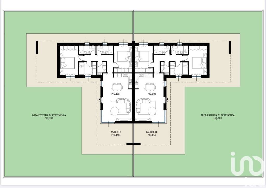
A Fermo, in una zona semicentrale tranquilla e silenziosa, nasce questo complesso di 2 villette bifamiliari e 1 singola. splendida di nuova costruzione, pensata per offrirti benessere, bellezza e totale comfort.
Tutta su un unico livello, la casa ti accoglie con una luminosa zona giorno open space, perfetta per vivere e condividere momenti speciali.
Due grandi camere matrimoniali, una camera singola, e due bagni finestrati con finiture moderne la rendono ideale per famiglie o per chi cerca spazi comodi e funzionali. Mq. 109 (con la possibilità di modifiche fino a 120) Comodissima anche il locale lavanderia.
Il vero cuore di questa casa è il giardino privato di 300 mq: un'oasi di tranquillità con una meravigliosa vista sul mare, dove godersi il relax all'aperto, cene d'estate o semplicemente un buon libro al sole.
Completano la proprietà:
•Riscaldamento a pavimento
•Aria condizionata
•Portone blindato
•Impianto fotovoltaico da 5 kW
•Due posti auto esterni
•Classe energetica A4

LE IMMAGINI DEGLI INTERNI SONO PURAMENTE INDICATIVE

Una casa dove ogni dettaglio è pensato per il tuo comfort e la tua serenità.
Non è solo un'abitazione. È la tua nuova vita a Fermo, con il mare davanti agli occhi e la tranquillità nel cuore.
Se vuoi saperne di più, puoi parlare con Raffaela Bora.
Caratteristiche
Tipologia
Villa bifamiliare | Intera proprietà | Classe immobile signorile
Contratto
Vendita
Piano
Piano terra
Piani edificio
1
Ascensore
No
Superficie
139 m²
Locali
5+
Camere da letto
2
Cucina
Cucina a vista
Bagni
2
Arredato
No
Balcone
No
Terrazzo
No
Box, posti auto
2 in box privato/box in garage, 4 in parcheggio/garage comune
Riscaldamento
Autonomo, a pavimento, alimentato a solare
Climatizzazione
Autonomo, freddo/caldo
Altre caratteristiche
  • Esposizione esterna
  • Fibra ottica
  • Impianto di allarme
  • Infissi esterni in doppio vetro / PVC
  • Porta blindata
  • Cancello elettrico
  • Impianto tv singolo
  • VideoCitofono
Dettaglio superficie

Abitazione

Piano
Piano terra
Superficie
109,0 m²
Coefficiente
100%
Tipo superficie
Principale
Sup. commerciale
109,0 m²

Giardino

Piano
Piano terra
Superficie
300,0 m²
Coefficiente
10%
Tipo superficie
Principale
Sup. commerciale
30,0 m²
Informazioni sul prezzo
Prezzo
€ 355.000
Prezzo al m²
2.554 €/m²
New
Dettaglio dei costi
Spese condominio
Nessuna spesa condominiale
Efficienza energetica

Consumo di energia

≥ 3,51 kWh/m² anno, edificio energia quasi zeroA4

Planimetria
Foto 21
Virtual tour
Scopri ogni angolo dell'immobile
+18
Mutuo
%
Durata del mutuo

Rata da € 1.054 al mese

€ 106.500 (30%)

€ 248.500 (70%)

Vuoi sapere che mutuo puoi richiedere?

Opzioni aggiuntive

Contatta l'inserzionista

Oppure