Magazzino all'asta via Monte Rosa, Arcore

da € 514.680,00
5+
1.042 m²
T

Nota

Annuncio aggiornato il 29/07/2025
Descrizione

riferimento: INC.MONZA-24/10/2025-67/2024-domenico-4430267

Fabbricato all'asta in Via Monte Rosa

RIFERIMENTO: 4430267
Via Monte Rosa, 75, 20862 Arcore MB, Italia, 20862 Arcore Monza e della Brianza

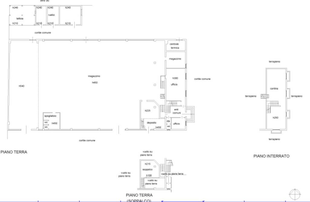
Immobile composto da un fabbricato produttivo destinato a magazzino/deposito, con antistante porzione su due piani con locali ufficio al piano rialzato, locale cantina all'interrato, locale magazzino e centrale termica al piano terra, oltre a rustici esterni e tettoie e appartamento al primo piano, sito in area periferica a vocazione produttiva commerciale, con accesso dalla via pubblica mediante passaggio comune su altro lotto.
Data di vendita 24/10/2025
Offerta minima 514.680,00 €
Valore di Mercato dell'immobile nello stato di fatto e di diritto in cui si trova: €. 914.991,15

La data di vendita è molto vicina e pensi di non fare in tempo a partecipare? Rispondiamo tutti i giorni H24

Studio di Fattibilità Pre-Asta

Offriamo consulenza legale completa per l'acquisto tramite asta giudiziaria. I nostri servizi includono:

Ricerca dell'immobile secondo le esigenze del cliente
Studio di fattibilità pre-asta in fase di richiesta di visita
Studio di fattibilità del mutuo tramite banche convenzionate
Esame della perizia e documentazione correlata
Verifica legale
Preparazione e deposito delle offerte di partecipazione
Gestione della gara
Consulenza e documentazione post-aggiudicazione fino all'emissione del decreto di trasferimento o del rogito

Vi invitiamo a fissare una prima consulenza gratuita presso una delle nostre 80 sedi sparse su tutto il territorio per ricevere maggiori informazioni sul processo di partecipazione ad un'asta giudiziaria, tempistiche, costi e modalità di acquisto.

Ulteriore documentazione disponibile verrà messa a disposizione durante la consulenza.
+39 06 4006 1824
Visitate il nostro sito www.asteflorio.com dove potrete trovare più di 25.000 Aste disponibili e la nuova sezione dedicata agli NPL.
NB: Le immagini potrebbero essere solo esempi e non rappresentare gli immobili reali. Le coordinate geografiche, fornite automaticamente da Google, possono contenere inesattezze. Segnalate eventuali errori e rimuoveremo gli annunci non conformi.
L'ESATTEZZA DI TUTTI I DATI PUBBLICATI INOLTRE SARA' CONFERMATA IN SEDE DI CONSULENZA.
Se vuoi saperne di più, puoi parlare con Aste Florio.

Di solito risponde entro 12 ore

Caratteristiche
Contratto
Vendita
Tipologia
Magazzino | Intera proprietà | Classe immobile media
Superficie
1.042 m²
Locali
5+ locali, 1 bagno, cucina angolo cottura
Piano
Piano terra
Piani edificio
2
Disponibilità
Libero
Dati catastali
Foglio 10 - Particella 137
Altre caratteristiche
  • Parzialmente Arredato
Dettaglio superficie

Magazzino - Deposito

Piano
Piano terra
Superficie
1.042,1 m²
Coefficiente
100%
Tipo superficie
Principale
Sup. commerciale
1.042,1 m²
Efficienza energetica

Consumo di energia

≥ 175 kWh/m² annoG

Dettaglio vendite
Tipo vendita
Senza incanto
Data vendita
24/10/2025, 16:00
Stato
Non partecipabile
Per partecipare
Offerta minima
€ 514.680,00
Spesa prenota debito
No
Contributo non dovuto
No
Referente
INC.MONZA-24/10/2025-67/2024-domenico-4430267
Dettagli lotto
Lotto numero
LOTTO UNICO
Numero immobili
1
Categoria
IMMOBILE COMMERCIALE
Dati procedura
Aggiornato il
29/07/2025
Numero procedura
2024
Planimetria
Screenshot_11
Scopri ogni angolo dell'immobile
+9
Opzioni aggiuntive

Contatta l'inserzionista