Palazzo - Edificio in Vendita

€ 269.000
5
398 m²
3+
T

Nota

Annuncio aggiornato il 13/11/2025
Descrizione

riferimento: edi-290

STRUTTURA INDIPENDENTE POLIFUNZIONALE - BAULADU

Rif: edi-290 - La Tempocasa Cagliari San Benedetto propone in vendita, a Bauladu, in via Santa Vittoria, a pochi minuti da Oristano, una struttura indipendente di recente costruzione (2021), ideale per molteplici destinazioni d’uso: attività culturali, teatrali, sociali, ludico-ricreative, strutture ricettive, centri per eventi o formazione.

Caratteristiche principali:
• 398 mq di superficie coperta distribuita su due livelli
• Ampio giardino di circa 800 mq, perfetto per attività all’aperto
• Parte della struttura è già organizzata come sala conferenze
• L’altra area comprende mensa attrezzata, dormitorio e numerosi bagni
• Ottime condizioni, conclusa nel 2021

-Ideale per associazioni, cooperative, enti culturali o chi desidera investire in un progetto ricettivo o educativo in una zona tranquilla e ben collegata.
-Posizione strategica: immersa nella quiete di Bauladu, ma a breve distanza da Oristano e dalle principali arterie stradali della zona.

Questa descrizione ha valore puramente indicativo e non costituisce elemento contrattuale.

Contattaci per maggiori informazioni, planimetrie o per fissare una visita in loco! Se vuoi conoscere il valore del tuo appartamento, siamo disponibili per effettuare una CONSULENZA GRATUITA E SENZA IMPEGNO. La nostra struttura offre, PRIMA DI OGNI APPUNTAMENTO DI VISITA, la CONSULENZA DI MUTUO GRATUITA CON TASSI AGEVOLATI. Per avere ulteriori informazioni o per fissare un appuntamento può chiamarci al numero 070 7323459, mandarci un sms al nostro numero Whatsapp 3498092436 o passa a trovarci in Via Dante 120 A, Cagliari. Visita il NOSTRO SITO: https://tempocasa.it/it/agenzie-immobiliari/cagliari/cagliari/822-cagliari-san-benedetto/annunci e le NOSTRE PAGINE FACEBOOK: https://www.facebook.com/profile.php?id=100057383210834 e INSTAGRAM: https://instagram.com/tempocasa_cagliari_s.benedetto?igshid=MzRlODBiNWFlZA== per rimanere aggiornato su TUTTE LE NOVITA'.
Se vuoi saperne di più, puoi parlare con Giacomo Cau.

Di solito risponde entro 1 giorno

Caratteristiche
Contratto
Vendita
Tipologia
Palazzo - Edificio | Classe immobile media
Superficie
398 m²
Locali
5 locali, 3+ bagni
Piano
Piano terra
Piani edificio
1
Disponibilità
Libero
Altre caratteristiche
  • 1 balcone
  • Esposizione doppia
Dettaglio superficie

Albergo o hotel

Piano
Piano terra
Superficie
398,0 m²
Coefficiente
100%
Tipo superficie
Principale
Sup. commerciale
398,0 m²
Informazioni sul prezzo
Prezzo
€ 269.000
Prezzo al m²
676 €/m²
New
Efficienza energetica

Consumo di energia

206.29 kWh/m² annoG

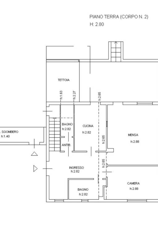
Planimetria
pln
pln
pln
pln
Scopri ogni angolo dell'immobile
+24
Opzioni aggiuntive

Contatta l'inserzionista

Oppure