Villa unifamiliare via Petronio Vecchi 127, Centro, Crevalcore

€ 434.000
5+
193 m²
3
No
Terrazzo
Arredato
Cantina

Nota

Annuncio aggiornato il 29/09/2025
Descrizione

riferimento: MERAVIGLIACREVA

CASA DI DESIGN NEL CUORE STORICO DI CREVALCORE

Un’eleganza firmata Bruno Nanni

Questa straordinaria residenza, frutto del genio creativo del progettista bolognese Bruno Nanni - già collaboratore dell’architetto Enzo Zacchiroli — incarna l’idea di casa come opera d’arte. Situata nel cuore storico di Crevalcore, a pochi passi dalla circonvallazione e dai parcheggi, è stata completamente trasformata attraverso un’attenta demolizione e ricostruzione, per dar vita a un’abitazione di assoluto prestigio.

Un progetto che coniuga modernità e calore
Linee architettoniche raffinate si fondono con materiali nobili come legno, cotto, marmo e vetro, generando ambienti dal forte impatto estetico ed emotivo. Le boiserie su misura, le librerie integrate, le nicchie e le pareti scorrevoli rivelano un’attenzione ai dettagli rara e preziosa.

Spazi generosi e distribuiti con intelligenza
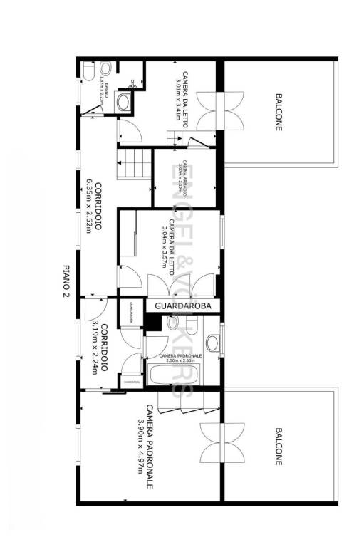
- Superficie di 194 mq su due livelli
- Doppio ingresso al piano terra: il principale su una suggestiva via del centro; il secondario verso la cantina
- Ampio soggiorno doppio con camino e doppia portafinestra affacciata sia sulla corte interna che sulla strada
- Cucina abitabile con accesso diretto alla corte privata
- Bagno di servizio al piano terra
- Zona notte al piano superiore con tre camere da letto, due bagni (uno en suite), e due terrazze panoramiche con vista sul campanile romanico

Finiture di pregio
- Parquet in faggio e travi a vista in legno nella zona giorno
- Pavimenti in ceramica e mosaici decorativi nei bagni e in cucina
- Soluzioni contenitive intelligenti e boiserie in essenze pregiate integrate nell’architettura

Le informazioni e le planimetrie qui riportate sono indicative e non costituiscono elementi contrattuali.

Posizione strategica
Come tutte le residenze firmate da Bruno Nanni, anche questa casa si distingue per una posizione centrale ma riservata, immersa nel fascino del centro storico di Crevalcore e perfettamente collegata ai principali servizi.
La cittadina, rigenerata nel 2012, offre:
- Viali pedonali punteggiati da negozi, caffetterie e ristoranti
- Una stazione ferroviaria facilmente raggiungibile a piedi, con collegamenti diretti verso Bologna e Verona
- Prossimità a città come Bologna, Modena e Ferrara

Origini:
Il nome potrebbe derivare da "crepatum corium", riferendosi a crepe nel terreno dovute alla siccità in una zona paludosa.
Castello:
Il castello, costruito da Bologna nel 1130, fu distrutto nel 1219 e ricostruito più volte.
Dominazione:
Nel corso dei secoli, Crevalcore passò sotto diverse dominazioni, inclusa quella pontificia e quella del Regno d'Italia napoleonico.
Periodo napoleonico:
Nel 1805, Crevalcore fu incluso nel Cantone di San Giovanni in Persiceto, distretto di Cento, Dipartimento del Reno.
Restaurazione e annessione:
Dopo la restaurazione pontificia, Crevalcore divenne una podesteria e, in seguito, parte della provincia di Bologna nel 1860.
Conflitti sociali:
Crevalcore fu teatro di scioperi bracciantili, come quello del 1887, e di proteste contro la guerra in Libia nel 1911.
Prima Guerra Mondiale:
Durante la guerra, Crevalcore ospitò soldati e fornì assistenza alle famiglie, subendo una perdita di membri del consiglio comunale e vedendo l'istituzione di un ospedale militare nella scuola elementare.
XX secolo:
Crevalcore fu un comune socialista fin dal 1906, riconquistando il potere dopo il 1911.
Nella campagna crevalcorese ci sono cinque antiche ville di rilevante interesse, benché scarsamente note. La prima è la villa Caprara in località Ronchi, un complesso imponente acquisito di recente dal Comune di Crevalcore di cui fanno parte un palazzo padronale (XVI secolo.?) con ambienti affrescati, due massicci torrioni (XVIII secolo) e una elegante chiesa settecentesca a pianta ellittica. In una parte del complesso (ora in via di restauro) ha sede una comunità terapeutica per la cura delle tossicodipendenze gestita dalla comunità "Il Pettirosso". In asse prospettico con la villa e distante poco meno di 2 km da essa, c'è l'oratorio privato, detto "la Rotonda" per la sua forma circolare, che fu voluto dalla contessa Maria Vittoria Caprara nel 1765 come ex voto per lo scampato annegamento del marito, il conte Francesco Montecuccoli; Interamente decorata all'interno in modo da simulare un parato di damasco a fiori, e l'espressione di un momento di delicato e instabile, ma prezioso equilibrio tra il Rococò e il Neoclassico. L'architetto fu Petronio Fancelli; le otto bellissime tele autografe di Nicola Bertuzzi (rappresentanti i momenti della vita della Vergine – cui la Rotonda e dedicata – e i santi Francesco, Martino, Luigi Gonzaga, Francesco di Paola) che ne costituiscono l'arredo pittorico sono conservate nella parrocchiale di S. Silvestro e vengono esposte nell'oratorio durante la festa della Natività di Maria (8 settembre).
Se vuoi saperne di più, puoi parlare con Luca Guicciardi.
Caratteristiche
Tipologia
Villa unifamiliare | Intera proprietà | Immobile di lusso
Contratto
Vendita
Piano
Piano terra, 1
Piani edificio
1
Ascensore
No
Superficie
193 m² | commerciale 203,2 m²
Locali
5+
Camere da letto
3
Cucina
Cucina abitabile
Bagni
3
Arredato
Balcone
No
Terrazzo
Riscaldamento
Autonomo, a radiatori, alimentato a metano
Climatizzazione
Autonomo, freddo/caldo
Altre caratteristiche
  • Armadio a muro
  • Caminetto
  • Esposizione doppia
  • Fibra ottica
  • Idromassaggio
  • Impianto di allarme
  • Infissi esterni in doppio vetro / legno
  • Porta blindata
Dettaglio superficie

Abitazione

Piano
Piano terra
Superficie
96,5 m²
Coefficiente
100%
Tipo superficie
Principale
Sup. commerciale
96,5 m²

Abitazione

Piano
1
Superficie
96,5 m²
Coefficiente
100%
Tipo superficie
Principale
Sup. commerciale
96,5 m²

Terrazzo

Piano
1
Superficie
12,0 m²
Coefficiente
30%
Tipo superficie
Accessoria
Sup. commerciale
3,6 m²

Terrazzo

Piano
1
Superficie
12,0 m²
Coefficiente
30%
Tipo superficie
Accessoria
Sup. commerciale
3,6 m²

Esterno

Piano
Piano terra
Superficie
30,0 m²
Coefficiente
10%
Tipo superficie
Accessoria
Sup. commerciale
3,0 m²
Informazioni sul prezzo
Prezzo
€ 434.000
Prezzo al m²
2.136 €/m²
New
Dettaglio dei costi
Spese condominio
Nessuna spesa condominiale
Spese riscaldamento
€ 1.500/anno
Efficienza energetica

Consumo di energia

≥ 3,51 kWh/m² annoG

Planimetria
PLAN TERRA
PLAN 1 P
Virtual tour
Scopri ogni angolo dell'immobile
+130
Mutuo
%
Durata del mutuo

Rata da € 1.289 al mese

€ 130.200 (30%)

€ 303.800 (70%)

Vuoi sapere che mutuo puoi richiedere?

Opzioni aggiuntive

Contatta l'inserzionista

Oppure