Rustico via dei Colli 3D, Centro, Mapello

€ 300.000
5
403 m²
3
Cantina

Nota

Annuncio aggiornato il 12/08/2025
Descrizione

riferimento: EK-122411782

Magnifica torre medievale

Nel borgo storico di Mapello, con una vista impareggiabile sui vigneti che la circondano, Lombardia Immobili Casa propone in vendita una splendida proprietà di interesse storico, costituita da un'antica torre medievale di avvistamento risalente al XII secolo, denominata "Torre del Barbarossa".

La Torre quadrangolare in pietra arenaria e l'edificio attiguo sono stati ripristinati in modo tale da creare ambienti interconnessi tra loro. L'intero fabbricato è stato consolidato integralmente fino al rifacimento di tutte le sue parti strutturali e del tetto, mentre l'interno è stato sistemato al rustico, dando così l'opportunità di poter decidere la destinazione degli spazi e le finiture secondo i propri desideri ed esigenze.

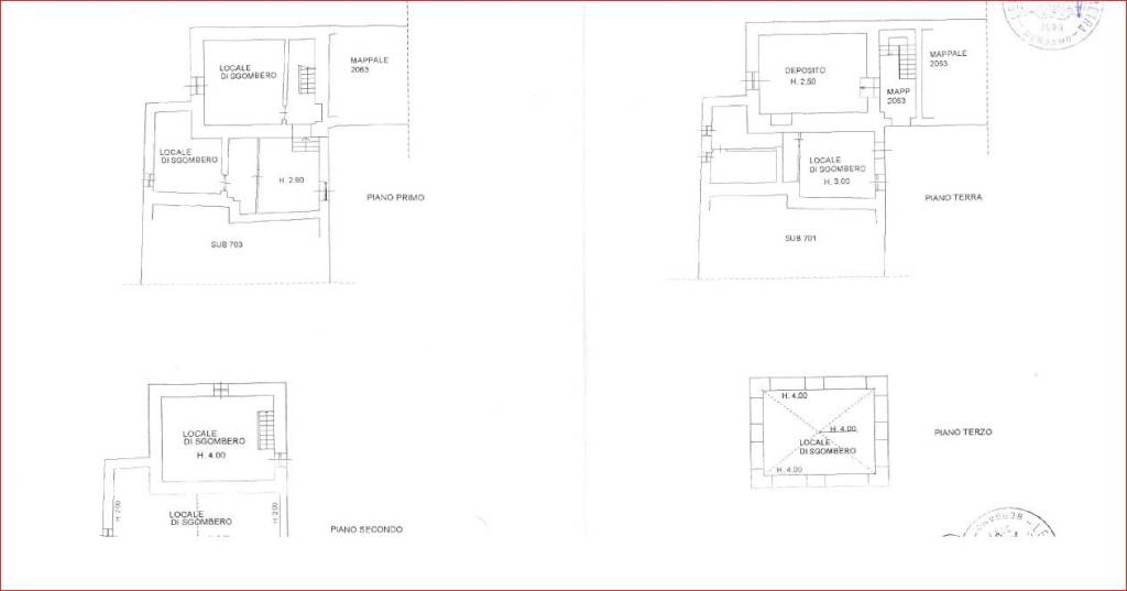
Con una superficie di 403 mq., l'edificio si sviluppa su quattro livelli abitativi, serviti anche dalla predisposizione per l'ascensore.

Antichi materiali di recupero sono stati minuziosamente ricercati e utilizzati per la ristrutturazione e in parte sono tutt'ora disponibili per il completamento.

La dimora, unica e particolare, è adatta sia come residenza privata che come piccola struttura ricettiva di charme, grazie alla sua posizione, che la colloca a breve distanza dalla città e a soli 12 km di superstrada dall'aeroporto di Orio al Serio.

La proprietà è completata da due box interrati e due posti auto di proprietà compresi nel prezzo.

Siamo a vostra disposizione per darvi tutte le informazioni utili e per fissare una visita alla torre.
Se vuoi saperne di più, puoi parlare con Andrea Tresoldi.
Caratteristiche
Tipologia
Rustico | Intera proprietà | Classe immobile signorile
Contratto
Vendita
Piano
Piano terra, da 1 a 4
Piani edificio
4
Ascensore
Superficie
403 m²
Locali
5
Camere da letto
3
Cucina
Cucina abitabile
Bagni
3
Arredato
No
Balcone
No
Terrazzo
No
Box, posti auto
2 in box privato/box in garage, 2 in parcheggio/garage comune
Altre caratteristiche
  • Armadio a muro
  • Esposizione doppia
  • Idromassaggio
  • Infissi esterni in vetro / legno
  • Mansarda
Dettaglio superficie

Abitazione

Piano
Piano terra
Superficie
105,0 m²
Coefficiente
100%
Tipo superficie
Principale
Sup. commerciale
105,0 m²

Abitazione

Piano
1
Superficie
105,0 m²
Coefficiente
100%
Tipo superficie
Principale
Sup. commerciale
105,0 m²

Abitazione

Piano
2
Superficie
105,0 m²
Coefficiente
100%
Tipo superficie
Principale
Sup. commerciale
105,0 m²

Soppalco

Piano
3
Superficie
33,0 m²
Coefficiente
100%
Tipo superficie
Principale
Sup. commerciale
33,0 m²

Abitazione

Piano
4
Superficie
55,0 m²
Coefficiente
100%
Tipo superficie
Principale
Sup. commerciale
55,0 m²
Informazioni sul prezzo
Prezzo
€ 300.000
Prezzo al m²
744 €/m²
New
Dettaglio dei costi
Spese condominio
€ 50/mese
Efficienza energetica
  • Anno di costruzione

    1100
  • Stato

    Da ristrutturare
  • Certificazione energetica

    Esente
Planimetria
Cattura
Scopri ogni angolo dell'immobile
+32
Mutuo
%
Durata del mutuo

Rata da € 891 al mese

€ 90.000 (30%)

€ 210.000 (70%)

Vuoi sapere che mutuo puoi richiedere?

Opzioni aggiuntive

Contatta l'inserzionista

Oppure