map icon

Villa unifamiliare, buono stato, 150 m², Bozzano, Quiesa, Massarosa

Massarosa
€ 339.000
5
150 m²
2
No
Terrazzo
Cantina

Nota

Annuncio aggiornato il 20/11/2025
Descrizione

riferimento: M228

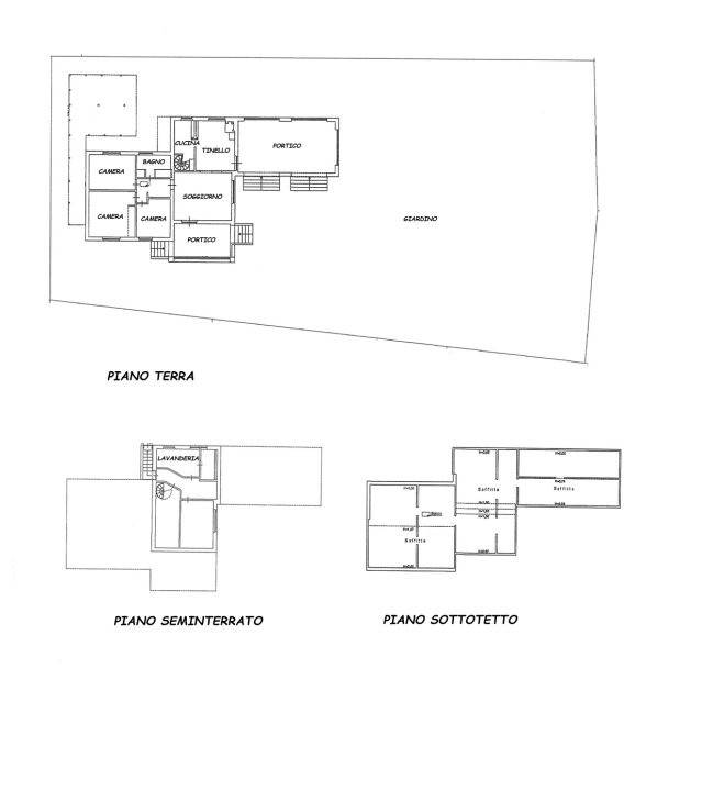
BOZZANO VILLA SINGOLA CON AMPIO GIARDINO

IMMOBILE PRENOTATO! NOSTRA ESCLUSIVA - Bozzano, in zona centrale ma tranquilla, bella villa singola, corredata da grande giardino distribuito sui quattro lati, dove è presente un'ampia zona coperta adibita a parcheggio. Si accede all'abitazione da uno dei grandi porticati, direttamente nel luminoso soggiorno, collegato alla sala da pranzo/cucina con camino, con uscita diretta sull'altro porticato; dal disimpegno si raggiunge la zona notte dove troviamo 3 camere ed il bagno finestrato con vasca e doccia; al piano seminterrato, al quale si accede sia dall'interno dell'abitazione, che direttamente dal giardino, troviamo una zona lavanderia e bagno, oltre a un ampio ripostiglio e uno spazioso vano attualmente adibito a camera; la presenza dell'accesso esterno del piano seminterrato lo rende ideale sia all'utilizzo come piccola dependance sia alla creazione di uno spazio ufficio/lavoro; la casa è inoltre dotata di una spaziosa soffitta ad uso ripostiglio, con accesso da botola ubicata nel disimpegno notte. La casa si presenta in ottime condizioni di manutenzione. Possibilità di realizzare piscina. Non si può desiderare di più! Chiama oggi stesso per prenotare la tua visita.
Caratteristiche
Tipologia
Villa unifamiliare | Intera proprietà
Contratto
Vendita
Piano
Piano terra
Piani edificio
2
Ascensore
No
Superficie
150 m²
Locali
5
Camere da letto
3
Cucina
Cucina a vista
Bagni
2
Arredato
No
Balcone
No
Terrazzo
Box, posti auto
4 in parcheggio/garage comune
Riscaldamento
Autonomo, alimentato a metano
Climatizzazione
Autonomo, freddo/caldo
Altre caratteristiche
  • Caminetto
  • Esposizione doppia
  • Fibra ottica
  • Impianto di allarme
  • Infissi esterni in doppio vetro / legno
  • Mansarda
  • Porta blindata
  • Taverna
Informazioni sul prezzo
Prezzo
€ 339.000
Prezzo al m²
2.260 €/m²
New
Dettaglio dei costi
Spese condominio
Nessuna spesa condominiale
Efficienza energetica

Consumo di energia

286.97 kWh/m² annoF

Planimetria
Planimetria
Scopri ogni angolo dell'immobile
+12
Mutuo
%
Durata del mutuo

Rata da € 1.007 al mese

€ 101.700 (30%)

€ 237.300 (70%)

Vuoi sapere che mutuo puoi richiedere?

Opzioni aggiuntive

Contatta l'inserzionista

Oppure