Capannone in Vendita

€ 320.000
725 m²
3+

Nota

Annuncio aggiornato il 27/09/2025
Descrizione

riferimento: 61099384

COSA SAPERE SULL'IMMOBILE
A Reggiolo, nella zona artigianale, a soli 2 km dal casello autostradale di Rolo-Reggiolo, proponiamo in vendita un capannone semi-indipendente di circa 725 mq commerciali, con area cortiliva di pertinenza esclusiva su un lato.
DESCRIZIONE E PARTICOLARITÀ
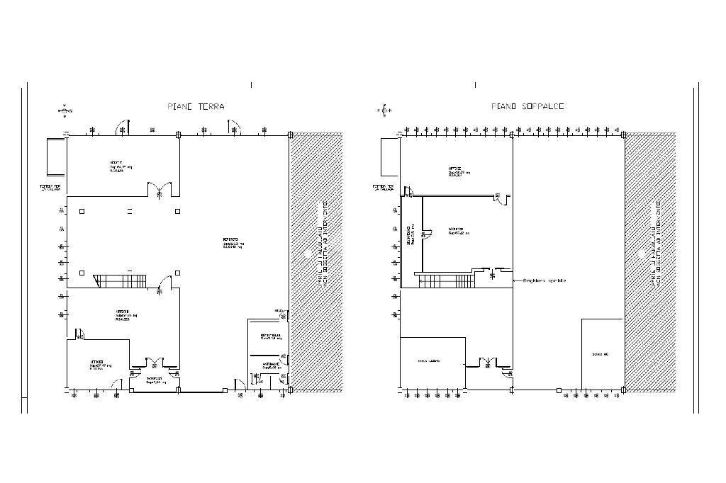
L’immobile è situato in posizione di testa all’interno di un più ampio complesso di capannoni a schiera. Al piano terra troviamo 500 mq calpestabili, suddivisi in 255 mq di uffici e 245 mq di area produttiva, servita da un portone carrabile sul fronte e da uno sul retro, che consente l’accesso all’area cortiliva, mentre al piano primo sono presenti 157 mq corca destinati a uffici
L’intero stabile è dotato di impianto di riscaldamento, servizi igienici e impianto fotovoltaico da 19,32 kW.
Punto di forza dell’immobile è l’ampia area cortiliva condominiale antistante, camionabile, dalla quale si accede direttamente all’area cortiliva privata sul lato di 350mq. Questa caratteristica rende lo stabile particolarmente funzionale alle operazioni di carico e scarico con mezzi pesanti.
Disponibile da fine novembre 2025
Se vuoi saperne di più, puoi parlare con Marco Rizzardi ..

Di solito risponde entro 12 ore

Caratteristiche
Contratto
Vendita
Tipologia
Capannone
Superficie
725 m²
Locali
3+ bagni
Informazioni sul prezzo
Prezzo
€ 320.000
Prezzo al m²
441 €/m²
New
Efficienza energetica
  • Anno di costruzione

    1990
  • Stato

    Buono / Abitabile
  • Riscaldamento

    Autonomo, a radiatori, alimentato a metano
  • Climatizzatore

    Autonomo
Planimetria
Planimetria
Scopri ogni angolo dell'immobile
+10
Opzioni aggiuntive

Contatta l'inserzionista

Oppure