Palazzo - Edificio in Vendita

€ 157.000
5+
742 m²
3+

Nota

Annuncio aggiornato il 26/09/2025
Descrizione

riferimento: NC109-2025

RENO CENTESE DI CENTO (FE)

La Massi Immobiliare é lieta di proporre in vendita un intero complesso immobiliare completamente da ristrutturare in periferia di Cento, in ottima posizione posto su strada principale, comodo per raggiungere i principali centri abitativi ben serviti come Cento, Finale Emilia, Casumaro, Bondeno ed altri di piccola densità abitativa.
La struttura è da ristrutturare completamente, ma la posizione ottimale e l'offerta proposta danno ampie soluzioni abitative personalizzabili personali o come forma d'investimento. Il palazzo si dispone su tre lati liberi con area di proprietà esterna e cortile interno con recinzione e cancellata imponente, esternamente troviamo un negozio al piano terra di grandi dimensioni con disimpegno disposto ad angolo sulle vie principali tra Reno Centese e Reno Finalese verso Casumaro, nella parte posteriore del palazzo troviamo soluzioni immobiliare completamente da ristrutturare dove si possono ricavare unità abitative indipendenti con ingresso in esclusiva in vialetto di proprietà. Internamente al cortile in ingresso su via Finalese troviamo più vani accessori al piano terreno e più appartamenti disposti uno al piano primo e secondo con ingresso in comune speculari con una cucina, una camera, una sala ed un bagno, compreso di accessori al piano terra adiacenti ad essi come garage, cantina e sgombero. Gli altri due appartamenti con ingresso a fianco ai precedente descritti, sono composti da ingresso, una cucina, due camere ed un bagno, ripostigli e sgombero, poi troviamo un altro disposto con altrettanti ambienti tutti completamente da ristrutturare. Per non essere ripetitivo sono in media soluzioni abitative da ristrutturare costituite da camera, zona giorno e servizi. Considerando tutta l'offerta é un'ottima forma d'investimento, per visite ed informazioni contattate la sede della Massi Immobiliare o Nicola Carbonara al 348.79.35.598 anche tramite WApp.
Se vuoi saperne di più, puoi parlare con Massimiliano Massi.
Caratteristiche
Contratto
Vendita
Tipologia
Palazzo - Edificio | Classe immobile economica
Superficie
742 m²
Locali
5+ locali, 3+ bagni
Piano
3 piani: Piano terra, da 1° a 2°, con accesso disabili
Piani edificio
3
Box, posti auto
2 in box privato/box in garage, 4 in parcheggio/garage comune
Disponibilità
Libero
Altre caratteristiche
  • Esposizione doppia
  • Infissi esterni in vetro / legno
Dettaglio superficie

Appartamento

Piano
Piano terra
Superficie
85,0 m²
Coefficiente
100%
Tipo superficie
Principale
Sup. commerciale
85,0 m²

Appartamento

Piano
Piano terra
Superficie
59,0 m²
Coefficiente
100%
Tipo superficie
Principale
Sup. commerciale
59,0 m²

Appartamento

Piano
Piano terra
Superficie
174,0 m²
Coefficiente
100%
Tipo superficie
Principale
Sup. commerciale
174,0 m²

Appartamento

Piano
Piano terra
Superficie
82,0 m²
Coefficiente
100%
Tipo superficie
Principale
Sup. commerciale
82,0 m²

Negozio - Locale commerciale

Piano
Piano terra
Superficie
64,0 m²
Coefficiente
100%
Tipo superficie
Principale
Sup. commerciale
64,0 m²

Box o garage

Piano
Piano terra
Superficie
11,0 m²
Coefficiente
50%
Tipo superficie
Principale
Sup. commerciale
5,5 m²

Box o garage

Piano
Piano terra
Superficie
11,0 m²
Coefficiente
50%
Tipo superficie
Principale
Sup. commerciale
5,5 m²

Giardino

Piano
Piano terra
Superficie
300,0 m²
Coefficiente
10%
Tipo superficie
Principale
Sup. commerciale
30,0 m²

Appartamento

Piano
1
Superficie
122,0 m²
Coefficiente
100%
Tipo superficie
Principale
Sup. commerciale
122,0 m²

Appartamento

Piano
2
Superficie
115,0 m²
Coefficiente
100%
Tipo superficie
Principale
Sup. commerciale
115,0 m²
Informazioni sul prezzo
Prezzo
€ 157.000
Prezzo al m²
212 €/m²
New
Efficienza energetica

Consumo di energia

≥ 175 kWh/m² annoG

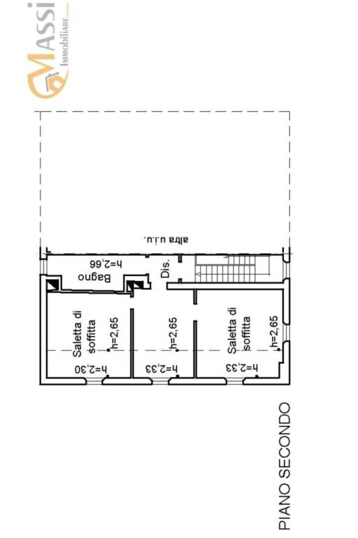
Planimetria
PLANIMETRIA (68)
PLANIMETRIA (70)
PLANIMETRIA (73)
PLANIMETRIA (71)
Virtual tour
Scopri ogni angolo dell'immobile
+71
Inserzionista
scheda agenzia
Mutuo
%
Durata del mutuo

Rata da € 466 al mese

€ 47.100 (30%)

€ 109.900 (70%)

Vuoi un preventivo personalizzato e gratuito?

Opzioni aggiuntive

Contatta l'inserzionista

Oppure