Bilocale via Torretta, 21, Borgo Palazzo, Bergamo

€ 95.000
2
54 m²
1
T
No
Arredato

Nota

Annuncio aggiornato il 29/08/2025
Descrizione

riferimento: 25/018B

Grazioso pied a terre Termoautonomo

**Bilocale in Vendita - Ideale per Investimento! **
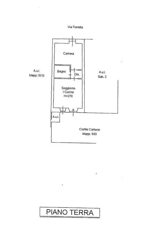
Grazioso e accogliente perfetto come pied à terre o per investimento sicuro, posto al piano terreno vendiamo accogliente bilocale composto da soggiorno con angolo cottura, una camera da letto e confortevole bagno cieco con doccia, la disposizione degli spazi è ottimale e confortevole garantendo comfort e funzionalità.
L'appartamento è termoautonomo e pronto per essere abitato con con consegna immediata, inoltre cè la possibilità di aggiungere un box singolo adiacente all'ingresso, di cui vantaggio da non sottovalutare!
Pur essendo situato in zona centrale e ben servita, garantisce un ottima privacy e tranquillità.
Rappresenta sicuramente un'ottima opportunità per chi cerca un immobile pronto all'uso.
Contattaci per avere maggiori informazioni!
Se vuoi saperne di più, puoi parlare con Bruno Togni.
Caratteristiche
Tipologia
Appartamento | Intera proprietà
Contratto
Vendita
Piano
Piano terra
Piani edificio
2
Ascensore
No
Superficie
54 m²
Locali
2
Camere da letto
1
Cucina
Cucina angolo cottura
Bagni
1
Arredato
Balcone
No
Terrazzo
No
Box, posti auto
1 in box privato/box in garage
Riscaldamento
Autonomo, a radiatori, alimentato a metano
Altre caratteristiche
  • Esposizione interna
  • Infissi esterni in doppio vetro / legno
Dettaglio superficie

Abitazione

Piano
Piano terra
Superficie
45,0 m²
Coefficiente
100%
Tipo superficie
Principale
Sup. commerciale
45,0 m²

Box o garage

Piano
Piano terra
Superficie
18,0 m²
Coefficiente
50%
Tipo superficie
Principale
Sup. commerciale
9,0 m²
Informazioni sul prezzo
Prezzo
€ 95.000
Prezzo al m²
1.759 €/m²
New
Dettaglio dei costi
Spese condominio
€ 41/mese
Efficienza energetica

Consumo di energia

295.36 kWh/m² annoG

Planimetria
Skeda_Appartamento 1
Scopri ogni angolo dell'immobile
+5
Mutuo
%
Durata del mutuo

Rata da € 282 al mese

€ 28.500 (30%)

€ 66.500 (70%)

Vuoi sapere che mutuo puoi richiedere?

Opzioni aggiuntive

Contatta l'inserzionista

Oppure