Capannone in Affitto

€ 2.400/mese
414 m²
2

Nota

Zenso

Prestiti online e veloci

Confronta le offerte in 1 minuto

Annuncio aggiornato il 14/10/2025
Descrizione

riferimento: 61083702

SAVIGNANO SUL RUBICONE
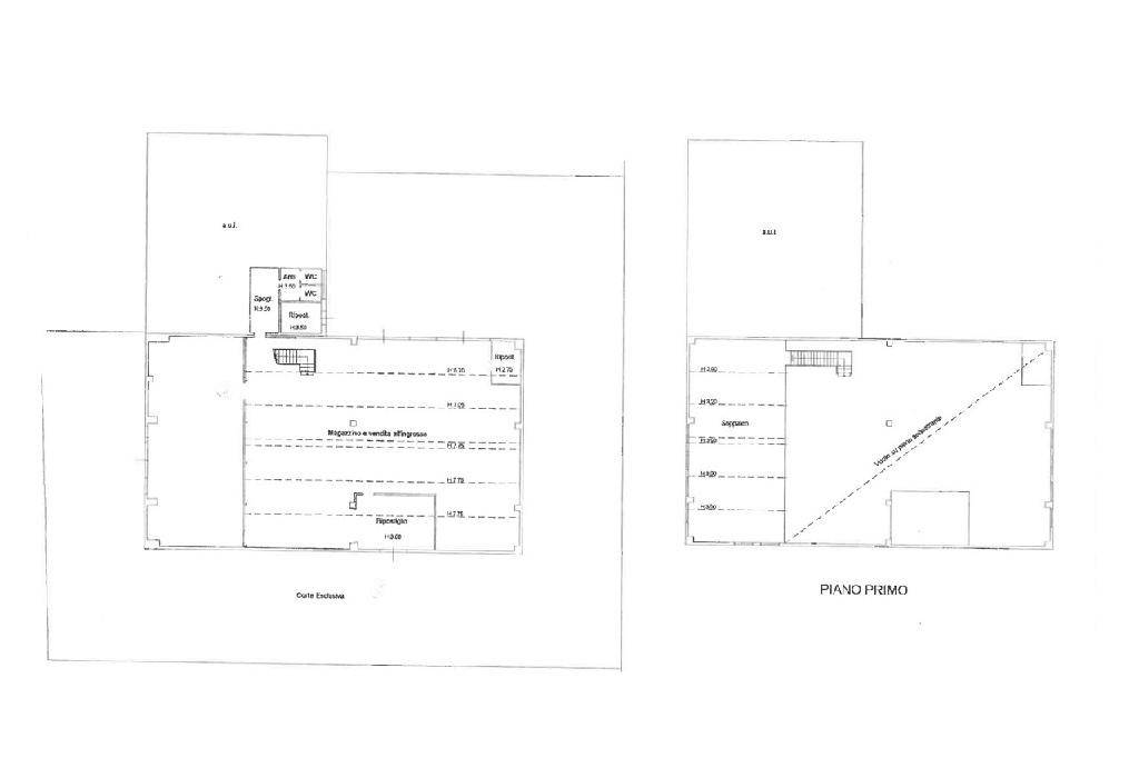
In una strategica zona artigianale affiancato alla via Emilia, proponiamo in locazione un capannone per il commercio all'ingrosso posto su più livelli.
L'immobile, cui è stata rifatta la guaina del tetto nel 2023, si estende su una superficie totale di 414 mq ed è così suddiviso:
. un magazzino di 356 mq, perfetto per il commercio all'ingrosso, con spogliatoio, antibagno e due bagni.
. un soppalco di 117 mq utilizzabile come magazzino
. corte privata cementata di quasi 700 mq che offre spazio per il carico e lo scarico, oltre a eventuali esigenze di stoccaggio.
Il capannone è fornito di carroponte con prtata 2 tonnellate.
La posizione è particolarmente vantaggiosa, essendo affiancata alla via Emilia e nelle immediate vicinanze di un supermercato, garantendo così un'ottima visibilità e accessibilità.
Per maggiori informazioni contatta il numero 0541.454488 o manda una mail all'indirizzo fohrt@tecnocasa.it
Se vuoi saperne di più, puoi parlare con Claudia Coppari ..

Di solito risponde entro 12 ore

Caratteristiche
Contratto
Affitto
Tipologia
Capannone
Superficie
414 m²
Locali
2 bagni
Box, posti auto
5 in box privato/box in garage, 5 in parcheggio/garage comune
Informazioni sul prezzo
Prezzo
€ 2.400/mese
Prezzo al m²
6 €/m²
New
Dettaglio dei costi
Spese condominio
Nessuna spesa condominiale
Cauzione
Non indicata
Efficienza energetica

Consumo di energia

F

Planimetria
planimetria
Scopri ogni angolo dell'immobile
+14
Opzioni aggiuntive

Contatta l'inserzionista

Oppure