map icon

Villa unifamiliare, buono stato, 180 m², Piano di Mommio, Massarosa

Massarosa
€ 385.000
5+
180 m²
2
No
Balcone
Terrazzo
Cantina

Nota

Annuncio aggiornato il 18/08/2025
Descrizione

riferimento: M214

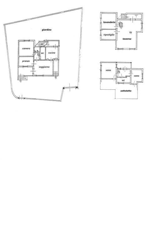
VILLA SINGOLA IN PIANO DI MOMMIO

IN ESCLUSIVA CONGIUNTA. Villa singola ubicata in Piano di Mommio, corredata da giardino su 4 lati con parcheggio interno. La casa si sviluppa su 3 livelli: al piano terra prendono posto l'ampio soggiorno d'ingresso, la cucina con balcone ed uscita nel giardino e la sala da pranzo (che potrebbe essere adibita ad ulteriore camera), dal disimpegno si raggiungono la camera matrimoniale ed il bagno; al piano mansardato si trovano il secondo bagno, 2 vani attualmente adibiti a camera ed un balcone; al piano seminterrato si trova la grande taverna living con caminetto, grande ripostiglio e lavanderia. Alla taverna si accede sia direttamente dall'interno dell'abitazione, sia mediante scala esterna che conduce nel giardino.
Caratteristiche
Tipologia
Villa unifamiliare | Classe immobile media
Contratto
Vendita
Piano
Piano terra
Piani edificio
3
Ascensore
No
Superficie
180 m²
Locali
5+
Camere da letto
3
Bagni
2
Balcone
Terrazzo
Box, posti auto
3 in parcheggio/garage comune
Riscaldamento
Autonomo, alimentato a metano
Altre caratteristiche
  • Caminetto
  • Esposizione doppia
  • Fibra ottica
  • Infissi esterni in doppio vetro / legno
  • Mansarda
  • Porta blindata
  • Taverna
  • Impianto tv singolo
Informazioni sul prezzo
Prezzo
€ 385.000
Prezzo al m²
2.139 €/m²
New
Dettaglio dei costi
Spese condominio
Nessuna spesa condominiale
Efficienza energetica

Consumo di energia

216.59 kWh/m² annoG

Planimetria
Planimetria
Scopri ogni angolo dell'immobile
+13
Mutuo
%
Durata del mutuo

Rata da € 1.144 al mese

€ 115.500 (30%)

€ 269.500 (70%)

Vuoi sapere che mutuo puoi richiedere?

Opzioni aggiuntive

Contatta l'inserzionista

Oppure