Attico via Senato 35, Quadrilatero della Moda, Milano

€ 2.000/mese
1
25 m²
1
7
Arredato

Nota

Zenso

Prestiti online e veloci

Confronta le offerte in 1 minuto

Annuncio aggiornato il 21/08/2025
Descrizione

riferimento: Sen25

Il tuo attico con vista mozzafiato in Via Senato

Immagina di svegliarti ogni mattina con una vista spettacolare sul Duomo e sul Quadrilatero della Moda. Questo attico monolocale di 25 mq, situato al settimo e ultimo piano di un elegante palazzo in Via Senato, offre un'opportunità unica.
L'appartamento, attualmente in fase di totale ristrutturazione, sarà consegnato completamente arredato, pronto per essere abitato.
Dettagli:
• Attico all'ultimo piano (7°)
• Vista panoramica su Milano
• Luminoso grazie alla doppia esposizione
• Servizi completi: riscaldamento e acqua calda centralizzati, ascensore e portineria.
• Disponibile dal 1° novembre 2025.
Prezzi:
• Canone annuo: €24.000
• Spese: €2.700 circa/anno
Un'opportunità unica per vivere nel cuore di Milano, in una posizione esclusiva e con tutti i comfort. Le foto degli interni saranno disponibili appena ultimati i lavori.
APE G IPE 292,90

Le presenti informazioni e planimetrie sono puramente indicative e non costituiscono elementi contrattuali.
Per una valutazione accurata si consiglia di effettuare una visita in loco.
chiama +39 3358156236
*Vendi o affitti il tuo immobile?*
Contattami per una valutazione gratuita!
Saprò consigliarti il metodo migliore per una corretta e veloce conclusione dell’affare.
Affidati sempre a dei veri professionisti!!
Se vuoi saperne di più, puoi parlare con Sabrina Nasi.
Caratteristiche
Tipologia
Attico | Intera proprietà | Classe immobile signorile
Contratto
Affitto, 4+4
Piano
7
Piani edificio
7
Ascensore
Superficie
25 m²
Locali
1
Camere da letto
1
Cucina
Cucina angolo cottura
Bagni
1
Arredato
Balcone
No
Terrazzo
No
Riscaldamento
Centralizzato, a radiatori, alimentato a metano
Climatizzazione
Predisposizione impianto
Altre caratteristiche
  • Esposizione esterna
  • Fibra ottica
  • Infissi esterni in doppio vetro / metallo
  • Porta blindata
  • Impianto tv centralizzato
Dettaglio superficie

Abitazione

Piano
7
Superficie
25,0 m²
Coefficiente
100%
Tipo superficie
Principale
Sup. commerciale
25,0 m²
Informazioni sul prezzo
Prezzo
€ 2.000/mese
Prezzo al m²
80 €/m²
New
Dettaglio dei costi
Spese condominio
€ 225/mese
Cauzione
€ 6.000
Efficienza energetica

Consumo di energia

292 kWh/m² annoG

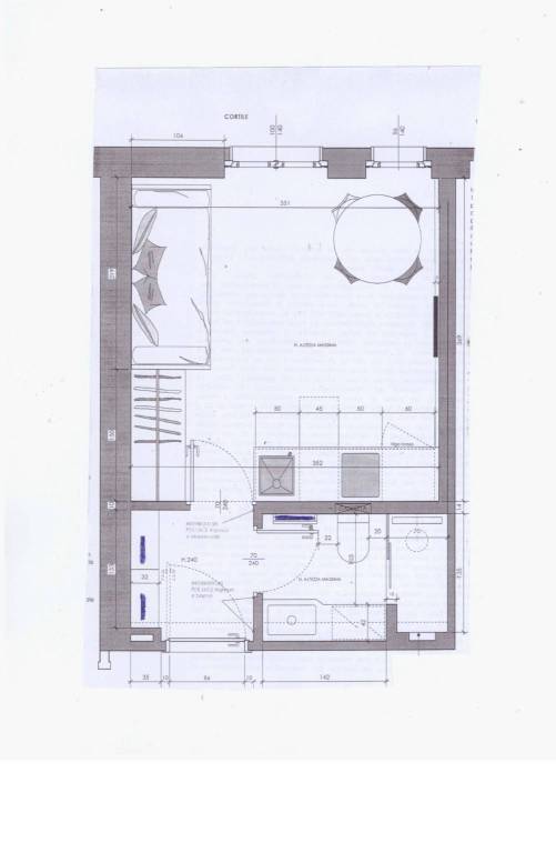
Planimetria
15E776E8-0448-4F25-86A3-DDDDFE74CB84_1_201_a
Opzioni aggiuntive

Contatta l'inserzionista

Oppure