Capannone in Affitto

€ 5.833/mese
3
1.750 m²
3

Nota

Zenso

Prestiti online e veloci

Confronta le offerte in 1 minuto

Annuncio aggiornato il 27/08/2025
Descrizione

riferimento: 27000

Capannone + Palazzina Uffici in affitto a Albairate

Capannone con uffici in affitto ad Albairate
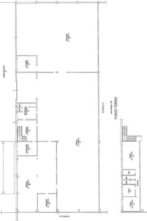
Capannone industriale con uffici di mq. 1.750 più area esterna mq. 1.100

Proponiamo in affitto nel comune di Albairate, in posizione strategica e comodo la S.P. 114 e l'uscita 4 CUSAGO TANG. OVEST, capannone industriale di circa mq. 1600 con altezza di mt. 6 sotto trave suddiviso in tre ambienti separati, di cui due destinati ad officina meccanica e uno a deposito oltre la zona lavaggio e corpo servizi con spogliatoio. Uffici di circa mq. 150 di buone finiture, riscaldati/condizionati e cablati, posti al piano primo collegati da corpo scale e con accesso indipendente. Cortile esterno di pertinenza di circa mq. 1.100; comodo accesso mezzi, disponibile subito.
Se vuoi saperne di più, puoi parlare con Marco De Luigi.
Caratteristiche
Contratto
Affitto
Tipologia
Capannone
Superficie
1.750 m²
Locali
3 locali, 3 bagni - uno o più adatto a persone disabili
Piano
2 piani: Piano terra, 1°, con accesso disabili
Piani edificio
2
Box, posti auto
4 in parcheggio/garage comune
Disponibilità
Libero
Altezza sottotrave
6 m
Altre caratteristiche
  • Docce
  • Impianto di allarme
  • Passo carrabile
  • Recintato
  • Spogliatoio
Dettaglio superficie

Capannone

Piano
Piano terra
Superficie
1.600,0 m²
Coefficiente
100%
Tipo superficie
Principale
Sup. commerciale
1.600,0 m²

Ufficio o Studio

Piano
1
Superficie
150,0 m²
Coefficiente
100%
Tipo superficie
Principale
Sup. commerciale
150,0 m²
Informazioni sul prezzo
Prezzo
€ 5.833/mese
Prezzo al m²
3 €/m²
New
Dettaglio dei costi
Spese condominio
Nessuna spesa condominiale
Cauzione
€ 17.500
Efficienza energetica

Consumo di energia

≥ 175 kWh/m² annoG

Planimetria
Planimetria
Virtual tour
Scopri ogni angolo dell'immobile
+20
Opzioni aggiuntive

Contatta l'inserzionista

Oppure