Capannone in Affitto

€ 800/mese
117 m²

Nota

Zenso

Prestiti online e veloci

Confronta le offerte in 1 minuto

Annuncio aggiornato il 14/10/2025
Descrizione

riferimento: 61103254

SAVIGNANO SUL RUBICONE
Capannone commerciale di 117 mq sito in una strategica zona artigianale disponibile in locazione.
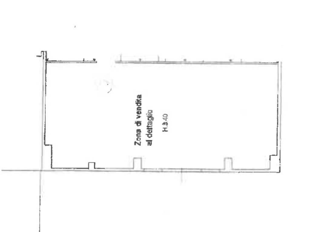
Affiancato alla via Emilia, l'immobile è composto da un locale di 117 mq alto 3,40 mt adibito al commercio al dettaglio. All'esterno è presente una corte di 250 mq in parte asfaltata.
L'immobile non è provvisto di bagno.
La posizione è particolarmente vantaggiosa, essendo affiancata alla via Emilia e nelle immediate vicinanze di un supermercato, garantendo così un'ottima visibilità e accessibilità.
Per maggiori informazioni contatta il numero 0541.454488 o manda una mail all'indirizzo fohrt@tecnocasa.it
Se vuoi saperne di più, puoi parlare con Claudia Coppari ..

Di solito risponde entro 12 ore

Caratteristiche
Contratto
Affitto
Tipologia
Capannone
Superficie
117 m²
Box, posti auto
3 in box privato/box in garage, 3 in parcheggio/garage comune
Disponibilità
Libero
Informazioni sul prezzo
Prezzo
€ 800/mese
Prezzo al m²
7 €/m²
New
Dettaglio dei costi
Spese condominio
Nessuna spesa condominiale
Cauzione
Non indicata
Efficienza energetica

Consumo di energia

F

Planimetria
planimeria
Scopri ogni angolo dell'immobile
+6
Opzioni aggiuntive

Contatta l'inserzionista

Oppure