Villa bifamiliare via degli Appennini 129, Centro, Fermo

€ 147.000
5+
200 m²
2
Balcone

Nota

Annuncio aggiornato il 29/08/2025
Descrizione

riferimento: EK-122774076

Casa singola da ristrutturare

L'Agenzia Immobiliare Palmieri propone in vendita casa singola con giardino da ristrutturare a Fermo. In posizione strategica a 2 km dal centro storico e con tutti i servizi essenziali raggiungibili a piedi, questa soluzione rappresenta una vera occasione per chi è alla ricerca di una casa singola con ampi spazi sia interni che esterni.
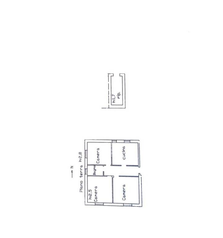
Attualmente l'immobile è suddiviso in: un appartamento a piano terra di circa 90 mq, un appartamento al primo piano di 100 mq e una mansarda. Completa la proprietà un ampio giardino.
Contattaci per una visita.
Caratteristiche
Tipologia
Villa bifamiliare | Intera proprietà | Classe immobile media
Contratto
Vendita
Piano
Piano terra
Piani edificio
3
Superficie
200 m²
Locali
5+
Camere da letto
4
Cucina
Cucina angolo cottura
Bagni
2
Balcone
Box, posti auto
2 in parcheggio/garage comune
Riscaldamento
Autonomo, alimentato a metano
Altre caratteristiche
  • Esposizione esterna
  • Mansarda
Dettaglio superficie

Abitazione

Piano
Piano terra
Superficie
200,0 m²
Coefficiente
100%
Tipo superficie
Principale
Sup. commerciale
200,0 m²
Informazioni sul prezzo
Prezzo
€ 147.000
Prezzo al m²
735 €/m²
New
Efficienza energetica
  • Anno di costruzione

    1950
  • Stato

    Da ristrutturare
  • Riscaldamento

    Autonomo, alimentato a metano
  • Certificazione energetica

    Non classificabile
Planimetria
WhatsApp Image 2025-08-29 at 15.26.17(1)
WhatsApp Image 2025-08-29 at 15.26.51
Scopri ogni angolo dell'immobile
+18
Mutuo
%
Durata del mutuo

Rata da € 437 al mese

€ 44.100 (30%)

€ 102.900 (70%)

Vuoi sapere che mutuo puoi richiedere?

Opzioni aggiuntive

Contatta l'inserzionista

Oppure