Capannone in Affitto

€ 15.000/mese
2
3.200 m²
3

Nota

Zenso

Prestiti online e veloci

Confronta le offerte in 1 minuto

Annuncio aggiornato il 24/09/2025
Descrizione

riferimento: 30001

Capannone + Palazzina Uffici in affitto a Burago di Molgora

Capannone con ribalta in locazione a Burago di Molgora
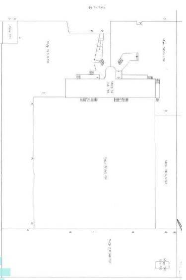
Capannone industriale con ribalta di mq. 3.200 con area esterna di mq. 3000 a Burago di Molgora

Proponiamo in locazione un capannone industriale perfetto per attività produttive, logistiche o commerciali.
La superficie complessiva è di circa 3.210 mq, di cui circa 2.550 mq destinati all'area produttiva, riscaldata, dotata di impianto elettrico e caratterizzata da una doppia altezza variabile tra i 4 e i 5 metri.
Al piano interrato si trova un'area di circa 220 mq pensata per il personale, completa di servizi igienici, spogliatoi e una comoda mensa aziendale.
Al piano rialzato si sviluppano circa 220 mq di uffici moderni, già riscaldati, condizionati e cablati, ideali per le funzioni amministrative. Ulteriori 220 mq al piano primo, offrendo un ambiente di lavoro confortevole e pronto all'uso.
L'immobile si distingue per l'ampiezza degli spazi, la funzionalità degli ambienti e la grande flessibilità d'uso. in posizione strategica, facilmente accessibile e vicina alle principali arterie stradali e autostradali, un capannone industriale perfetto per attività produttive, logistiche o commerciali. L'immobile si distingue per l'ampiezza degli spazi, la funzionalità degli ambienti e la grande flessibilità d'uso.
Un ulteriore punto di forza della struttura è l'accesso facilitato grazie alla presenza di una ribalta per le operazioni di carico e scarico, che semplifica notevolmente la logistica interna.
Completa la proprietà una spaziosa area esterna esclusiva di circa 3.100 mq, perfetta per le manovre di mezzi pesanti, per il parcheggio e per eventuali esigenze di deposito all'aperto.
Caratteristiche
Contratto
Affitto
Tipologia
Capannone
Superficie
3.200 m²
Locali
2 locali, 3 bagni - uno o più adatto a persone disabili
Piano
Piano terra
Piani edificio
1
Disponibilità
Libero
Altezza capannone
6 m
Altezza sottotrave
5 m
Campate
2 - senza pilastri
Banchine di carico
1
Altre caratteristiche
  • Docce
  • Mensa
  • Recintato
  • Spogliatoio
Dettaglio superficie

Capannone

Piano
Piano terra
Superficie
3.200,0 m²
Coefficiente
100%
Tipo superficie
Principale
Sup. commerciale
3.200,0 m²
Informazioni sul prezzo
Prezzo
€ 15.000/mese
Prezzo al m²
5 €/m²
New
Dettaglio dei costi
Spese condominio
Nessuna spesa condominiale
Cauzione
Non indicata
Efficienza energetica
  • Anno di costruzione

    1980
  • Stato

    Buono / Abitabile
  • Riscaldamento

    Autonomo, ad aria, alimentato a metano
  • Climatizzatore

    Autonomo, freddo/caldo
Planimetria
Foto 14
Scopri ogni angolo dell'immobile
+11
Opzioni aggiuntive

Contatta l'inserzionista

Oppure