Capannone in Vendita

€ 850.000
2.966 m²

Nota

Annuncio aggiornato il 12/09/2025
Descrizione

riferimento: 24714

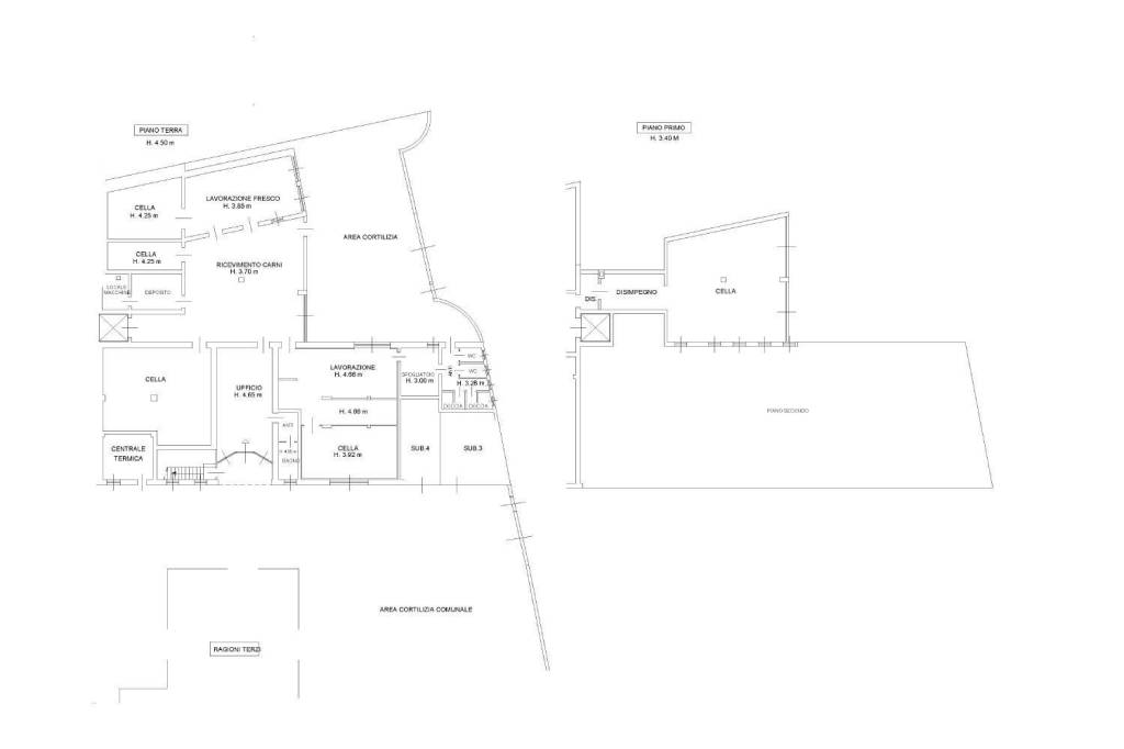
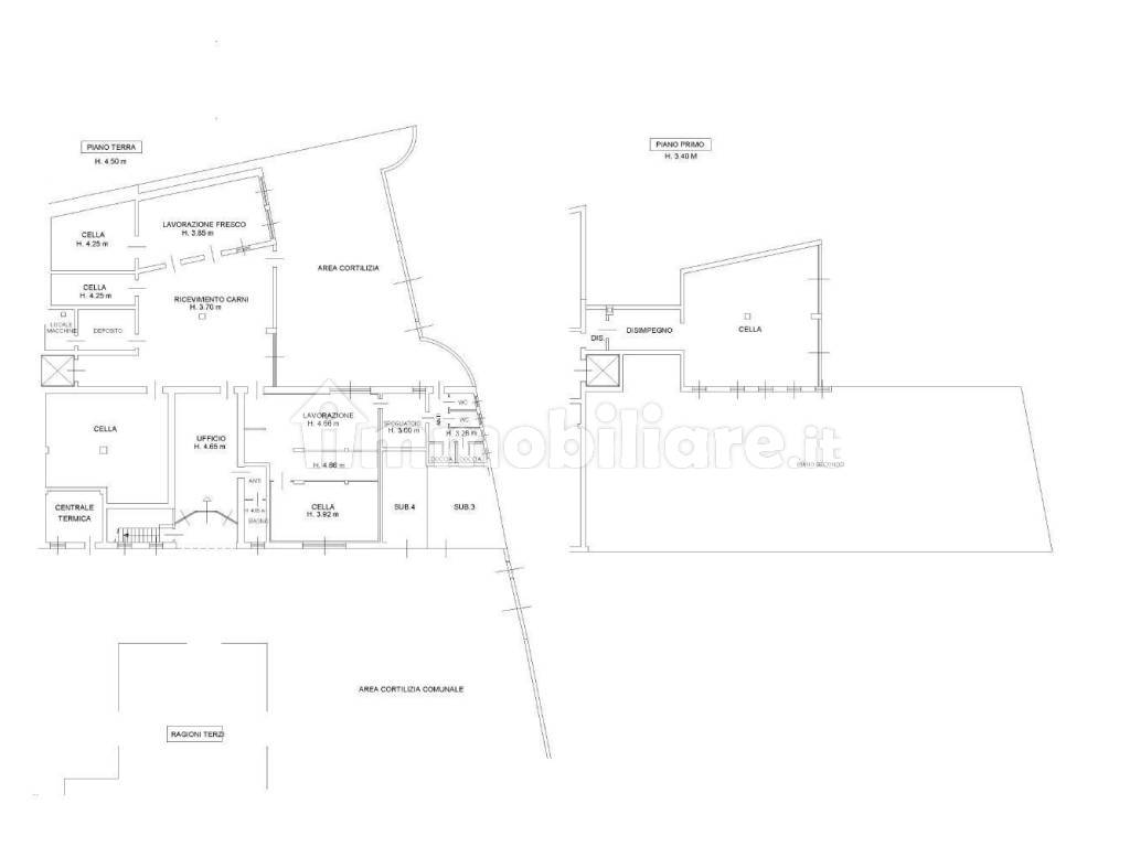
Laboratorio artigianale con celle frigorifere e corte di pertinenza

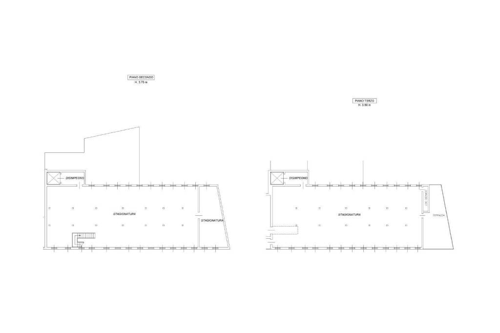
In zona centrale nel Comune di Collecchio (PR), in via Spezia n°100, si vende un complesso edilizio per la lavorazione e stagionatura dei prosciutti, costituito da due corpi di fabbrica adiacenti e comunicanti e dotati di area cortiliva circostante. Il primo corpo di fabbrica, sviluppato su tre piani è composto al piano terra da locali per la lavorazione dei prosciutti e da vani accessori; al primo piano sono presenti celle frigorifere e vani accessori, al piano secondo da vani per la stagionatura dei prosciutti e terrazzi . I piani sono collegati da scala interna e da un montacarichi. Il secondo corpo di fabbrica presenta al piano terra alcuni locali per la lavorazione dei prosciutti, uffici e servizi e due autorimesse. Al primo piano sono presenti celle di riposo, vani accessori e locali d stagionatura, al secondo piano c’è un ampio vano stagionatura, un vano accessorio e terrazza. Anche all’interno di questo fabbricato è presente la scala interna e un montacarichi.

Il bene dista circa 20 km dall’Autostrada A1 uscita “Parma” e a circa 12 km dall’A15 Autostrada Cisa uscita” Parma Ovest”

Superficie lorda totale locali accessori:493,00 mq
Superficie totale celle frigorifere: 2390,00
Superficie lorda uffici: 47,00 mq
Superficie lorda balconi e terrazzi: 148,00 mq
Superficie lorda autorimesse: 59,00 mq
Superficie lorda tettoia: 40,00 mq
Superficie area esterna esclusiva: 736,00 mq

Classe energetica particella 983 sub 1: “G”
Indice di Prestazione Energetica 237.36 kWh/mq anno

Classe energetica particella 988 sub 2: “G”
Indice di Prestazione Energetica 199.27 kWh/mq anno
Caratteristiche
Contratto
Vendita
Tipologia
Capannone
Superficie
2.966 m²
Box, posti auto
1 in box privato/box in garage
Disponibilità
Libero
Altre caratteristiche
  • Passo carrabile
Informazioni sul prezzo
Prezzo
€ 850.000
Prezzo al m²
287 €/m²
New
Efficienza energetica
  • Anno di costruzione

    1966
  • Stato

    Buono / Abitabile
  • Certificazione energetica

    Non classificabile
Planimetria
Scopri ogni angolo dell'immobile
+30
Opzioni aggiuntive

Contatta l'inserzionista

Oppure