Capannone in Vendita

€ 465.000
2.000 m²

Nota

Annuncio aggiornato il 04/09/2025
Descrizione

riferimento: 14848

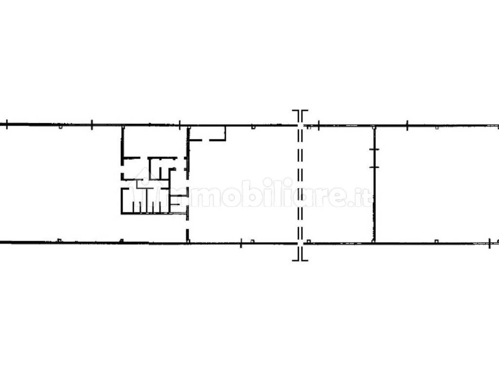
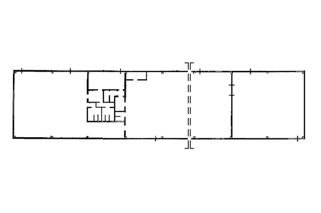
Capannone con laboratorio in zona rurale

Vendesi capannone con laboratorio in zona rurale sito a Cavour (TO), via Macello 3/B. Il contesto è periferico, tranquillo e poco trafficato. La zona è dotata degli standard urbanistici primari, ben collegata al centro del paese ove si trovano i principali servizi, ma distante dalla rete infrastrutturale. Area rurale caratterizzata da piccoli agglomerati residenziali, capannoni isolati e terreni coltivati. L’unità è stata realizzata nel 2009, con struttura portante in cemento armato prefabbricato, copertura piana e tamponature in pannelli. Trattasi di capannone sviluppato al piano terra con ampio laboratorio centrale, due depositi e zona servizi con wc, spogliatoi e uffici. Vano grezzo per cabina elettrica. Soppalco su zona uffici non utilizzabile. Cortile esclusivo illuminato su tutti i lati e parzialmente recintato. Accesso da stradello solo in parte asfaltato. Finiture e impianti adatti alle attività artigianali. Pavimento in battuto di cemento e piastrelle. Portoni carrabili. Finestre a nastro in alluminio e vetro. Riscaldamento assente. Predisposizione antincendio. Immobile libero. Condizioni buone.
PER MAGGIORI DETTAGLI CONSULTARE I DOCUMENTI ALLEGATI.

Classe energetica C
Superficie commerciale: 2000 mq

Piena proprietà di:
Capannone con corte (CF): Foglio 33 – Particella 242 – D/7
Area di sedime (CT): Foglio 33 – Particella 242 – Ente urbano
Caratteristiche
Contratto
Vendita
Tipologia
Capannone
Superficie
2.000 m²
Box, posti auto
1 in box privato/box in garage
Disponibilità
Libero
Altre caratteristiche
  • Passo carrabile
Informazioni sul prezzo
Prezzo
€ 465.000
Prezzo al m²
233 €/m²
New
Efficienza energetica

Consumo di energia

C

Planimetria
Scopri ogni angolo dell'immobile
+23
Opzioni aggiuntive

Contatta l'inserzionista

Oppure