Capannone in Vendita

€ 447.000
4.491 m²

Nota

Annuncio aggiornato il 28/11/2025
Descrizione

riferimento: 14679

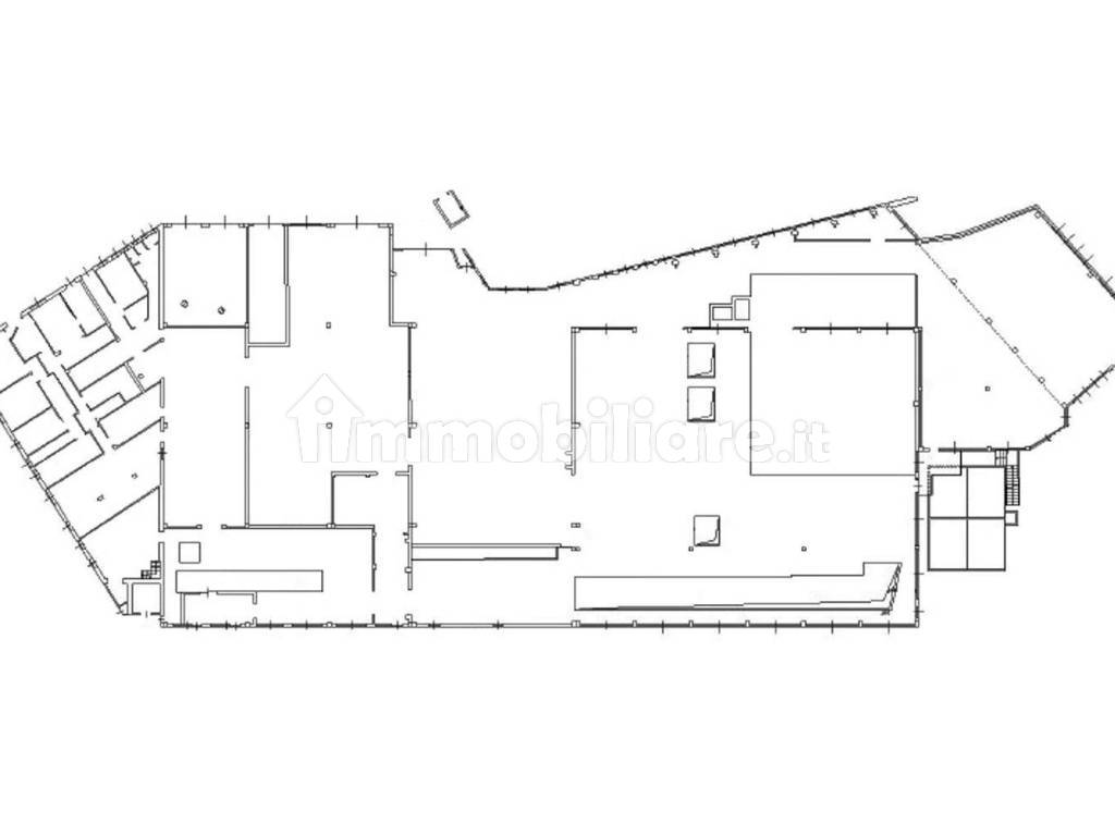
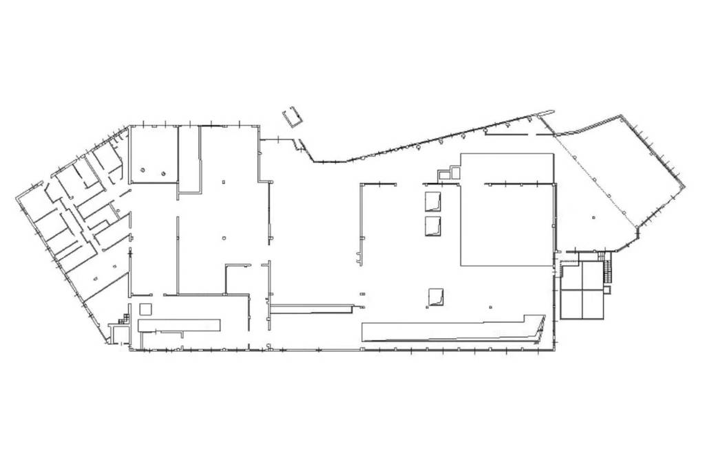
Capannone con aree urbane e parcheggio

Vendesi capannone con aree urbane e parcheggio sito a Coggiola (BI), località Formantero, via Giuseppe Mazzini 39. Il contesto è di prima periferia, tranquillo e poco trafficato. La zona è collinare, urbanizzata, ben collegata al centro del paese ove si trovano i principali servizi, e ai centri urbani della valle. Area caratterizzata da capannoni produttivi, edifici residenziali e strutture sportive, adiacente al torrente Sessera. Trattasi di opificio realizzato in epoche diverse, a partire dal 1968, ristrutturato nel 1996. Strutture a differenti tipologiche costruttive. Capannone originale al piano terra con corpo uffici antistante l'ingresso carraio principale con annessa tettoia. Capannone più recente sul retro, realizzato su due livelli di cui uno parzialmente interrato. Finiture e impianti standard, adatti ad attività produttive. Cortile carrabile recintato con vani tecnici, centrale termica e vasche. Opificio dotato di spazio pubblico adibito a parcheggio, sito al di fuori del cancello d’ingresso. Da considerare opportunità di eventuale riconversione dell’area. Immobile libero. Condizioni discrete.
PER MAGGIORI DETTAGLI CONSULTARE I DOCUMENTI ALLEGATI.

Classe energetica E-G
Superficie commerciale: 4491 mq

Piena proprietà di:
Capannone (CF): Foglio 21 – Particella 403 – Subalterno 3 – D/7
Aree urbane (CF): Foglio 21 – Particelle 817, 830, 831 e 832 – F/1
Ente urbano (CT): Foglio 21 – Particelle 403, 817, 830, 831 e 832 – F/1
Caratteristiche
Contratto
Vendita
Tipologia
Capannone
Superficie
4.491 m²
Box, posti auto
1 in box privato/box in garage
Disponibilità
Libero
Altre caratteristiche
  • Passo carrabile
Informazioni sul prezzo
Prezzo
€ 447.000
Prezzo al m²
100 €/m²
New
Efficienza energetica

Consumo di energia

E

Planimetria
Scopri ogni angolo dell'immobile
+24
Opzioni aggiuntive

Contatta l'inserzionista

Oppure