Trilocale via dei Gelsi, Centro, Casirate d'Adda

€ 149.000
3
102 m²
1
No
Balcone
Terrazzo
Cantina

Nota

Annuncio aggiornato il 01/10/2025
Descrizione

riferimento: EK-122849752

TRELOCALI RECENTE BOX E CANTINA

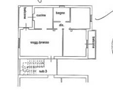
Zona residenziale e tranquilla in recente e signorile palazzina, appartamento posto al piano primo ed ultimo libero su 4 lati, composto da ingresso ampio soggiorno, cucina abitabile con terrazzino, disimpegno che accede nella zona notte dove troviamo la camera matrimoniale con balcone, il bagno con doccia e la cameretta.
Ottima efficenza energetica poichè il riscldamento è a pavimento con la caldaia autonoma.
Porta blindata, aria condizionata, allarme ed inferiate completano la proprietà, compresi nella richiesta anche un box doppio in larghezza, profondo 5,6 m e largo 4,2 m e una comoda cantina.

In a quiet residential area in a recent and elegant building, this apartment is located on the first and top floor, open on four sides. It comprises an entrance hall, a spacious living room, an eat-in kitchen with a small terrace, and a hallway leading to the sleeping area, which includes a master bedroom with a balcony, a bathroom with shower, and a single bedroom.
Excellent energy efficiency, thanks to the underfloor heating system with an independent boiler.
A security door, air conditioning, an alarm system, and grates complete the property. A double garage (5.6 m deep and 4.2 m wide) and a convenient cellar are also included in the asking price.
Se vuoi saperne di più, puoi parlare con Francesco Cervi.
Caratteristiche
Tipologia
Appartamento | Intera proprietà | Classe immobile signorile
Contratto
Vendita
Piano
Interrato (-1), 1
Piani edificio
1
Ascensore
No
Superficie
102 m²
Locali
3
Camere da letto
2
Cucina
Cucina abitabile
Bagni
1
Balcone
Terrazzo
Box, posti auto
2 in box privato/box in garage
Riscaldamento
Autonomo, a pavimento, alimentato a metano
Climatizzazione
Autonomo, freddo/caldo
Altre caratteristiche
  • Esposizione doppia
  • Impianto di allarme
  • Infissi esterni in doppio vetro / legno
  • Porta blindata
  • Cancello elettrico
  • Impianto tv singolo
Dettaglio superficie

Abitazione

Piano
1
Superficie
86,0 m²
Coefficiente
100%
Tipo superficie
Principale
Sup. commerciale
86,0 m²

Terrazzo

Piano
1
Superficie
6,0 m²
Coefficiente
30%
Tipo superficie
Principale
Sup. commerciale
1,8 m²

Balcone

Piano
1
Superficie
3,5 m²
Coefficiente
30%
Tipo superficie
Principale
Sup. commerciale
1,1 m²

Box o garage

Piano
Interrato (-1)
Superficie
24,0 m²
Coefficiente
50%
Tipo superficie
Principale
Sup. commerciale
12,0 m²

Cantina

Piano
Interrato (-1)
Superficie
2,5 m²
Coefficiente
25%
Tipo superficie
Principale
Sup. commerciale
0,6 m²
Informazioni sul prezzo
Prezzo
€ 149.000
Prezzo al m²
1.461 €/m²
New
Dettaglio dei costi
Spese condominio
€ 50/mese
Efficienza energetica

Consumo di energia

124 kWh/m² annoC

Planimetria
20150127-luosi-atto-vendita-casa-casirate-98592
Scopri ogni angolo dell'immobile
+15
Mutuo
%
Durata del mutuo

Rata da € 443 al mese

€ 44.700 (30%)

€ 104.300 (70%)

Vuoi sapere che mutuo puoi richiedere?

Opzioni aggiuntive

Contatta l'inserzionista

Oppure