Capannone in Affitto

€ 1.000/mese
250 m²
2

Nota

Zenso

Prestiti online e veloci

Confronta le offerte in 1 minuto

Annuncio aggiornato il 03/09/2025
Descrizione

riferimento: EK-122870474

CAPANNONE IN AFFITTO

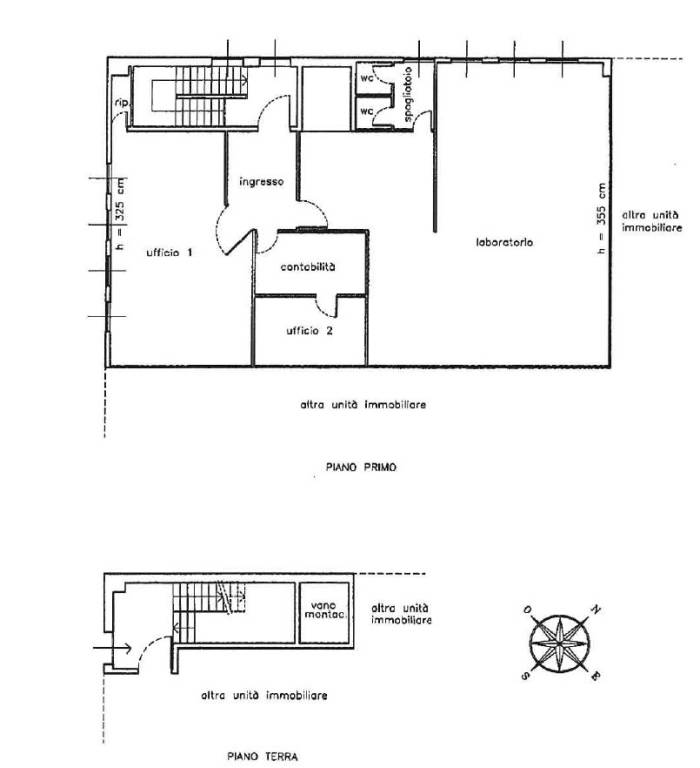
Affittasi capannone al primo piano con ingresso indipendente, situato in un contesto artigianale-produttivo. L’immobile si compone di un’ampia area laboratorio, luminosa e ben ventilata. L’accesso avviene da un ingresso indipendente al piano terra con scala interna, dove è presente anche un vano montacarichi, utile per la movimentazione di materiali.

L’ambiente è organizzato in maniera funzionale con una zona uffici composta da tre locali distinti: un ufficio principale, un secondo ufficio e un locale dedicato alla contabilità, tutti accessibili direttamente dall’ingresso. Completano la proprietà due servizi igienici, uno spogliatoio per il personale e un comodo ripostiglio.

L’unità è adatta ad attività artigianali, produttive leggere o studi tecnici che necessitano di spazi operativi e amministrativi ben separati ma integrati all’interno dello stesso immobile. La posizione è comoda, facilmente raggiungibile e inserita in un contesto con altre unità immobiliari, ideale per chi cerca una soluzione pronta all’uso e ben distribuita.

Giuseppe: 347.22.05.310
Se vuoi saperne di più, puoi parlare con Giuseppe Greco.
Caratteristiche
Contratto
Affitto
Tipologia
Capannone
Superficie
250 m²
Locali
2 bagni
Piano
1°, con accesso disabili
Piani edificio
1
Disponibilità
Libero
Altezza capannone
3,5 m
Altre caratteristiche
  • Passo carrabile
  • Recintato
  • Spogliatoio
Dettaglio superficie

Capannone

Piano
1
Superficie
250,0 m²
Coefficiente
100%
Tipo superficie
Principale
Sup. commerciale
250,0 m²
Informazioni sul prezzo
Prezzo
€ 1.000/mese
Prezzo al m²
4 €/m²
New
Dettaglio dei costi
Cauzione
Non indicata
Efficienza energetica
  • Stato

    Buono / Abitabile
  • Riscaldamento

    Autonomo
Planimetria
PLAN
Scopri ogni angolo dell'immobile
+16
Opzioni aggiuntive

Contatta l'inserzionista

Oppure