Trilocale via Vallona 9, San Valentino, Ospedale, Pordenone

Prezzo su richiesta
3
260 m²
3
1
Lusso

Nota

Annuncio aggiornato il 03/09/2025
Descrizione

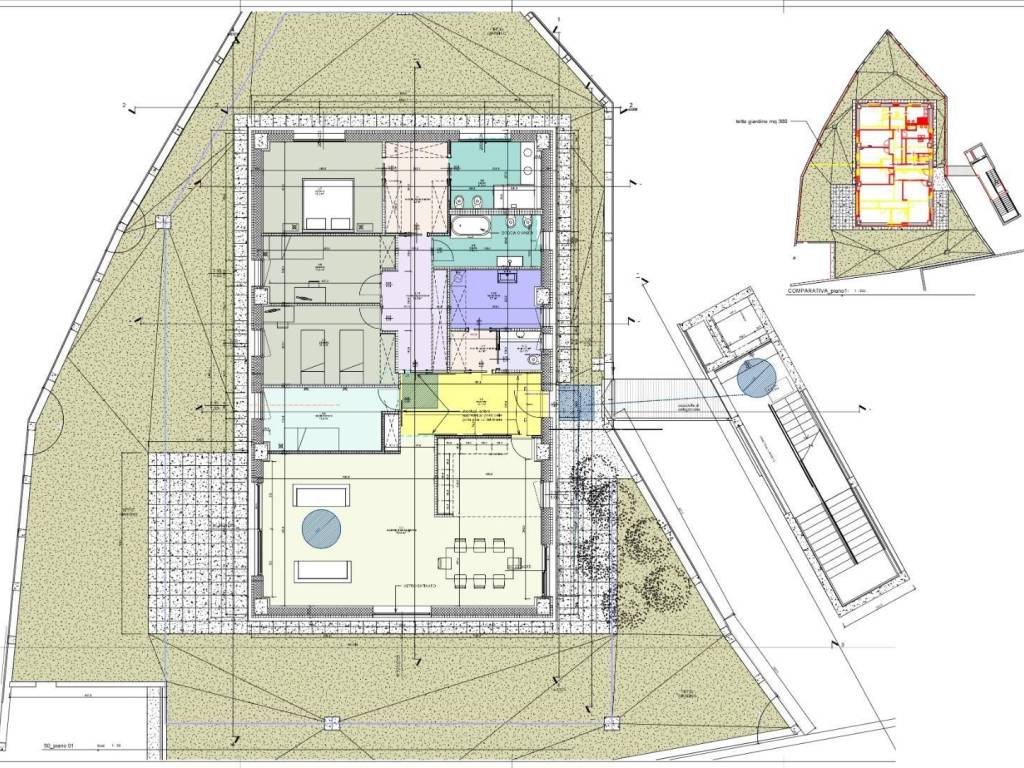
riferimento: PRIMO PIANO CON GIARDINO

APPARTAMENTO PRIMO PIANO CON GIARDINO PENSILE PRIVATO

PALAZZINA IN ZONA RESIDENZIALE AD ALTO RISPARMIO ENERGETIVO

Posizionata nel centro di Pordenone in una zona tranquilla e servita, la Residenza "Steel Tower" viene edificata con l'obiettivo di proporre soluzioni diverse attraverso un design moderno ed esclusivo.

L'attenzione all'ambiente e la massimizzazione del Risparmio Energetico rendono questo progetto particolarmente sostenibile.

L'immobile sarà sviluppato in sei piani e suddiviso:

- PIANO TERRA: garage e cantine
- PRIMO PIANO: appartamento unico con giardino pensile privato
- SECONDO/TERZO PIANO: due appartamenti ad ogni livello con terrazzo
- QUARTO PIANO: VENDUTO
- QUINTO/SESTO PIANO: appartamento unico con terrazzo

Tutti gli appartamenti verranno realizzati ai massimi livelli di Risparmio Energetico, di efficienza e confort abitativo quali:
- impianto fotovoltaico;
- avvolgibili motorizzati e tende oscuranti motorizzate;
- serramenti di alta qualità e risparmio energetico;
- riscaldamento a pavimento;
- innovativo sistema a Pompa di Calore;
- sanitari sospesi;
- ampia disponibilità di pavimenti in gres e legno di prima scelta;
- portoncino blindato Classe 3;
- classe Energetica A4;
- massima insonorizzazione ed efficienza statica;
- impianto di condizionamento;
- ascensore .

Fissi un appuntamento per avere ulteriori informazioni telefonando al numero 0434/362080.
Orari di apertura: 8.30-12.30 14.30-18.30
Se vuoi saperne di più, puoi parlare con MATTEO BATTISTELLA.
Caratteristiche
Tipologia
Appartamento | Intera proprietà
Contratto
Vendita
Piano
1
Piani edificio
6
Superficie
260 m²
Locali
3
Camere da letto
3
Cucina
Cucina abitabile
Bagni
3
Arredato
No
Dettaglio superficie

Abitazione

Piano
1
Superficie
220,0 m²
Coefficiente
100%
Tipo superficie
Principale
Sup. commerciale
220,0 m²

Giardino

Piano
1
Superficie
400,0 m²
Coefficiente
10%
Tipo superficie
Principale
Sup. commerciale
40,0 m²
Informazioni sul prezzo
Prezzo
Prezzo su richiesta
Efficienza energetica

Consumo di energia

≥ 3,51 kWh/m² annoA4

Scopri ogni angolo dell'immobile
+3
Opzioni aggiuntive

Contatta l'inserzionista