Trilocale Residenza Cerchi, Milano Due, Segrate

€ 558.000
3
120 m²
2
2
Lusso
Balcone
Terrazzo
Cantina

Nota

Annuncio aggiornato il 03/09/2025
Descrizione

riferimento: EK-122884194

Milano2 Vendesi 3 locali ristrutturato

Vivere immersi nel verde a pochi passi da Milano.
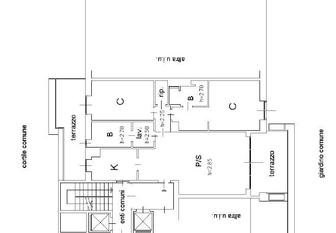
Nella splendida cornice di Milano2, proponiamo in Residenza Cerchi un appartamento di 3 locali, di mq 120, al piano 2° e composto di: soggiorno, cucina abitabile, due camere da letto, doppi servizi con zona lavanderia, ripostiglio, due ampi terrazzi e cantina, con possibilità di box singolo o doppio (non inclusi nel prezzo).
L'appartamento si presenta in perfette condizioni, in quanto recentemente è stato completamente ristrutturato, con materiali e finiture di primissimo livello.
Parquet, impianti a norma, infissi a taglio termico e blindati, aria condizionata, porte interne, impianto di allarme...sono solo alcune delle caratteristiche apprezzabili di questa soluzione.
La residenza si trova nei pressi delle scuole (elementari e medie), del centro commerciale Esselunga ed è a breve distanza dal capolinea ATM; sono inoltre presenti ampie aree a parcheggio.
Se vuoi saperne di più, puoi parlare con Maurizio Cammarata.
Caratteristiche
Tipologia
Appartamento | Intera proprietà | Classe immobile signorile
Contratto
Vendita
Piano
2
Piani edificio
6
Ascensore
Superficie
120 m²
Locali
3
Camere da letto
2
Cucina
Cucina abitabile
Bagni
2
Arredato
No
Balcone
Terrazzo
Riscaldamento
Centralizzato, a pavimento, alimentato a gas
Climatizzazione
Autonomo
Altre caratteristiche
  • Armadio a muro
  • Caminetto
  • Esposizione doppia
  • Fibra ottica
  • Infissi esterni in doppio vetro / PVC
  • Porta blindata
  • Cancello elettrico
  • Impianto tv centralizzato
Dettaglio superficie

Abitazione

Piano
2
Superficie
120,0 m²
Coefficiente
100%
Tipo superficie
Principale
Sup. commerciale
120,0 m²
Informazioni sul prezzo
Prezzo
€ 558.000
Prezzo al m²
4.650 €/m²
New
Dettaglio dei costi
Spese condominio
€ 400/mese
Efficienza energetica

Consumo di energia

≥ 175 kWh/m² annoE

Planimetria
Schermata 2025-04-03 alle 18.56.29
Scopri ogni angolo dell'immobile
+28
Mutuo
%
Durata del mutuo

Rata da € 1.657 al mese

€ 167.400 (30%)

€ 390.600 (70%)

Vuoi sapere che mutuo puoi richiedere?

Opzioni aggiuntive

Contatta l'inserzionista

Oppure