Bilocale via Bari 15, Casamassima

€ 196.000
2
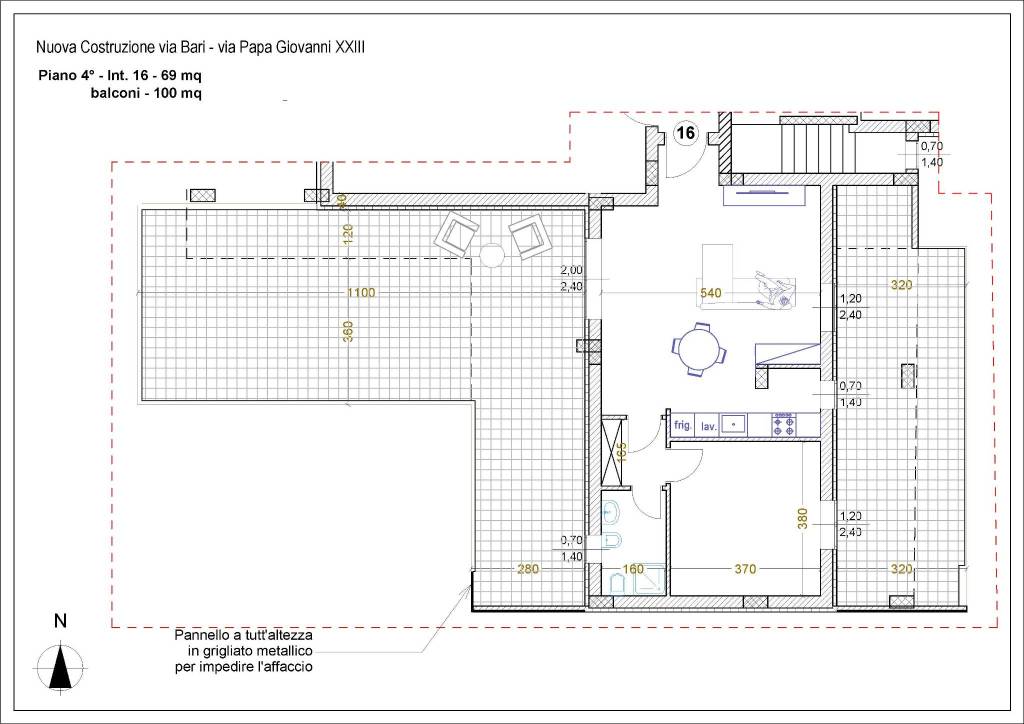
69 m²
1
4
Balcone
Terrazzo

Nota

Annuncio aggiornato il 20/11/2025
Descrizione

riferimento: int 16

bivani nuova costruzione

Tutto ciò che conta per abitare al meglio, in Via Bari, 15 a Casamassima in zona servita e tranquilla, situata in posizione strategica, con tutti i servizi quali, supermercati, panifici e farmacie, fermate autobus ben collegate con la LUM (5 min. in auto, 10 min. in bus), scuole, asili e servizi per l'infanzia, centri sportivi e aree verdi, collegamenti rapidi verso Bari , locali tipici a portata di mano, ideale per chi desidera una vita comoda, senza rinunciare alla qualità, sorgerà un progetto architettonico moderno su un lotto angolare di oltre 800mq. il progetto sarà caratterizzato da quattro piani per un totale 18 appartamenti tra bilocali e trilocali con ampi balconi, verande e terrazzi fino a 130 mq. saranno disponibili con possibilità di acquisto 13 Box auto e 11 cantinole al piano interrato, posti auto scoperti al piano terra , tra le rifiniture saranno presenti riscaldamento a pavimento con pompa di calore, infissi in pvc, impianti fotovoltaici sul lastrico solare, spazi comuni ottimizzati, raccolta differenziata, accesso diretto al box, verde carrabile, ascensore centrale vano scala unico Possibilità di personalizzazione secondo bagno, ampliamento metrature e soluzioni su misura Più spazio da vivere. Più benessere ogni giorno.
Se vuoi saperne di più, puoi parlare con Nicola Marinelli.
Caratteristiche
Tipologia
Appartamento | Intera proprietà | Classe immobile signorile
Contratto
Vendita
Piano
4
Piani edificio
4
Ascensore
Superficie
69 m² | commerciale 99 m²
Locali
2
Camere da letto
1
Cucina
Cucina a vista
Bagni
1
Arredato
No
Balcone
Terrazzo
Riscaldamento
Autonomo, a pavimento, alimentato a pompa di calore
Climatizzazione
Autonomo
Altre caratteristiche
  • Armadio a muro
  • Esposizione doppia
  • Fibra ottica
  • Infissi esterni in triplo vetro / PVC
  • Porta blindata
  • Cancello elettrico
  • Impianto tv centralizzato
  • VideoCitofono
Dettaglio superficie

Abitazione

Piano
4
Superficie
69,0 m²
Coefficiente
100%
Tipo superficie
Principale
Sup. commerciale
69,0 m²

Balcone

Piano
4
Superficie
100,0 m²
Coefficiente
30%
Tipo superficie
Accessoria
Sup. commerciale
30,0 m²
Informazioni sul prezzo
Prezzo
€ 196.000
Prezzo al m²
1.980 €/m²
New
Dettaglio dei costi
Spese condominio
€ 1/mese
Spese riscaldamento
€ 1/anno
Efficienza energetica

Consumo di energia

≥ 3,51 kWh/m² annoA4

Planimetria
Interno 16
Scopri ogni angolo dell'immobile
+7
Mutuo
%
Durata del mutuo

Rata da € 582 al mese

€ 58.800 (30%)

€ 137.200 (70%)

Vuoi sapere che mutuo puoi richiedere?

Opzioni aggiuntive

Contatta l'inserzionista

Oppure