Trilocale via dell'Annunziata, 12, Marina Di Casal Velino, Casal Velino

€ 125.000
3
65 m²
2
T
No
Terrazzo

Nota

Annuncio aggiornato il 02/12/2025
Descrizione

riferimento: Cod. rif 3257978

Appartamento

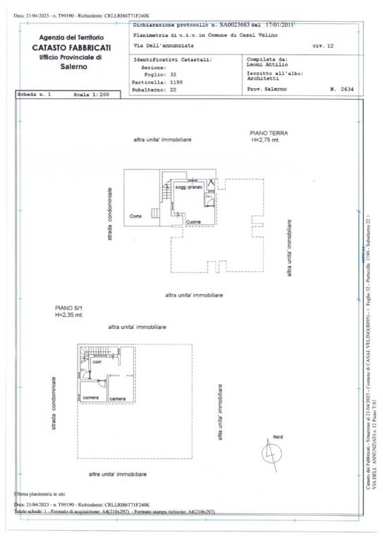
Luminoso e accogliente appartamento ad uso abitativo situato nel comune di Casal Velino (SA). Questa proprietà vanta una superficie di 65 mq catastali, ideale per una famiglia o per chi desidera un rifugio accogliente a pochi minuti dal mare. L'immobile è composto da un ampio soggiorno con angolo cottura, due camere da letto e due servizi. La corte esterna esclusiva è ideale per trascorrere piacevoli momenti all'aria aperta in totale privacy. La zona circostante offre servizi essenziali come bar, negozi e ristoranti, che rendono la vita quotidiana comoda e piacevole. La posizione strategica permette di godere della tranquillità del contesto residenziale, pur essendo a breve distanza dalle bellezze naturali della zona. Contattaci per fissare un appuntamento.
Se vuoi saperne di più, puoi parlare con Antonello Feola.

Di solito risponde entro 12 ore

Caratteristiche
Tipologia
Appartamento | Intera proprietà | Classe immobile economica
Contratto
Vendita
Piano
Piano terra
Piani edificio
2
Ascensore
No
Superficie
65 m²
Locali
3
Camere da letto
2
Cucina
Cucina angolo cottura
Bagni
2
Arredato
No
Balcone
No
Terrazzo
Box, posti auto
1 in box privato/box in garage, 1 in parcheggio/garage comune
Altre caratteristiche
  • Esposizione esterna
  • Infissi esterni in vetro / legno
  • Taverna
  • Impianto tv singolo
Dettaglio superficie

Abitazione

Piano
Piano terra
Superficie
65,0 m²
Coefficiente
100%
Tipo superficie
Principale
Sup. commerciale
65,0 m²
Informazioni sul prezzo
Prezzo
€ 125.000
Prezzo al m²
1.923 €/m²
New
Efficienza energetica

Consumo di energia

175 kWh/m² annoG

Planimetria
PLN CIRILLO_page-0001(1).jpg
Virtual tour
Scopri ogni angolo dell'immobile
+13
Mutuo
%
Durata del mutuo

Rata da € 371 al mese

€ 37.500 (30%)

€ 87.500 (70%)

Vuoi sapere che mutuo puoi richiedere?

Opzioni aggiuntive

Contatta l'inserzionista

Oppure