Capannone all'asta via Vo' di Placca, Due Carrare

da € 282.310,00
5+
18/11/2025
7.801 m²
T

Nota

Annuncio aggiornato il 09/09/2025
Descrizione

riferimento: INC PADOVA-18/11/2025-169/2013-Lucia-4445075

capannone all'asta in via vo' di placca, n. 52-54

Riferimento :4445075

via vo' di placca, n. 52-54, 35020 Due Carrare Padova

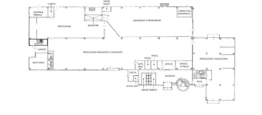
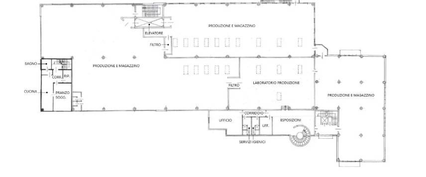
Fabbricato produttivo con appartamento custode, nonche area circostante esclusiva, sito in Due Carrare (PD), Fraz. Terradura, Via Vo' di Placca n.52-54. Superfici commerciali: zona direzionale espositiva e ricreativa 1.039,62 mq; zona produttiva 6.542 mq; alloggio custode 218,75 mq

Data di vendita 18/11/2025
 Offerta minima €282.310,00

La data di vendita è molto vicina e pensi di non fare in tempo a partecipare? Rispondiamo tutti i giorni H24

Studio di Fattibilità Pre-Asta

Offriamo consulenza legale completa per l'acquisto tramite asta giudiziaria. I nostri servizi includono:

Ricerca dell'immobile secondo le esigenze del cliente
Studio di fattibilità pre-asta in fase di richiesta di visita
Studio di fattibilità del mutuo tramite banche convenzionate
Esame della perizia e documentazione correlata
Verifica legale
Preparazione e deposito delle offerte di partecipazione
Gestione della gara
Consulenza e documentazione post-aggiudicazione fino all'emissione del decreto di trasferimento o del rogito

Vi invitiamo a fissare una prima consulenza gratuita presso una delle nostre 80 sedi sparse su tutto il territorio per ricevere maggiori informazioni sul processo di partecipazione ad un'asta giudiziaria, tempistiche, costi e modalità di acquisto.

Ulteriore documentazione disponibile verrà messa a disposizione durante la consulenza.

+39 06 4006 1824

Visitate il nostro sito www.asteflorio.com dove potrete trovare più di 25.000 Aste disponibili e la nuova sezione dedicata agli NPL.
NB: Le immagini potrebbero essere solo esempi e non rappresentare gli immobili reali. Le coordinate geografiche, fornite automaticamente da Google, possono contenere inesattezze. Segnalate eventuali errori e rimuoveremo gli annunci non conformi.
 L'ESATTEZZA DI TUTTI I DATI PUBBLICATI INOLTRE SARA' CONFERMATA IN SEDE DI CONSULENZA.
Se vuoi saperne di più, puoi parlare con Aste Florio.

Di solito risponde entro 1 giorno

Caratteristiche
Contratto
Vendita
Tipologia
Capannone | Intera proprietà | Classe immobile media
Superficie
7.801 m²
Locali
5+ locali, 3+ bagni, cucina angolo cottura
Piano
Piano terra
Piani edificio
2
Disponibilità
Libero
Dati catastali
Foglio 1 - Particella 579
Altri dati catastali
SubParticella 5
Altre caratteristiche
  • Cantina
Dettaglio superficie

Capannone

Piano
Piano terra
Superficie
7.801,0 m²
Coefficiente
100%
Tipo superficie
Principale
Sup. commerciale
7.801,0 m²
Efficienza energetica

Consumo di energia

≥ 175 kWh/m² annoG

Dettaglio vendite
Tipo vendita
Senza incanto
Data vendita
18/11/2025, 10:00
Stato
Partecipabile
Per partecipare
Offerta minima
€ 282.310,00
Spesa prenota debito
No
Contributo non dovuto
No
Referente
PADOVA-18/11/2025-169/2013-Lucia-4445075
Dettagli lotto
Lotto numero
Otto 25509
Numero immobili
1
Categoria
IMMOBILE INDUSTRIALE
Dati procedura
Aggiornato il
09/09/2025
Numero procedura
2013
Planimetria
Screenshot_16
Screenshot_17
Screenshot_18
Scopri ogni angolo dell'immobile
+12
Opzioni aggiuntive

Contatta l'inserzionista