Magazzino - Deposito in Affitto

€ 650/mese
100 m²
1
T

Nota

Zenso

Prestiti online e veloci

Confronta le offerte in 1 minuto

Annuncio aggiornato il 22/10/2025
Descrizione

riferimento: 1346

CASCINA - ZONA INDUSTRIALE
In zona industriale e commerciale di Cascina ed a pochi Km dalla FI-PI-LI proponiamo in AFFITTO FONDO COMMERCIALE di mq. 100 circa posto al piano terra da poter essere utilizzato sia come magazzino per deposito sia come ufficio.
L’immobile è dotato di ampie vetrate che lo rendono molto luminoso ed ha l’affaccio sul giardino.
L’immobile è composto da un unico vano open space e bagno.
Sono presenti impianto elettrico e idraulico centralizzati e dotati di contabilizzatore.
BUONO STATO DI MANUTENZIONE!
ADATTO SOLO A SOLO PERSONE REFERENZIATE!
Canone mensile di locazione: €. 650 + IVA
SONO RICHIESTE GARANZIE!
DISPONIBILE DA DICEMBRE 2025 con possibilità però di averlo libero anche prima.
Classe energetica: E
Rif. 1346
Caratteristiche
Contratto
Affitto
Tipologia
Magazzino - Deposito
Superficie
100 m²
Locali
1 bagno
Piano
Piano terra
Dettaglio superficie

Magazzino - Deposito

Piano
Piano terra
Superficie
100,0 m²
Coefficiente
100%
Tipo superficie
Principale
Sup. commerciale
100,0 m²
Informazioni sul prezzo
Prezzo
€ 650/mese
Prezzo al m²
7 €/m²
New
Dettaglio dei costi
Cauzione
Non indicata
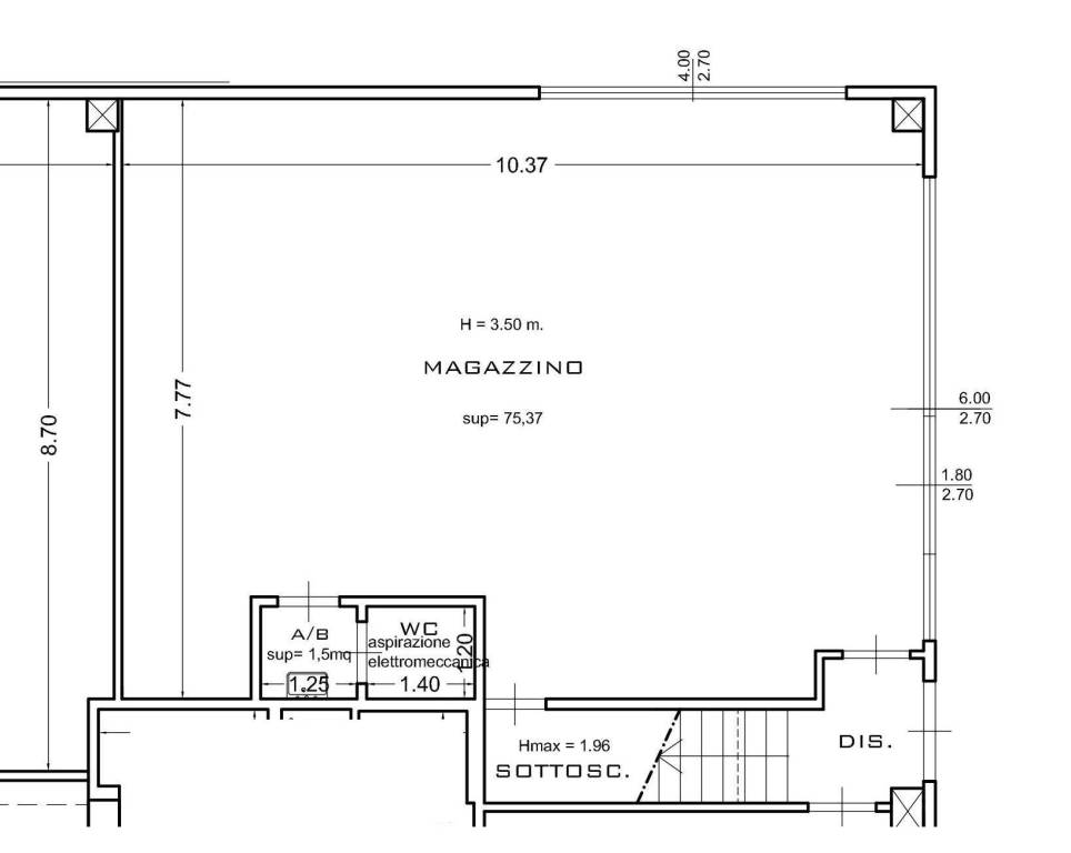
Planimetria
grafico pt magazzino
Opzioni aggiuntive

Contatta l'inserzionista

Oppure