Magazzino all'asta via Orazio Quinto Flacco, Aversa

da € 65.240,00
5+
02/12/2025
175 m²
S

Nota

Annuncio aggiornato il 09/09/2025
Descrizione

riferimento: M Napoli nord in Aversa-02/12/2025-312/2021-ANNA-4445714

deposito all'asta in Via Orazio

RIFERIMENTO 4445714
Via Orazio n. 5, 81031 Aversa Caserta

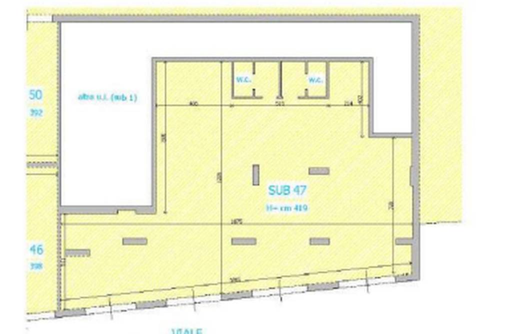
LOTTO n°12: quota pari alla piena proprietà di locale deposito (accatastato come in corso di costruzione - categoria F/3), ricompreso in un fabbricato sito in Aversa (CE) alla Via Orazio n°5. L’u.i. pignorata è ubicata al piano seminterrato, è distinta con il SUB 47, presenta superficie netta pari a mq 175 e superficie lorda pari a mq 184, ed è costituito da grande ambiente con n°2 locali bagno, con n°4 accessi da area di manovra comune, posto sul lato sud del fabbricato.

Data di vendita 02/12/2025 16:00

Offerta minima 65.240,00 €

valore di perizia 116.000,00 €

La data di vendita è molto vicina e pensi di non fare in tempo a partecipare? Rispondiamo tutti i giorni H24
Studio di Fattibilità Pre-Asta
Offriamo consulenza legale completa per l'acquisto tramite asta giudiziaria. I nostri servizi includono:
Ricerca dell'immobile secondo le esigenze del cliente
Studio di fattibilità pre-asta in fase di richiesta di visita
Studio di fattibilità del mutuo tramite banche convenzionate
Esame della perizia e documentazione correlata
Verifica legale
Preparazione e deposito delle offerte di partecipazione
Gestione della gara
Consulenza e documentazione post-aggiudicazione fino all'emissione del decreto di trasferimento o del rogito
Vi invitiamo a fissare una prima consulenza gratuita presso una delle nostre 80 sedi sparse su tutto il territorio per ricevere maggiori informazioni sul processo di partecipazione ad un'asta giudiziaria, tempistiche, costi e modalità di acquisto.

Ulteriore documentazione disponibile verrà messa a disposizione durante la consulenza.
+39 06 4006 1824
Visitate il nostro sito www.asteflorio.com dove potrete trovare più di 25.000 Aste disponibili e la nuova sezione dedicata agli NPL.
NB: Le immagini potrebbero essere solo esempi e non rappresentare gli immobili reali. Le coordinate geografiche, fornite automaticamente da Google, possono contenere inesattezze. Segnalate eventuali errori e rimuoveremo gli annunci non conformi.
L'ESATTEZZA DI TUTTI I DATI PUBBLICATI INOLTRE SARA' CONFERMATA IN SEDE DI CONSULENZA.
Se vuoi saperne di più, puoi parlare con Aste Florio.

Di solito risponde entro 2 giorni

Caratteristiche
Contratto
Vendita
Tipologia
Magazzino | Intera proprietà | Classe immobile media
Superficie
175 m²
Locali
5+ locali, 1 bagno, cucina cucinotto
Piano
Seminterrato
Piani edificio
1
Dati catastali
Foglio 500 - Particella 5050
Altri dati catastali
SubParticella 47
Altre caratteristiche
  • Arredato
Dettaglio superficie

Magazzino - Deposito

Piano
Seminterrato
Superficie
175,0 m²
Coefficiente
100%
Tipo superficie
Principale
Sup. commerciale
175,0 m²
Dettaglio vendite
Tipo vendita
Senza incanto
Data vendita
02/12/2025, 16:00
Stato
Partecipabile
Per partecipare
Offerta minima
€ 65.240,00
Spesa prenota debito
No
Contributo non dovuto
No
Referente
Napoli nord in Aversa-02/12/2025-312/2021-ANNA-4445714
Dettagli lotto
Lotto numero
Lotto nr. 12
Numero immobili
1
Categoria
IMMOBILE COMMERCIALE
Dati procedura
Aggiornato il
10/09/2025
Numero procedura
2021
Planimetria
Screenshot_12
Scopri ogni angolo dell'immobile
+10
Opzioni aggiuntive

Contatta l'inserzionista