Garage - Box in Vendita

Prezzo su richiesta
290 m²

Nota

Annuncio aggiornato il 16/10/2025
Descrizione

riferimento: 61109400

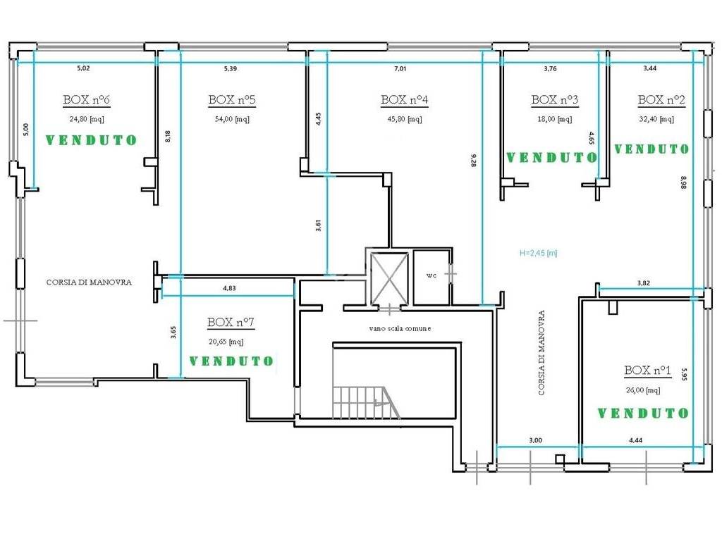
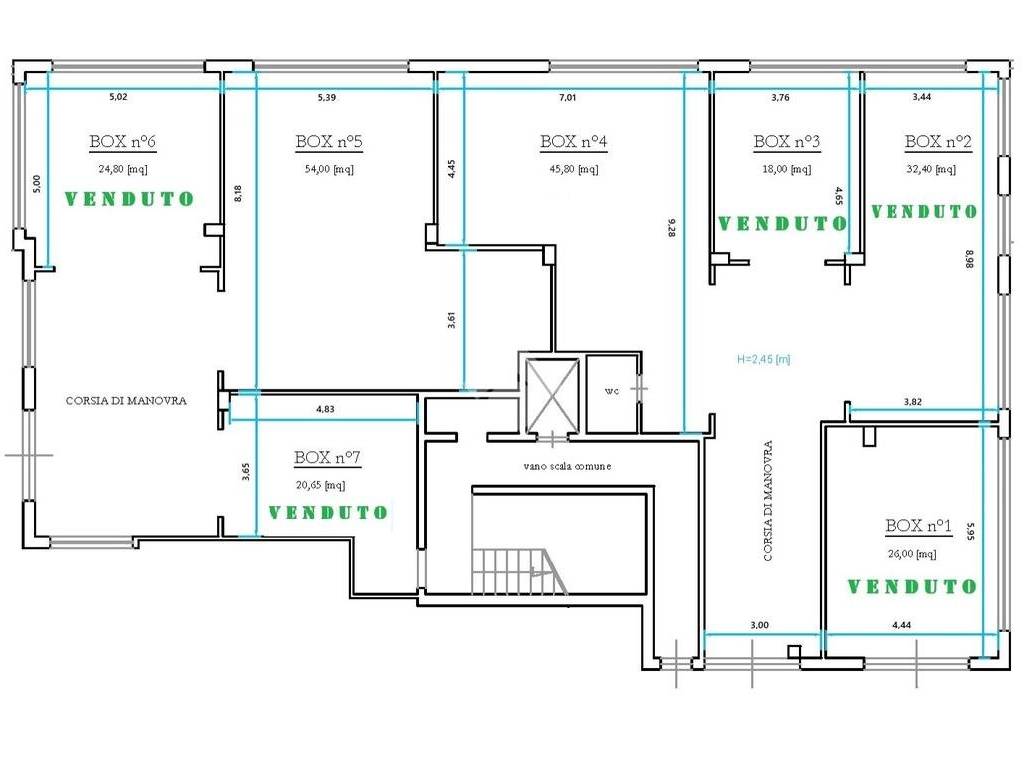
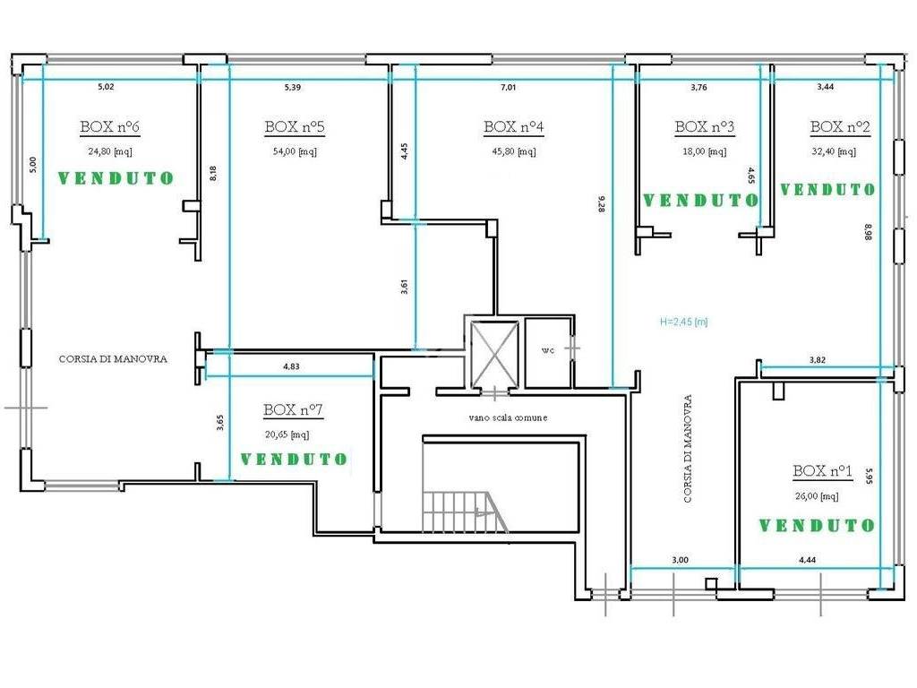
In via Martiri D’Ungheria nell’ elegante Parco Vinicio, proponiamo in vendita sette box auto, ideali sia come investimento che per uso personale. Il parco si trova in zona centrale, circondata da aree verdi e contesto abitativo di alto livello.
Da realizzare , con possibilità di personalizzazione delle finiture.
Il contesto in cui sorgeranno i box garantisce un elevato livello di sicurezza e vivibilità, il parco dispone di doppio accesso dotato di cancello automatico da ambo i lati. I box sono di diverse metrature adatti anche a SUV e veicoli di grandi dimensioni.
Disponibilità per le visite: previo appuntamento telefonico chiamando il nostro ufficio al numero 081.184.93.689.
Vi aspettiamo in Scafati presso Via Martiri D'Ungheria civ. 61 dal lunedì al venerdì dalle 09.00 alle 13.00 e dalle 16.00 alle 20.30, il sabato dalle 09.00 alle 13.00 e dalle 16.00 alle 18.30 oppure la domenica mattina su appuntamento dalle 10.30 alle 12.30.
Se vuoi saperne di più, puoi parlare con Gaetano Telese ..

Di solito risponde entro 2 giorni

Caratteristiche
Contratto
Vendita
Tipologia
Garage - Box
Superficie
290 m²
Disponibilità
Libero
Informazioni sul prezzo
Prezzo
Prezzo su richiesta
Dettaglio dei costi
Spese condominio
Nessuna spesa condominiale
Planimetria
Planimetria Box Parco Vinicio
Nuova planimetria
Vista dall'alto - BOX AUTO 23/09/2025 17:41
Scopri ogni angolo dell'immobile
+8
Opzioni aggiuntive

Contatta l'inserzionista