Capannone all'asta via F. Praloran, Gazzo

da € 240.750,00
1
1.231 m²
T

Nota

Annuncio aggiornato il 16/09/2025
Descrizione

riferimento: E3019/25BIS

Capannone a Gazzo (PD)

NUOVA PROPOSTA

IMMOBILE LIBERO

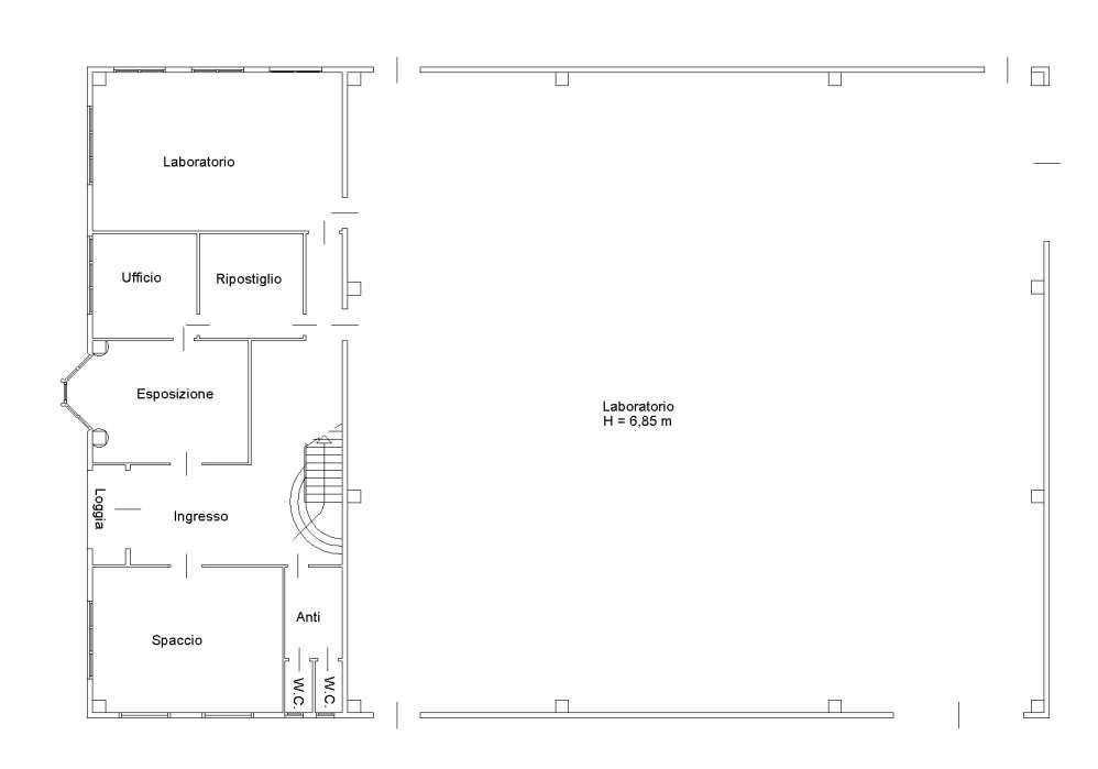
Capannone a destinazione artigianale e commerciale situato a Gazzo (PD), in Via F. Praloran. L’immobile, inserito su un lotto indipendente, è composto da ampi spazi produttivi, locali accessori e uffici. Completa la proprietà un cortile scoperto esclusivo che circonda l’edificio, adibito a piazzale e area di manovra, offrendo un'eccellente funzionalità logistica e operativa.

Per te la possibilità di avere un preventivo per il mutuo a condizioni vantaggiose con i nostri partner.
Ulteriori dettagli, foto degli interni, planimetrie e altre info, se disponibili, saranno consultabili previo appuntamento nella sede di PADOVA con STEFANO che inoltre ti informerà sulle possibilità di aggiudicarti questo affare.
L'immobile pubblicato al momento è sottoposto a procedura di vendita legale; Gescom srl è specializzata nella ricerca e pianificazione di investimenti immobiliari secondo innovative strategie di acquisto. Contattaci subito potrai valutare assieme a un nostro tecnico canali distinti di acquisto dell’immobile, procedura di vendita diretta senza ricorrere all’asta (d.lgs. 149/2022) e ancora stralcio immobiliare. Le informazioni sopra riportate non sostituiscono l'avviso pubblicato dal Tribunale competente ne’ l'integrale gestione da parte del delegato designato. Il testo e le specifiche indicate nella presente pagina sono generate automaticamente attraverso l'utilizzo di software e/o da A. I., Gescom srl invita a verificare le formazioni e i materiali multimediali sui canali ufficiali, declinando fin d'ora ogni responsabilità su eventuali errori o incongruenze.
Gescom Italia srl leader negli stralci immobiliari e nella consulenza tecnico legale, non si occupa di attività di intermediazione imm. di cui alla legge 39/89.
Cl. energ. da verificare.
Le foto pubblicate nel presente annuncio sono indicative e non esaustive della tipologia, qualità, consistenza e indicazione geografica dell'immobile.
Caratteristiche
Contratto
Vendita
Tipologia
Capannone | Classe immobile economica
Superficie
1.231 m²
Locali
1 locale
Piano
Piano terra
Altre caratteristiche
  • Esposizione sud
Efficienza energetica

Consumo di energia

A

Per partecipare
Spesa prenota debito
No
Contributo non dovuto
No
Dettagli lotto
Numero immobili
1
Dati procedura
Aggiornato il
16/09/2025
Planimetria
Scopri ogni angolo dell'immobile
+14
Opzioni aggiuntive

Contatta l'inserzionista