Laboratorio all'asta via Giacomo Puccini, Bientina

da € 50.990,00
5+
250 m²
T

Nota

Annuncio aggiornato il 18/09/2025
Descrizione

riferimento: M PISA-30/10/2025-44/2023-Maria-4449386

Laboratorio in asta in Via Puccini, N. snc, 56031 Bientina P

RIFEREMENTO4449386

Via Puccini, N. snc, 56031 Bientina Pisa

Capannone da riqualificare sito a Bientina (PI), in via Puccini.

Trattasi di capannone artigianale con resedi esclusivi anteriori e posteriori ubicato in zona artigianale ben servita a nord di Bientina.

L’immobile, parte di un più ampio complesso produttivo, si presenta in stato di inagibilità a causa del crollo della copertura, successivamente ripristinata senza completamento degli interventi interni

Data di vendita30/10/2025
Offerta minima €50.990,00
valore perizia: €109.600,00

La data di vendita è molto vicina e pensi di non fare in tempo a partecipare? Rispondiamo tutti i giorni H24

Studio di Fattibilità Pre-Asta

Offriamo consulenza legale completa per l'acquisto tramite asta giudiziaria. I nostri servizi includono:

Ricerca dell'immobile secondo le esigenze del cliente
Studio di fattibilità pre-asta in fase di richiesta di visita
Studio di fattibilità del mutuo tramite banche convenzionate
Esame della perizia e documentazione correlata
Verifica legale
Preparazione e deposito delle offerte di partecipazione
Gestione della gara
Consulenza e documentazione post-aggiudicazione fino all'emissione del decreto di trasferimento o del rogito

Vi invitiamo a fissare una prima consulenza gratuita presso una delle nostre 80 sedi sparse su tutto il territorio per ricevere maggiori informazioni sul processo di partecipazione ad un'asta giudiziaria, tempistiche, costi e modalità di acquisto.

Ulteriore documentazione disponibile verrà messa a disposizione durante la consulenza.

+39 06 4006 1824

Visitate il nostro sito www.asteflorio.com dove potrete trovare più di 25.000 Aste disponibili e la nuova sezione dedicata agli NPL.
NB: Le immagini potrebbero essere solo esempi e non rappresentare gli immobili reali. Le coordinate geografiche, fornite automaticamente da Google, possono contenere inesattezze. Segnalate eventuali errori e rimuoveremo gli annunci non conformi.
 L'ESATTEZZA DI TUTTI I DATI PUBBLICATI INOLTRE SARA' CONFERMATA IN SEDE DI CONSULENZA.
Se vuoi saperne di più, puoi parlare con Aste Florio.

Di solito risponde entro 1 giorno

Caratteristiche
Contratto
Vendita
Tipologia
Laboratorio | Intera proprietà | Classe immobile media
Superficie
250 m²
Locali
5+ locali, 3+ bagni
Piano
Piano terra
Piani edificio
1
Dati catastali
Foglio 17 - Particella 555
Altre caratteristiche
  • Parzialmente Arredato
Dettaglio superficie

Laboratorio

Piano
Piano terra
Superficie
250,0 m²
Coefficiente
100%
Tipo superficie
Principale
Sup. commerciale
250,0 m²
Efficienza energetica

Consumo di energia

≥ 175 kWh/m² annoG

Dettaglio vendite
Tipo vendita
Competitiva
Data vendita
30/10/2025, 10:00
Stato
Non partecipabile
Per partecipare
Offerta minima
€ 50.990,00
Spesa prenota debito
No
Contributo non dovuto
No
Referente
M PISA-30/10/2025-44/2023-Maria-4449386
Dettagli lotto
Lotto numero
2515043
Numero immobili
1
Categoria
IMMOBILE COMMERCIALE
Dati procedura
Aggiornato il
30/09/2025
Numero procedura
2023
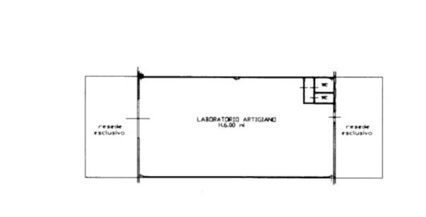
Planimetria
Screenshot_10
Scopri ogni angolo dell'immobile
+13
Opzioni aggiuntive

Contatta l'inserzionista