Quadrilocale via Antonio Gramsci, Trezzano Rosa

€ 376.000
4
130 m²
2
T
No

Nota

Annuncio aggiornato il 21/10/2025
Descrizione

riferimento: 4LOC.TREZZANO-IZ376V

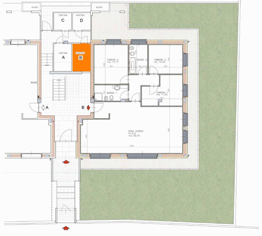
ELEGANZA E COMFORT IN UN UNICO LIVELLO

Piano terra con giardino privato
All’interno della nuova e prestigiosa palazzina di Trezzano Rosa, proponiamo un esclusivo quadrilocale di 130,00mq disposto interamente su un unico livello, progettato per offrire ampi spazi e massima vivibilità.
L’ingresso si apre su una zona giorno di 50,00mq, luminosa e accogliente, con cucina a vista (separabile e abitabile), ideale per momenti conviviali e di relax. Un comodo disimpegno conduce alla zona notte, composta da tre camere da letto, tutte con accesso diretto all’area esterna, e doppi servizi finemente rifiniti.
All’esterno, un ampio portico di 50,00mq abbraccia la casa e si affaccia su un magnifico giardino privato di 220,00mq disposto su tre lati, perfetto per chi ama vivere all’aperto in ogni stagione. L’esposizione est-sud-ovest regala luce naturale durante tutta la giornata.
A completare la proprietà:
• Cantina di 5,00mq al piano terra
• Box doppio in larghezza incluso nel prezzo sempre al piano terra
Una soluzione unica che unisce la comodità degli spazi interni, l’esclusività degli esterni e le più avanzate tecnologie costruttive.
Se vuoi saperne di più, puoi parlare con Ivan Zorzetto.
Caratteristiche
Tipologia
Appartamento
Contratto
Vendita
Piano
Piano terra
Piani edificio
2
Ascensore
No
Superficie
130 m²
Locali
4
Bagni
2
Altre caratteristiche
  • Infissi esterni in doppio vetro / PVC
Planimetria
Scopri ogni angolo dell'immobile
+3
Inserzionista
scheda agenzia
Mutuo
%
Durata del mutuo

Rata da € 1.117 al mese

€ 112.800 (30%)

€ 263.200 (70%)

Vuoi sapere che mutuo puoi richiedere?

Opzioni aggiuntive

Contatta l'inserzionista