

Nota
riferimento: F792
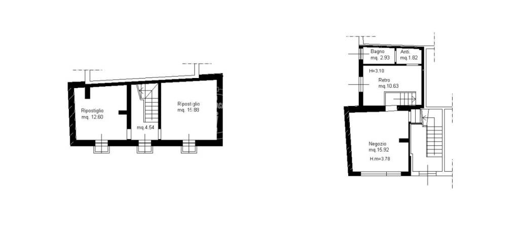
Locale commerciale con garage in vendita a Fiorano Modenese
Box o garage
Negozio - Locale commerciale
Anno di costruzione
1950Stato
Buono / AbitabileRiscaldamento
Autonomo, ad aria, alimentato a metanoClimatizzatore
Autonomo, freddo