Trilocale via Adolfo Tommasi 27, Coteto, Livorno

€ 127.000
3
74 m²
1
3
No

Nota

Annuncio aggiornato il 07/11/2025
Descrizione

riferimento: COLLINE60611

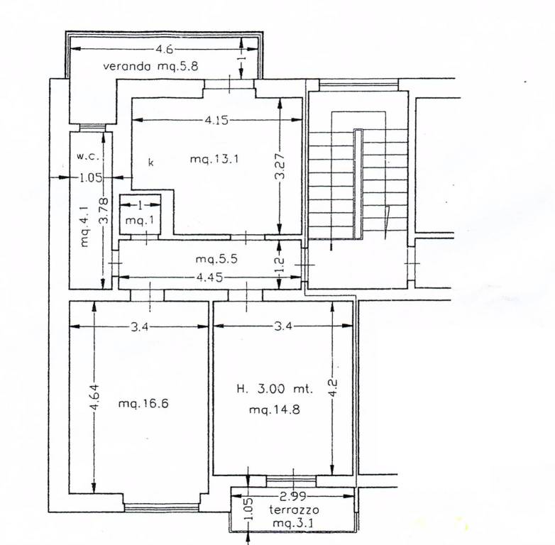
COLLINE - TRILOCALE IN OTTIME CONDIZIONI - Euro 127.000 - In contesto tranquillo, piccolo condominio anni '80 proponiamo in esclusiva la vendita di un appartamento posto al terzo piano senza ascensore. Ottime condizioni generali e abitabile da subito. Nasce come Sala, cucina abitabile, camera matrimoniale, bagno, ripostiglio e veranda. Al momento però la veranda è allestita a cucina, pertanto la cucina originaria è adibita a zona giorno e le camere sono due. Da rimodernare. Basse spese condominiali. Termoautonomo in classe energetica "G" - Riferimento annuncio COLLINE60611
Se vuoi saperne di più, puoi parlare con Manrico Della Rosa.
Caratteristiche
Tipologia
Appartamento | Intera proprietà | Classe immobile economica
Contratto
Vendita
Piano
3
Piani edificio
3
Ascensore
No
Superficie
74 m²
Locali
3
Camere da letto
1
Cucina
Cucina cucinotto
Bagni
1
Arredato
No
Balcone
No
Terrazzo
No
Riscaldamento
Autonomo, a radiatori, alimentato a metano
Climatizzazione
Autonomo, freddo/caldo
Altre caratteristiche
  • Fibra ottica
  • Infissi esterni in doppio vetro / metallo
  • Porta blindata
  • Impianto tv singolo
Dettaglio superficie

Abitazione

Piano
3
Superficie
74,0 m²
Coefficiente
100%
Tipo superficie
Principale
Sup. commerciale
74,0 m²
Informazioni sul prezzo
Prezzo
€ 127.000
Prezzo al m²
1.716 €/m²
New
Dettaglio dei costi
Spese condominio
€ 20/mese
Efficienza energetica

Consumo di energia

≥ 175 kWh/m² annoG

Planimetria
Piantina
Piantina
Piantina catastale
Scopri ogni angolo dell'immobile
+27
Mutuo
%
Durata del mutuo

Rata da € 377 al mese

€ 38.100 (30%)

€ 88.900 (70%)

Vuoi sapere che mutuo puoi richiedere?

Opzioni aggiuntive

Contatta l'inserzionista

Oppure