Ufficio all'asta via Evangelista Torricelli 2/a, Sant'Ilario d'Enza

da € 41.990,00
2
18/11/2025
122 m²
T

Nota

Annuncio aggiornato il 23/09/2025
Descrizione

riferimento: reggio emilia-153/2023-18/11/2025-vittoria-4445384

uffico all'asta in Via Evangelista Torricelli, 2/a

RIFERIMENTO:4445384

Via E. Torricelli, 2/a, Sant'Ilario d'Enza Reggio Emilia

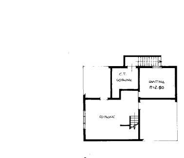
Piena proprieta' di unita' immobiliare destinata ad ufficio, composta da ingresso, tre locali ufficio, disimpegno, bagno, archivio, ripostiglio e due balconi, oltre a cantina posta al piano interrato. Superficie commerciale pari a mq. 122,65.

Data di vendita:18/11/2025
Offerta minima:€41.990,00

valore perizia:€73.590,00

La data di vendita è molto vicina e pensi di non fare in tempo a partecipare? Rispondiamo tutti i giorni H24

Studio di Fattibilità Pre-Asta

Offriamo consulenza legale completa per l'acquisto tramite asta giudiziaria. I nostri servizi includono:

Ricerca dell'immobile secondo le esigenze del cliente
Studio di fattibilità pre-asta in fase di richiesta di visita
Studio di fattibilità del mutuo tramite banche convenzionate
Esame della perizia e documentazione correlata
Verifica legale
Preparazione e deposito delle offerte di partecipazione
Gestione della gara
Consulenza e documentazione post-aggiudicazione fino all'emissione del decreto di trasferimento o del rogito

Vi invitiamo a fissare una prima consulenza gratuita presso una delle nostre 80 sedi sparse su tutto il territorio per ricevere maggiori informazioni sul processo di partecipazione ad un'asta giudiziaria, tempistiche, costi e modalità di acquisto.

Ulteriore documentazione disponibile verrà messa a disposizione durante la consulenza.

+39 06 4006 1824

Visitate il nostro sito www.asteflorio.com dove potrete trovare più di 25.000 Aste disponibili e la nuova sezione dedicata agli NPL.
NB: Le immagini potrebbero essere solo esempi e non rappresentare gli immobili reali. Le coordinate geografiche, fornite automaticamente da Google, possono contenere inesattezze. Segnalate eventuali errori e rimuoveremo gli annunci non conformi.
 L'ESATTEZZA DI TUTTI I DATI PUBBLICATI INOLTRE SARA' CONFERMATA IN SEDE DI CONSULENZA.
Se vuoi saperne di più, puoi parlare con Aste Florio.

Di solito risponde entro 1 giorno

Caratteristiche
Contratto
Vendita
Tipologia
Ufficio | Intera proprietà | Classe immobile media
Superficie
122 m²
Locali
2 locali, 1 bagno
Piano
Piano terra
Piani edificio
1
Disponibilità
Libero
Dati catastali
Foglio 14 - Particella 62
Altri dati catastali
SubParticella 12
Altre caratteristiche
  • Parzialmente Arredato
Dettaglio superficie

Ufficio o Studio

Piano
Piano terra
Superficie
122,0 m²
Coefficiente
100%
Tipo superficie
Principale
Sup. commerciale
122,0 m²
Efficienza energetica

Consumo di energia

≥ 175 kWh/m² annoG

Dettaglio vendite
Tipo vendita
Senza incanto
Data vendita
18/11/2025, 09:55
Stato
Partecipabile
Per partecipare
Offerta minima
€ 41.990,00
Spesa prenota debito
No
Contributo non dovuto
No
Referente
Reggio emilia-153/2023-18/11/2025-vittoria-4445384
Dettagli lotto
Lotto numero
Lotto unico
Numero immobili
1
Categoria
IMMOBILE COMMERCIALE
Dati procedura
Aggiornato il
23/09/2025
Numero procedura
2023
Planimetria
Capture d'écran 2025-09-23 094934
Capture d'écran 2025-09-23 094932
Scopri ogni angolo dell'immobile
+8
Opzioni aggiuntive

Contatta l'inserzionista