map icon

Capannone in Vendita

LabicoVia Casilina No Number
€ 600.000
1
9.500 m²
1

Nota

Annuncio aggiornato il 23/09/2025
Descrizione

riferimento: 32683829-11

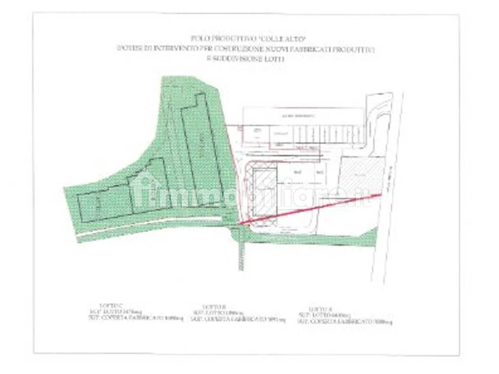
Capannone in via Casilina s.n.c., Labico

Ampliamento del Polo Produttivo Colle Alto già esistente ed operativo, unica realtà privata nel territorio tra Labico e Valmontone, a destinazione produttiva e per logistica.
Oggetto del progetto è un appezzamento di terreno mai edificato di mq 15.000 circa con un potenziale edificatorio a destinazione produttiva di mq 8.000 circa oltre ad ulteriori mq 1.500 ubicati su suolo già edificato.
Il suolo oggetto dell'intervento è posto sulle adiacenze di Via Casilina quindi ad altissima visibilità e logisticamente idoneo perché posto a pochi minuti in auto percorrendo la Via Casilina, dai caselli autostradali A1 di Valmontone e San Cesareo.
Il progetto prevede, come da Piano regolatore Generale, la suddivisione dell'appezzamento in n. 3 lotti denominati A, B e C con la possibilità di vendita dei lotti B e C e di locazione del lotto A. Il lotto minimo vendibile è di mq 3.000.
Si può valutare l'acquisto dei lotti privi di fabbricato (dotato di opere di urbanizzazione terminate) o del fabbricato con la formula "chiavi in mano" dotato di corte esterna esclusiva, opere di urbanizzazione terminate quindi vaibilità ed allaccio alla rete fognaria. L'edificio sarà del tipo prefabbricato con pannelli in cemento armato, idoneo ai massimi standard relativi alla normativa antincendio, sarà posto al piano terra, avrà un'altezza utile di mt 7,00.
I tempi di consegna per i lotti privi di edificazione sono previsti con l'ultimazione delle opere di urbanizzazione e dell'individuazione con segni tangibili del perimetro del lotto e della strada d'accesso; per l'edificio nuovo e terminato, i tempi di consegna verranno stabiliti in base ad un minimo di prenotazioni che si stanno già incamerando e che la proprietà ha già individuato.
PER UN'OPPORTUNITA' ANCORA PIU' IMMEDIATA:
Sulla zona di polo già esistente, quindi adiacente all'ampliamento sopra descritto, c'è un residuo potenziale edificatorio corrispondente a mq 1.500 di edificio con altezza utile di mt 7,00. Si può prenotare una superficie coperta minima di mq 500 ed una volta sottoscritto il contratto preliminare, si garantisce un tempo di consegna di non oltre 18 mesi. Per una più precisa indicazione, dell'edificio si puà acquistare l'intera porzione o un minimo di mq 500.
Il prezzo indicato sul,'annuncio è di € 1.200 al metro quadrato, considerando di acquistare l'edificio nuovo e "chiavi in mano" e si riferisce all’acquisto di superficie coperta minima di mq 500.
Per il prezzo richiesto del terreno si è stimato un valore medio di mercato pari ad € 100,00 al metro quadrato.

Siamo sempre disponibili, dal lunedi alla domenica, per sopralluoghi con tecnico progettista, visione progetti e capitolati di massima ed offriamo assistenza finanziaria con i migliori istituti di credito che propongono i prodotti ed i servizi finanziari può adatti alle imprese, visione sito di realizzazione del progetto e presentazione del Polo esistente.

PER NON PAGARE PIU' UNA LOCAZIONE INFRUTTIFERA, DAI UN FUTURO CERTO ALLA TUA IMPRESA, ACQUISTALA.
Caratteristiche
Contratto
Vendita
Tipologia
Capannone
Superficie
9.500 m²
Locali
1 locale, 1 bagno
Informazioni sul prezzo
Prezzo
€ 600.000
Prezzo al m²
63 €/m²
New
Efficienza energetica
  • Anno di costruzione

    2025
  • Certificazione energetica

    Non classificabile
Planimetria
Scopri ogni angolo dell'immobile
+2
Opzioni aggiuntive

Contatta l'inserzionista

Oppure