Terratetto plurifamiliare via Dino Savelli 8, Centro, Terracina

€ 195.000
4
85 m²
2
No
Parzialmente Arredato
Cantina

Nota

Annuncio aggiornato il 25/09/2025
Descrizione

riferimento: EK-123408483

Casa Indipendente CENTRALISSIMA - RISTRUTTURATA

Terracina - via Dino Savelli, 8: proponiamo in vendita con incarico in esclusiva CENTRALISSIMA CASA INDIPENDENTE recentemente RISTRUTTURATA con annessa CANTINA al piano terra.
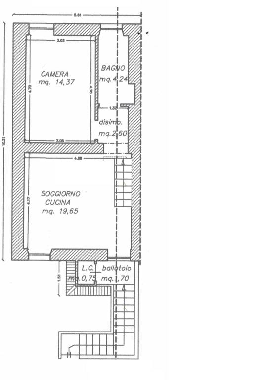
La proprietà vanta una superficie di 85 mq distribuiti su 2 livelli.
Piano primo: soggiorno con angolo cottura, sala, bagno con doccia; piano secondo: 2 camere, bagno con vasca. Presente comodo ripostiglio esterno con cucinotto al primo piano.
La casa è dotata di caloriferi, condizionatori, porte e finestre nuove, serramenti elettrici, zanzariere in ogni ambiente, porta blindata.
A soli 750 mt dal mare in viva zona turistico residenziale la proprietà si trova nel pieno centro cittadino vicinissima a ogni servizio.
Chiama per saperne di più!
Se vuoi saperne di più, puoi parlare con Referente Maria Rita.
Caratteristiche
Tipologia
Terratetto plurifamiliare | Intera proprietà | Classe immobile media
Contratto
Vendita
Piano
1
Piani edificio
3
Ascensore
No
Superficie
85 m²
Locali
4
Camere da letto
2
Cucina
Cucina a vista
Bagni
2
Arredato
Parzialmente Arredato
Balcone
No
Terrazzo
No
Riscaldamento
Autonomo
Climatizzazione
Autonomo
Altre caratteristiche
  • Esposizione esterna
  • Impianto di allarme
  • Infissi esterni in doppio vetro / PVC
  • Mansarda
  • Porta blindata
  • Impianto tv singolo
Dettaglio superficie

Abitazione

Piano
1
Superficie
85,0 m²
Coefficiente
100%
Tipo superficie
Principale
Sup. commerciale
85,0 m²
Informazioni sul prezzo
Prezzo
€ 195.000
Prezzo al m²
2.294 €/m²
New
Dettaglio dei costi
Spese condominio
Nessuna spesa condominiale
Efficienza energetica

Consumo di energia

≥ 3,51 kWh/m² annoG

Planimetria
30
29
Scopri ogni angolo dell'immobile
+22
Inserzionista
Referente Maria Rita

Referente Maria Rita

scheda agenzia
Mutuo
%
Durata del mutuo

Rata da € 579 al mese

€ 58.500 (30%)

€ 136.500 (70%)

Vuoi sapere che mutuo puoi richiedere?

Opzioni aggiuntive

Contatta l'inserzionista

Oppure
Referente Maria Rita

Referente Maria Rita