Ufficio - Studio in Vendita

€ 220.000
5
230 m²

Nota

Annuncio aggiornato il 05/12/2025
Descrizione

riferimento: Oriago 11NV

Oriago ufficio piano terra

Oriago su edificio storico in pieno centro proponiamo in vendita ufficio ad uso direzionale al piano terra fronte strada, in posizione di grande passaggio e per questo ideale per attività di vario genere.

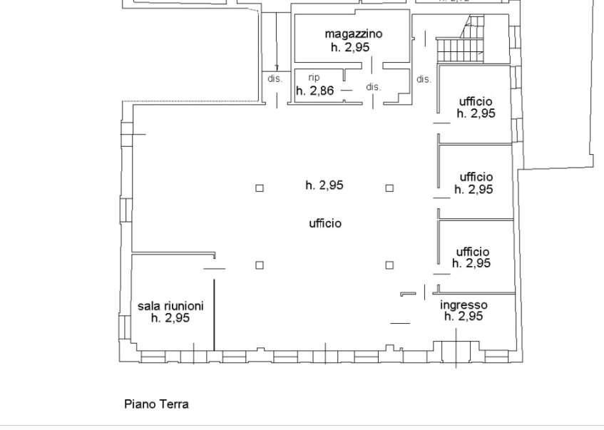
L'immobile di circa 230 mq è disposto al piano terra con comodo ingresso, al momento suddiviso in area centrale, 3 uffici, una sala riunioni e magazzino con ripostiglio.
Massima disponibilità per la possibile suddivisione in più unità anche ad uso commerciale.

Possibilità di acquisto di garage o posto auto adiacente.

Prezzo richiesto Euro 220.000,00 trattabili
APE in fase di elaborazione

Per maggiori informazioni contattare il numero 041.5630534
Rif. Annuncio Oriago 11NV
Caratteristiche
Contratto
Vendita
Tipologia
Ufficio - Studio | Classe immobile signorile
Superficie
230 m²
Locali
5 locali
Piani edificio
2
Altre caratteristiche
  • Esposizione nord, sud, est, ovest
Informazioni sul prezzo
Prezzo
€ 220.000
Prezzo al m²
957 €/m²
New
Efficienza energetica
  • Stato

    Buono / Abitabile
  • Riscaldamento

    Autonomo
Planimetria
Scopri ogni angolo dell'immobile
+11
Opzioni aggiuntive

Contatta l'inserzionista

Oppure