Capannone all'asta via Afra Decò, Villafranca di Verona

da € 639.000,00
1
2.440 m²
T

Nota

Annuncio aggiornato il 30/09/2025
Descrizione

riferimento: P3031/25BIS

Capannone a Villafranca di Verona(VR)

NUOVA PROPOSTA

Unità nel comune di Villafranca di Verona(VR) in via Afra Decò.
Trattasi di capannone principale destinato ad attività produttive connesse al settore agricolo.
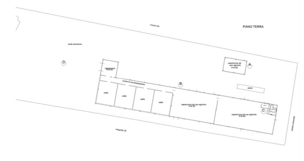
La struttura è composta da due ampi locali destinati alla lavorazione di frutta e verdura, rispettivamente di circa 782 mq per il primo locale e 582 mq per il secondo.
Nel primo locale sono presenti un ufficio, due spogliatoi per il personale e relativi servizi igienici, situati in un angolo dell’ambiente. Proseguendo nel secondo locale, si accede a una corsia di movimentazione che conduce a quattro celle frigorifere e si conclude in un'area dedicata al carico e scarico delle merce.
Fa parte della struttura un deposito attrezzi agricoli di 56,4 mq, cabina elettrica di 6,6 mq e area esterna di 273 mq.
Situato in una posizione strategica e ben collegata.

Per te la possibilità di avere un preventivo per il mutuo a condizioni vantaggiose con i nostri partner.
Ulteriori dettagli, foto degli interni, planimetrie e altre info, se disponibili, saranno consultabili previo appuntamento nella sede di VERONA con LUCIANO che inoltre ti informerà sulle possibilità di aggiudicarti questo affare.
L'immobile pubblicato al momento è sottoposto a procedura di vendita legale; Gescom srl è specializzata nella ricerca e pianificazione di investimenti immobiliari secondo innovative strategie di acquisto. Contattaci subito potrai valutare assieme a un nostro tecnico canali distinti di acquisto dell’immobile, procedura di vendita diretta senza ricorrere all’asta (d.lgs. 149/2022) e ancora stralcio immobiliare. Le informazioni sopra riportate non sostituiscono l'avviso pubblicato dal Tribunale competente ne’ l'integrale gestione da parte del delegato designato. Il testo e le specifiche indicate nella presente pagina sono generate automaticamente attraverso l'utilizzo di software e/o da A. I., Gescom srl invita a verificare le formazioni e i materiali multimediali sui canali ufficiali, declinando fin d'ora ogni responsabilità su eventuali errori o incongruenze.
Gescom Italia srl leader negli stralci immobiliari e nella consulenza tecnico legale, non si occupa di attività di intermediazione imm. di cui alla legge 39/89.
Cl. energ. da verificare.
Le foto pubblicate nel presente annuncio sono indicative e non esaustive della tipologia, qualità, consistenza e indicazione geografica dell'immobile.

Caratteristiche
Contratto
Vendita
Tipologia
Capannone | Classe immobile economica
Superficie
2.440 m²
Locali
1 locale
Piano
Piano terra
Altre caratteristiche
  • Esposizione nord
  • Portiere intera giornata
Efficienza energetica

Consumo di energia

A

Per partecipare
Spesa prenota debito
No
Contributo non dovuto
No
Dettagli lotto
Numero immobili
1
Dati procedura
Aggiornato il
30/09/2025
Planimetria
Scopri ogni angolo dell'immobile
+14
Opzioni aggiuntive

Contatta l'inserzionista