Palazzo - stabile all'asta via Santa Maria la Bruna, Torre del Greco

da € 45.560,00
3
16/12/2025
98 m²
No
Parzialmente Arredato

Nota

Annuncio aggiornato il 29/09/2025
Descrizione

riferimento: M TORRE ANNUNZIATA-16/12/2025-16/2022-ANNA-4456381

btazne all aasta in Via Santa Maria la Bruna,

RIFERIMENTO 4456381

Via Santa Maria la Bruna, 5, 80059 Torre del Greco NA, Italia, 80059 Torre del Greco Napoli
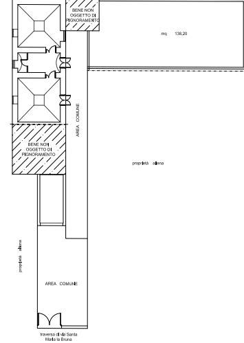
LOTTO UNICO: APPARTAMENTO AL PIANO TERRA DI CIRCA 98 MQ COMMERCIALI( RISULTANTE DALLA FUSIONE DI DUE UNITA' ABITATIVE) E PERTINENZIALE TERRENO DI CIRCA MQ 194 IN TORRE DEL GRECO, ALLA VIA SANTA MARIA LA BRUNA, N. 5.
Data di vendita 16/12/2025 15:00

Offerta minima 45.560,00 €
valore di perizia €85.000,00.

La data di vendita è molto vicina e pensi di non fare in tempo a partecipare? Rispondiamo tutti i giorni H24
Studio di Fattibilità Pre-Asta
Offriamo consulenza legale completa per l'acquisto tramite asta giudiziaria. I nostri servizi includono:
Ricerca dell'immobile secondo le esigenze del cliente
Studio di fattibilità pre-asta in fase di richiesta di visita
Studio di fattibilità del mutuo tramite banche convenzionate
Esame della perizia e documentazione correlata
Verifica legale
Preparazione e deposito delle offerte di partecipazione
Gestione della gara
Consulenza e documentazione post-aggiudicazione fino all'emissione del decreto di trasferimento o del rogito
Vi invitiamo a fissare una prima consulenza gratuita presso una delle nostre 80 sedi sparse su tutto il territorio per ricevere maggiori informazioni sul processo di partecipazione ad un'asta giudiziaria, tempistiche, costi e modalità di acquisto.

Ulteriore documentazione disponibile verrà messa a disposizione durante la consulenza.
+39 06 4006 1824
Visitate il nostro sito www.asteflorio.com dove potrete trovare più di 25.000 Aste disponibili e la nuova sezione dedicata agli NPL.
NB: Le immagini potrebbero essere solo esempi e non rappresentare gli immobili reali. Le coordinate geografiche, fornite automaticamente da Google, possono contenere inesattezze. Segnalate eventuali errori e rimuoveremo gli annunci non conformi.
L'ESATTEZZA DI TUTTI I DATI PUBBLICATI INOLTRE SARA' CONFERMATA IN SEDE DI CONSULENZA.
Se vuoi saperne di più, puoi parlare con Aste Florio.

Di solito risponde entro 12 ore

Caratteristiche
Tipologia
Palazzo - Stabile | Intera proprietà | Classe immobile media
Contratto
Vendita
Piano
Piano terra
Piani edificio
3
Ascensore
No
Superficie
98 m²
Locali
3
Camere da letto
2
Balcone
No
Terrazzo
No
Riscaldamento
Autonomo, a radiatori, alimentazione elettrica
Climatizzazione
Autonomo, freddo/caldo
Dati catastali
Foglio 27 - Particella 327
Altri dati catastali
SubParticella 2/102
Altre caratteristiche
  • Esposizione doppia
  • Infissi esterni in vetro / metallo
  • Porta blindata
  • Impianto tv con parabola satellitare
Dettaglio superficie

Abitazione

Piano
Piano terra
Superficie
98,0 m²
Coefficiente
100%
Tipo superficie
Principale
Sup. commerciale
98,0 m²
Efficienza energetica

Consumo di energia

≥ 175 kWh/m² annoG

Dettaglio vendite
Tipo vendita
Senza incanto
Data vendita
16/12/2025, 15:00
Stato
Partecipabile
Per partecipare
Offerta minima
€ 45.560,00
Spesa prenota debito
No
Contributo non dovuto
No
Referente
TORRE ANNUNZIATA-16/12/2025-16/2022-ANNA-4456381
Dettagli lotto
Lotto numero
Lotto 1
Numero immobili
1
Categoria
IMMOBILE RESIDENZIALE
Dati procedura
Aggiornato il
30/09/2025
Numero procedura
2022
Planimetria
Screenshot_11
Scopri ogni angolo dell'immobile
+9
Mutuo
%
Durata del mutuo

Rata da € 135 al mese

€ 13.668 (30%)

€ 31.892 (70%)

Vuoi sapere che mutuo puoi richiedere?

Opzioni aggiuntive

Contatta l'inserzionista