Terreno edificabile in Vendita

€ 220.000
3.000 m²

Nota

Annuncio aggiornato il 01/10/2025
Descrizione

riferimento: VLBU01

LOC. BUDRIO-VENDESI TERRENO EDIFICABILE AD USO RESIDENZIALE.

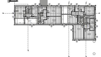
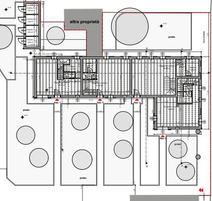
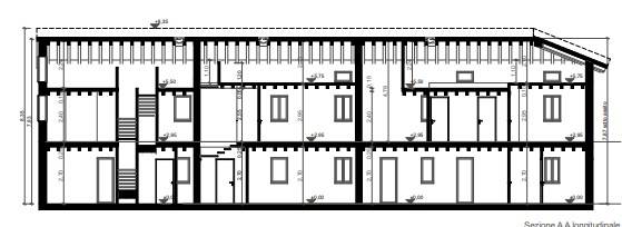
LOC. BUDRIO- Proponiamo in ottima posizione, in zona tranquilla e riservata, vicinissima al centro cittadino (KM. 1,5), lotto ad uso residenziale, con progetto per la realizzazione di 4 unità abitative indipendenti a schiera, disposte su tre livelli, con giardini privati, cantine e garage. Il lotto ha una superfice totale di mq. 3000, mentre la superfice utile è di mq. 400 c. a. ( Per inf. tel. 366/4542114).
Caratteristiche
Contratto
Vendita
Tipologia
Terreno edificabile
Superficie
3.000 m²
Qualificazione urbanistica
Unità multiple
Dislivello terreno
Medio
Area edificabile
400 m²
Altre caratteristiche
  • Allaccio acqua
  • Allaccio elettricità
  • Allaccio fogne
  • Allaccio gas
  • Illuminazione pubblica
  • Recintato
Informazioni sul prezzo
Prezzo
€ 220.000
Prezzo al m²
73 €/m²
New
Planimetria
Screenshot 2025-09-18 180158
Screenshot 2025-09-18 180538
Screenshot 2025-09-18 180613
PROSPETTO ESTRNO 2
Screenshot 2025-09-18 180454
Screenshot 2025-09-18 180908
Screenshot 2025-09-18 180716
Screenshot 2025-09-18 180348
PROSPETTO ESTERNO VIA DRITTO
Screenshot 2025-09-18 180828
Screenshot 2025-09-18 180754
PROSPETTO ESTERNO 1
Screenshot 2025-09-18 180333
SEZIONE DI PROGETTO1
Screenshot 2025-09-18 180418
Scopri ogni angolo dell'immobile
+12
Opzioni aggiuntive

Contatta l'inserzionista

Oppure