Rustico, buono stato, 234 m², Fauglia

€ 297.000
5+
234 m²
2
No
Terrazzo

Nota

Annuncio aggiornato il 15/11/2025
Descrizione

riferimento: ACCIA35337

FAUGLIA - CASALE AGRICOLO CON ANNESSI E 3 ETTARI DI TERRENO
Nel cuore del comune di Fauglia si trova questo affascinante casale indipendente, circondato da un ampio terreno e ricco di storia e carattere. La proprietà comprende vari annessi, tra cui una particolare grotta utilizzata in passato per la coltivazione dei funghi champignon, e un complesso di edifici che raccontano il passato rurale del luogo. Al piano terra si trovano un magazzino, una cantina, una carraia, una vecchia stalla con un forno a legna ancora funzionante, testimonianza di un passato agricolo autentico.

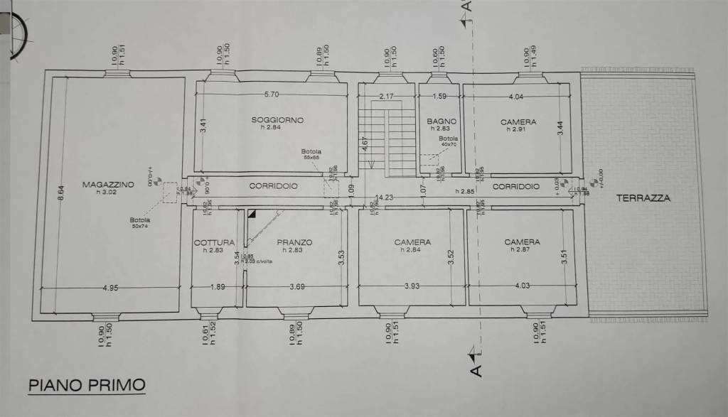
Salendo dall' ingresso principale tramite una scala interna, si accede a un lungo corridoio che conduce al soggiorno con camino, a un cucinotto, al bagno, e alle tre spaziose camere da letto e al doppio salone oltre a un enorme stanza accatastata come magazzino, offrendo ambienti luminosi e accoglienti. Alla fine del corridoio si apre una grande terrazza di 43 m², da cui si può godere di una vista panoramica sul paese e sul vigneto e l'orto sottostante, perfetta per momenti di relax e convivialità.

Sul retro della proprietà si trova un ampio locale adibito a garage per i mezzi agricoli, mentre l'intera tenuta è completamente recintata, con un cancello carrabile che dà accesso all'ampio cortile e un cancello pedonale che conduce al giardino frontale. La proprietà comprende anche circa 3 ettari di terreno, tra cui un appezzamento con 75 piante di olivi pregiati, vigneti e seminativi, ideali per attività agricole o semplicemente per vivere immersi nella natura.

Completa questo meraviglioso podere una sorgente di proprietà, che in passato forniva acqua a tutto il paese, simbolo di un patrimonio storico e naturale unico nel suo genere.
Classe Energetica "G" EPgl,nren 366.49 Kwh mq/anno - Riferimento Annuncio ACCIA35337

Classe Energetica: G EPI: 0,77 kwh/m2 anno
Caratteristiche
Tipologia
Rustico | Intera proprietà | Classe immobile media
Contratto
Vendita
Piano
Piano terra
Piani edificio
1
Ascensore
No
Superficie
234 m² | commerciale 776,2 m²
Locali
5+
Camere da letto
3
Cucina
Cucina cucinotto
Bagni
2
Arredato
No
Balcone
No
Terrazzo
Riscaldamento
Autonomo
Altre caratteristiche
  • Caminetto
Dettaglio superficie

Abitazione

Piano
1
Superficie
234,0 m²
Coefficiente
100%
Tipo superficie
Accessoria
Sup. commerciale
234,0 m²

Altro

Piano
Piano terra
Superficie
234,0 m²
Coefficiente
100%
Tipo superficie
Principale
Sup. commerciale
234,0 m²

Terrazzo

Piano
1
Superficie
43,0 m²
Coefficiente
19%
Tipo superficie
Accessoria
Sup. commerciale
8,2 m²

Terreno

Piano
Piano terra
Superficie
30.000,0 m²
Coefficiente
1%
Tipo superficie
Accessoria
Sup. commerciale
300,0 m²
Informazioni sul prezzo
Prezzo
€ 297.000
Prezzo al m²
383 €/m²
New
Efficienza energetica

Consumo di energia

0.77 kWh/m² annoG

Planimetria
PIANTINA
PIANTINA
Scopri ogni angolo dell'immobile
+56
Mutuo
%
Durata del mutuo

Rata da € 882 al mese

€ 89.100 (30%)

€ 207.900 (70%)

Vuoi sapere che mutuo puoi richiedere?

Opzioni aggiuntive

Contatta l'inserzionista

Oppure