Capannone in Vendita

€ 330.000
3
564 m²
2

Nota

Annuncio aggiornato il 31/10/2025
Descrizione

riferimento: imf01

affare Vedano Olona vicinanze capannone mq. 500 con ufficio

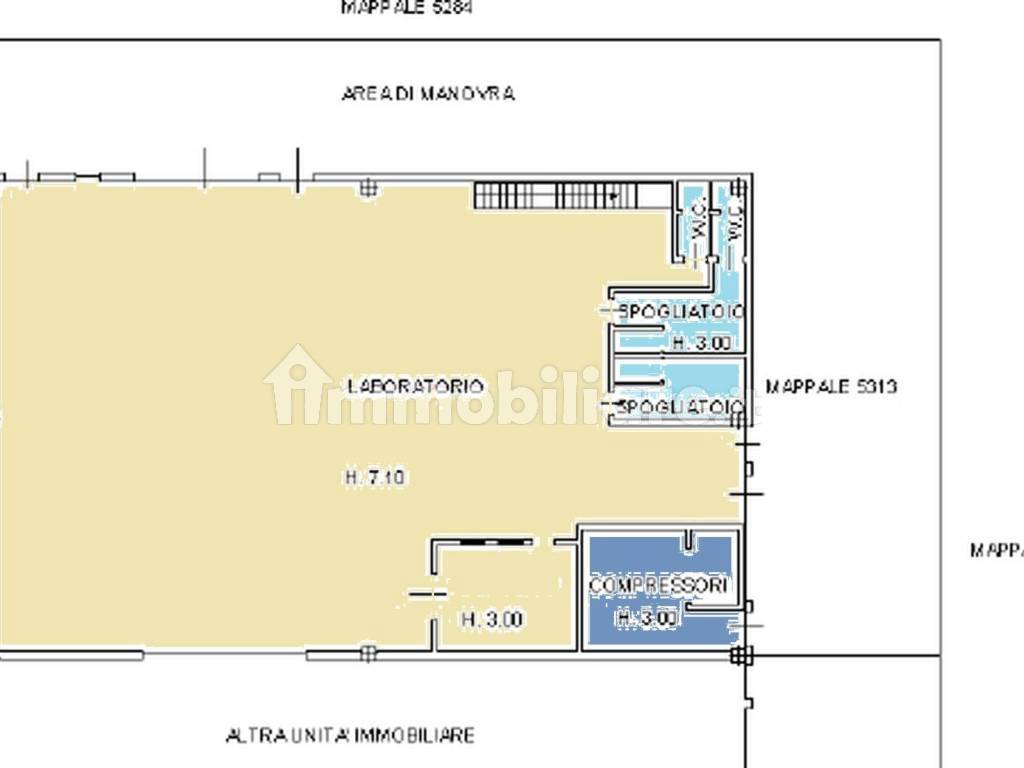
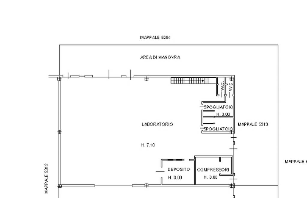
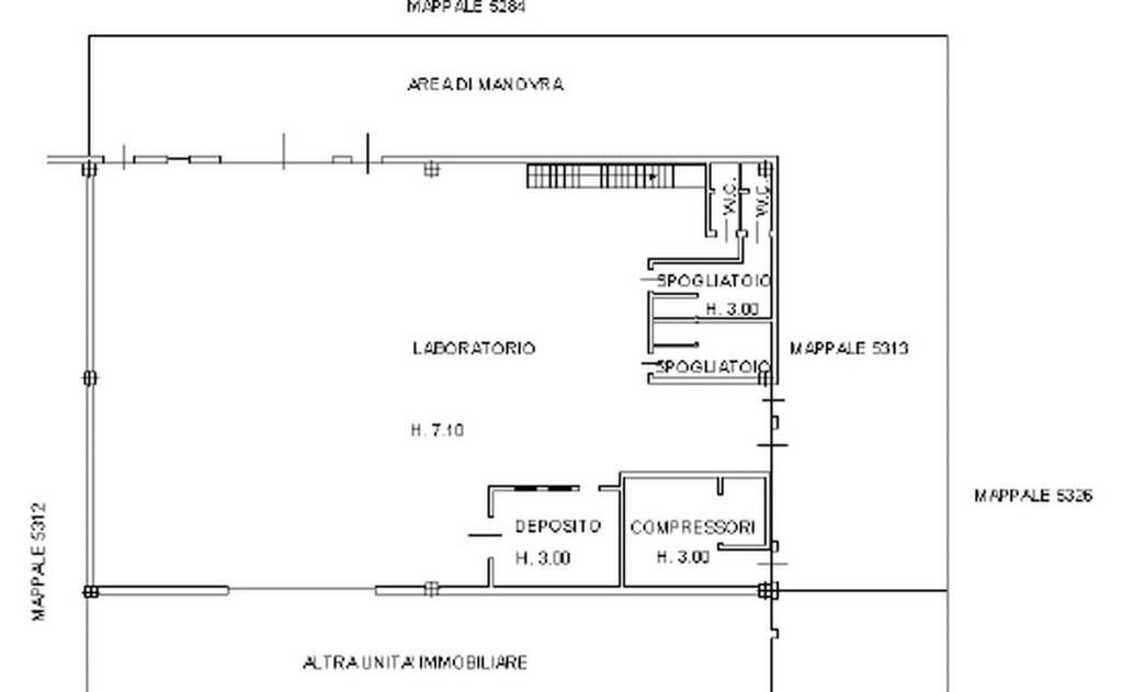
Vedano Olona vicinanze, comune di Binago, affare vendesi, eventuale affitto a riscatto per due anni, capannone industriale in ottime condizioni altezza 7 ml. completo di impianti ed uffici, così composto:
piano terra capannone / laboratorio dotato di doppi bagni e spogliatoi, piccolo ufficio e locale tecnico compressori.
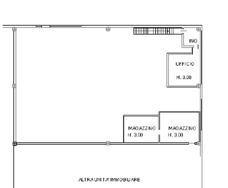
primo primo ufficio mq. 30 e locali archivio mq. 50 c.a, piazzale recintatio mq. 200 + corsello comune
L'immobile è dotato di impianto riscaldamento composto da caldaie esterne con areotermo interno, autonome tipo "Areotermo Robur"
impianto elettrico illuminazione, ed impianto prese da completare e personalizzare.
area esterna in proprietà recintata con diritto di passo a favore dell'unità adicente.
Per informazioni ed appuntamenti geom. Falzone tel. 335 388 103
Caratteristiche
Contratto
Vendita | Affitto con riscatto
Tipologia
Capannone
Superficie
564 m²
Locali
3 locali, 2 bagni - uno o più adatto a persone disabili
Piano
2 piani: Piano terra, 1°
Piani edificio
2
Box, posti auto
1 in box privato/box in garage, 5 in parcheggio/garage comune
Altezza capannone
8 m
Altezza sottotrave
7,1 m
Campate
1 - senza pilastri
Altre caratteristiche
  • Docce
  • Impianto di allarme
  • Passo carrabile
  • Recintato
  • Spogliatoio
Dettaglio superficie

Capannone

Piano
Piano terra
Superficie
510,0 m²
Coefficiente
100%
Tipo superficie
Principale
Sup. commerciale
510,0 m²

Ufficio o Studio

Piano
1
Superficie
30,0 m²
Coefficiente
100%
Tipo superficie
Principale
Sup. commerciale
30,0 m²

Altro

Piano
1
Superficie
48,0 m²
Coefficiente
50%
Tipo superficie
Principale
Sup. commerciale
24,0 m²
Informazioni sul prezzo
Prezzo
€ 330.000
Prezzo al m²
585 €/m²
New
Dettaglio dei costi
Spese condominio
Nessuna spesa condominiale
Efficienza energetica

Consumo di energia

386.04 kWh/m² annoD

Planimetria
piazzale
piano terra mq. 500
piano primo
Scopri ogni angolo dell'immobile
+20
Opzioni aggiuntive

Contatta l'inserzionista

Oppure