map icon

Quadrilocale via Giacomo Matteotti, 78, Centro, Ceccano

CeccanoVia Giacomo Matteotti, 78
€ 60.000
4
155 m²
1
No
Balcone
Terrazzo

Nota

Annuncio aggiornato il 03/10/2025
Descrizione

riferimento: 33280226-QTR 076

Appartamento su due piani in via Giacomo Matteotti, 78, Ceccano

Ottima occasione in pieno centro, in via Matteotti. Casa su 2 livelli con Portico e Terrazzo! Ed anche un Piccolo giardino di proprietà esclusiva!

I necessari interventi permettono di personalizzare la casa secondo il proprio gusto. Il tetto è in buonissime condizioni, rifatto alcuni anni fa, le strutture portanti come i solai ed i muri di oltre 55cm di spessore, non presentano criticità. Per il resto, gli impianti, i pavimenti e gli infissi sono datati ma funzionanti.

E' l'ideale per chi volesse coniugare una piccola Abitazione con una Attività artigianale/hobby/piccolo negozio o Studio Professionale.

Le caratteristiche interessanti di questa soluzione sono almeno tre:

1) La centralità con tutti i servizi praticamente raggiungibili a piedi (scuole, uffici, negozi, servizi)

2) Valore aggiunto di: Terrazza, Portico, Piccolo angolo di Giardino. Tutto esposto a Sud-Ovest

3) La completa Indipendenza che si può raggiungere con i lavori di ristrutturazione collegando in modo del tutto indipendente i 2 livelli ( realizzando una scala interna ).

OTTIMA SOLUZIONI PER CHI VUOLE realizzare 2 unità immobiliari E METTERLE A REDDITO.

COMPOSIZIONE
2 livelli:
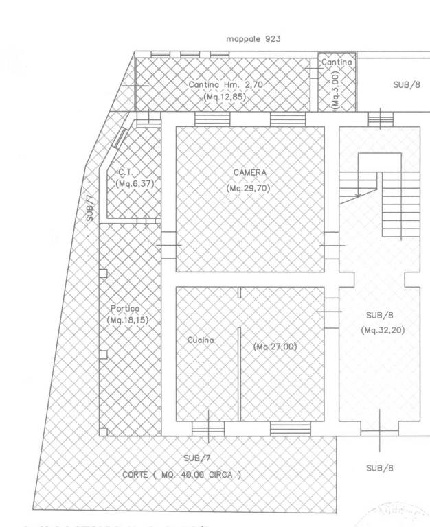
Piano TERRA
56 mq utili più corte, portico 18 mq e piccolo giardinetto.
Dal cortile, fronte strada, tramite il portoncino d'ingresso (indipendente) si accede direttamente nella grande cucina di 27 mq, questo ambiente è diviso da un esile muretto basso, vedi foto. Abbiamo poi un altra stanza (ottima come studio/ufficio) di quasi 30 mq che dispone di un ingresso indipendente dal portico e di un altro ingresso dal vano scala in comune. In questo grande vano c'è un antico e caratteristico forno!

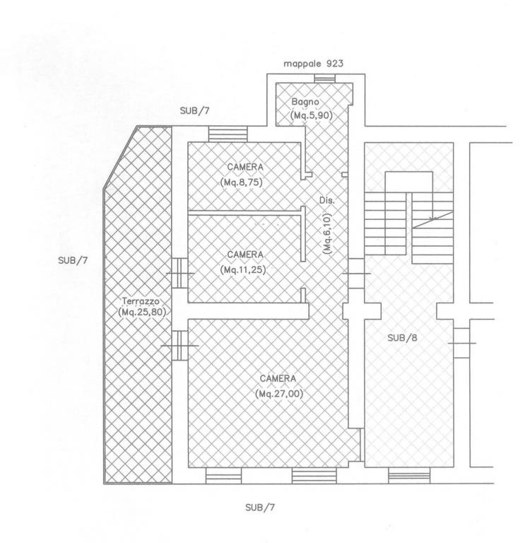
Piano PRIMO, attualmente con unico accesso da vano scala in comune ( vedi planimetria)
59 mq utili più terrazza 25 mq
Disimpegno, camera di 27 mq, 2 camerette, bagno, terrazza

UTENZE
Zona urbanizzata, c'è tutto. Luce, metano, acquedotto, fognatura. Tutto collegato, solo da riattivare le utenze!

Se vuoi realizzare 2 bilocali, oppure una piccola abitazione con terrazzo ed uno studio/negozio con portico vieni a vedere questo versatile palazzetto cielo terra in centro città!

Si valuta anche la possibilità di VENDERE SEPARATAMENTE I PIANI frazionando l'immobile in 2 unità.

NOTA
Questo immobile è promozionato in collaborazione con l'Agenzia IN IMMOBILIARE di Frosinone.

Chiamaci o scrivici in chat!
Caratteristiche
Tipologia
Appartamento
Contratto
Vendita
Ascensore
No
Superficie
155 m²
Locali
4
Camere da letto
4
Bagni
1
Balcone
Terrazzo
Informazioni sul prezzo
Prezzo
€ 60.000
Prezzo al m²
387 €/m²
New
Planimetria
Scopri ogni angolo dell'immobile
+20
Mutuo
%
Durata del mutuo

Rata da € 178 al mese

€ 18.000 (30%)

€ 42.000 (70%)

Vuoi sapere che mutuo puoi richiedere?

Opzioni aggiuntive

Contatta l'inserzionista

Oppure