Capannone all'asta via Feliciano Fedeli 16, Foligno

da € 383.140,00
5+
1.286 m²
T

Nota

Annuncio aggiornato il 03/10/2025
Descrizione

riferimento: SPOLETO-14/11/2025-2/2016-Rosa-4458864

capannone all'asta in Via Feliciano Fedeli, 16

riferimento4458864

Via Feliciano Fedeli, N. 16, Foligno

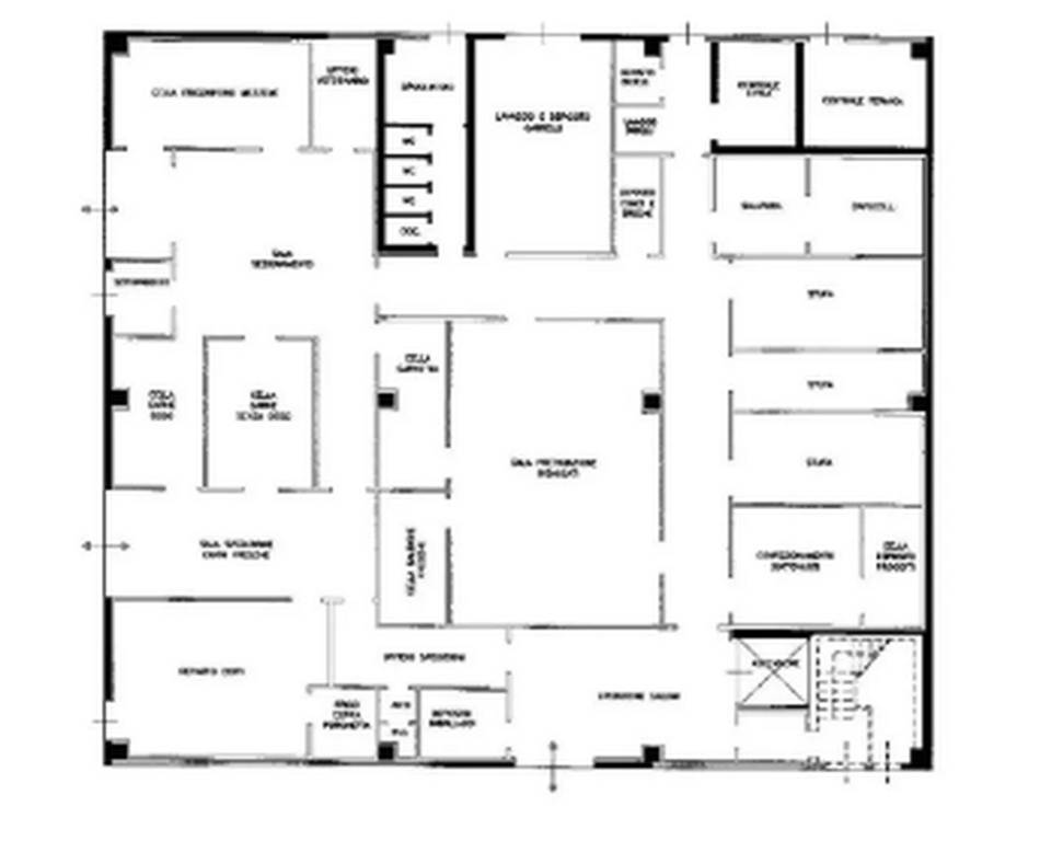
Edificio artigianale a Foligno (PG), località La Paciana, via Feliciano Fedeli 16. Periferia industriale ben servita. Superficie principale di 1286 mq. Opificio su due piani con corte privata. Laboratori, spogliatoi, area vendita, uffici, alloggio custode grezzo e magazzini. Finiture e impianti adatti a lavorazione carni. Celle frigorifere incluse. Agibilità rilasciata.

Data di vendita 14/11/2025
Offerta minima 383.140,00 €
valore perizia 973.006,00 €

La data di vendita è molto vicina e pensi di non fare in tempo a partecipare? Rispondiamo tutti i giorni H24

Studio di Fattibilità Pre-Asta
Offriamo consulenza legale completa per l'acquisto tramite asta giudiziaria. I nostri servizi includono:

Ricerca dell'immobile secondo le esigenze del cliente
Studio di fattibilità pre-asta in fase di richiesta di visita
Studio di fattibilità del mutuo tramite banche convenzionate
Esame della perizia e documentazione correlata
Verifica legale
Preparazione e deposito delle offerte di partecipazione
Gestione della gara
Consulenza e documentazione post-aggiudicazione fino all'emissione del decreto di trasferimento o del rogito

Vi invitiamo a fissare una prima consulenza gratuita presso una delle nostre 80 sedi sparse su tutto il territorio per ricevere maggiori informazioni sul processo di partecipazione ad un'asta giudiziaria, tempistiche, costi e modalità di acquisto.

Ulteriore documentazione disponibile verrà messa a disposizione durante la consulenza.

+39 06 4006 1824

Visitate il nostro sito www.asteflorio.com dove potrete trovare più di 25.000 Aste disponibili e la nuova sezione dedicata agli NPL.
NB: Le immagini potrebbero essere solo esempi e non rappresentare gli immobili reali. Le coordinate geografiche, fornite automaticamente da Google, possono contenere inesattezze. Segnalate eventuali errori e rimuoveremo gli annunci non conformi.
L'ESATTEZZA DI TUTTI I DATI PUBBLICATI INOLTRE SARA' CONFERMATA IN SEDE DI CONSULENZA.
Se vuoi saperne di più, puoi parlare con Aste Florio.

Di solito risponde entro 2 giorni

Caratteristiche
Contratto
Vendita
Tipologia
Capannone | Intera proprietà | Classe immobile media
Superficie
1.286 m²
Locali
5+ locali, 3+ bagni, cucina angolo cottura
Piano
Piano terra
Piani edificio
2
Dati catastali
Foglio 114 - Particella 431
Altre caratteristiche
  • Parzialmente Arredato
Dettaglio superficie

Capannone

Piano
Piano terra
Superficie
1.286,0 m²
Coefficiente
100%
Tipo superficie
Principale
Sup. commerciale
1.286,0 m²
Efficienza energetica

Consumo di energia

≥ 175 kWh/m² annoG

Dettaglio vendite
Tipo vendita
Competitiva
Data vendita
14/11/2025, 10:00
Stato
Non partecipabile
Per partecipare
Offerta minima
€ 383.140,00
Spesa prenota debito
No
Contributo non dovuto
No
Referente
SPOLETO-14/11/2025-2/2016-Rosa-4458864
Dettagli lotto
Lotto numero
19982
Numero immobili
1
Categoria
IMMOBILE COMMERCIALE
Dati procedura
Aggiornato il
03/10/2025
Numero procedura
2016
Planimetria
Capture
Scopri ogni angolo dell'immobile
+9
Opzioni aggiuntive

Contatta l'inserzionista