Villa unifamiliare Contrada Sant'Esdra, Pontecorvo

€ 2.300.000
5+
1.660 m²
3+
Lusso
Balcone
Terrazzo
Arredato
Cantina

Nota

Annuncio aggiornato il 04/10/2025
Descrizione

riferimento: EK-123623329

Tenuta con Parco – Villa Hotel AgriSpa

Tenuta con Parco – Villa Hotel AgriSpa
Pontecorvo - Contrada Sant'Esdra - 9 km dal casello autostradale A1 - 1 ora da Roma e Napoli:
scopri la magica bellezza di questa maestosa villa, immersa nel verde della Valle del Liri e circondata dai suggestivi Monti Ausoni. Situata all’interno del Parco Nazionale degli Aurunci, questa proprietà rappresenta un angolo di paradiso, dove la tranquillità e la natura si fondono in un’atmosfera incantevole.
L'hotel, finemente arredato, offre una riservata e completa SPA, ideale per rigenerarsi dopo una giornata trascorsa a esplorare i sentieri circostanti.
La villa vanta un'ampia zona relax esterna con piscina, perfetta per godere del sole e del paesaggio.
La cucina ariosa e spaziosa è direttamente collegata con l’ampia dispensa e la zona esterna.
L’area ristorante calda e luminosa offre spazi interni ed esterni.
I bambini possono divertirsi nell'area giochi interna, mentre gli adulti si rilassano nella serenità del bosco di querce che circonda la proprietà di circa 16 ettari.
Le camere, arredate in stile moderno e funzionale, offrono diverse tipologie per soddisfare ogni esigenza: dalle Classic Matrimoniali alle Triple Deluxe, fino alle raffinate superior e alle eccelse SPA Deluxe.
Fonte di una considerevole rendita questa villa/AgriSpa è un'opportunità imperdibile per chi cerca un investimento di qualità.
Non perdere l'occasione di vivere in un luogo dove ogni giorno è una fiaba!
Se vuoi saperne di più, puoi parlare con Fabiano Falovo.
Caratteristiche
Tipologia
Villa unifamiliare | Intera proprietà | Immobile di lusso
Contratto
Vendita | Immobile a reddito
Piano
Piano terra
Piani edificio
4
Ascensore
Superficie
1.660 m²
Locali
5+
Camere da letto
18
Cucina
Cucina abitabile
Bagni
3+
Arredato
Balcone
Terrazzo
Box, posti auto
50 in parcheggio/garage comune
Riscaldamento
Autonomo
Climatizzazione
Autonomo
Altre caratteristiche
  • Armadio a muro
  • Caminetto
  • Esposizione esterna
  • Impianto di allarme
  • Infissi esterni in doppio vetro / PVC
  • Porta blindata
  • Taverna
  • Cancello elettrico
Dettaglio superficie

Terreno

Piano
Piano terra
Superficie
160.000,0 m²
Coefficiente
0.1%
Tipo superficie
Principale
Sup. commerciale
160,0 m²

Abitazione

Piano
Piano terra
Superficie
1.500,0 m²
Coefficiente
100%
Tipo superficie
Principale
Sup. commerciale
1.500,0 m²
Informazioni sul prezzo
Prezzo
€ 2.300.000
Prezzo al m²
1.386 €/m²
New
Dettaglio dei costi
Spese condominio
Nessuna spesa condominiale
Efficienza energetica

Consumo di energia

≥ 175 kWh/m² annoD

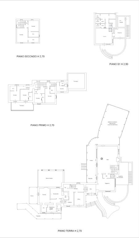
Planimetria
37
38
Scopri ogni angolo dell'immobile
+37
Mutuo
%
Durata del mutuo

Rata da € 6.831 al mese

€ 690.000 (30%)

€ 1.610.000 (70%)

Vuoi sapere che mutuo puoi richiedere?

Opzioni aggiuntive

Contatta l'inserzionista

Oppure