Palazzo - Edificio in Vendita

€ 207.000
€ 236.000(-12,3%)
3
185 m²
3
1

Nota

Annuncio aggiornato il 25/11/2025
Descrizione

riferimento: Cod. rif 3261888

Palazzina

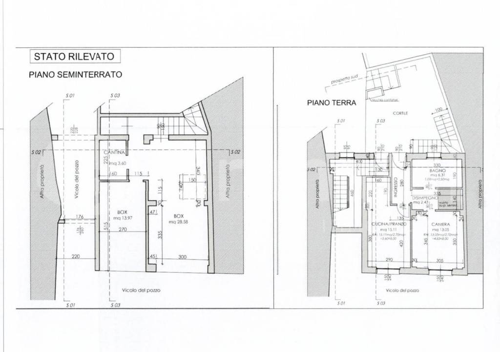
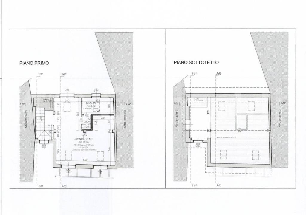
In Centro Besana Brianza proponiamo edificio indipendente oggetto di intervento di riattazione che comprende cappotto esterno sostituzione degli infissi rifacimento tetto e impianti idraulici ed elettrici, a soli passi da tutti i servizi essenziali e dal centro città. Con una superficie di 185 mq, questa proprietà offre due appartamenti separati, al piano terra un bilocale con giardinetto privato e box singolo pronto per essere abitato, al piano primo un appartamento su due livelli di mq 120, Quest'ultimo appartamento e da terminare ed e attualmente al rustico. box singolo al piano inferiore.

La posizione strategica vicino alla stazione dei treni e dei bus rende gli spostamenti comodi e veloci, mentre la presenza di bar, caffè, ristoranti, biblioteca, farmacia e teatro nelle vicinanze arricchisce la vita quotidiana.
La palazzina posizionata nel cuore dell'alta Brianza ideale per momenti di relax all'aria aperta. Una soluzione abitativa unica e versatile, perfetta per chi desidera vivere in un ambiente accogliente e ben collegato, alle grandi città.

Ottimo per investitori o famiglie allargate che hanno esigenze abitative legate alla vicinanza familiare.
Caratteristiche
Contratto
Vendita
Tipologia
Palazzo - Edificio
Superficie
185 m²
Locali
3 locali, 3 bagni
Piano
Box, posti auto
2 in box privato/box in garage
Uso edificio attuale
Residenziale
Altre caratteristiche
  • Infissi esterni in vetro / PVC
Dettaglio superficie

Altro

Piano
1
Superficie
185,0 m²
Coefficiente
100%
Tipo superficie
Principale
Sup. commerciale
185,0 m²
Informazioni sul prezzo
Prezzo
€ 207.000
Prezzo al m²
1.119 €/m²
New
Efficienza energetica
  • Anno di costruzione

    2024
  • Certificazione energetica

    Non classificabile
Planimetria
Scan2025-09-22_154713_000.jpg
Scan2025-09-22_154713_001.jpg
Scan2025-09-22_154713_002.jpg
Scopri ogni angolo dell'immobile
+25
Mutuo
%
Durata del mutuo

Rata da € 615 al mese

€ 62.100 (30%)

€ 144.900 (70%)

Vuoi un preventivo personalizzato e gratuito?

Opzioni aggiuntive

Contatta l'inserzionista

Oppure