map icon

Capannone in Vendita

Boara Pisani
€ 198.000
1
600 m²
1

Nota

Annuncio aggiornato il 09/10/2025
Descrizione

riferimento: 30683466-C104

Capannone, Boara Pisani

Situato in un contesto industriale, questo capannone rappresenta la soluzione ideale per le tue esigenze aziendali.
La struttura, di recente costruzione, è progettata per garantire funzionalità e comfort.

L'ampio spazio interno offre la possibilità di personalizzare l'ambiente secondo le tue necessità.

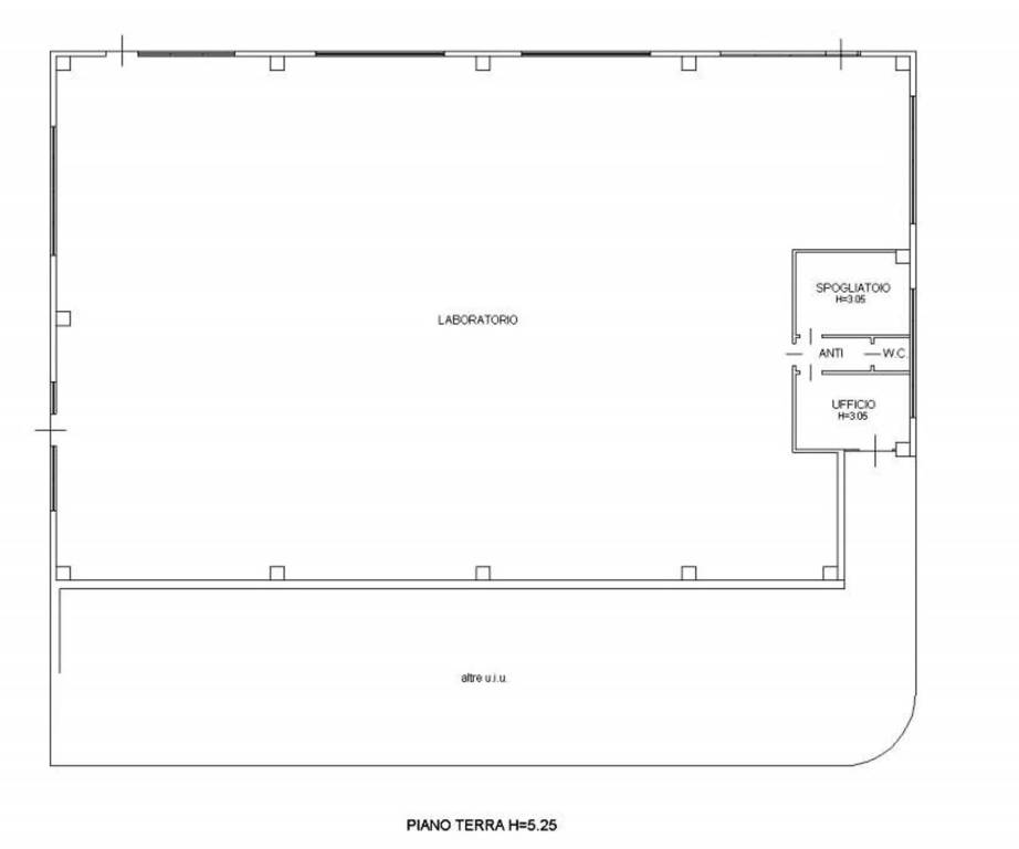
L'ufficio di 20 mq al piano terra è perfetto per gestire le operazioni quotidiane in un ambiente professionale e accogliente.
Il riscaldamento autonomo assicura una gestione efficiente dei costi energetici, mentre l'ingresso indipendente garantisce la massima privacy e accessibilità.

Contattaci per maggiori informazioni e per prenotare una visita.
Caratteristiche
Contratto
Vendita
Tipologia
Capannone
Superficie
600 m²
Locali
1 locale, 1 bagno
Informazioni sul prezzo
Prezzo
€ 198.000
Prezzo al m²
330 €/m²
New
Planimetria
Opzioni aggiuntive

Contatta l'inserzionista

Oppure