Azienda agricola in Vendita

€ 270.000
No
1
480 m²
2

Nota

Annuncio aggiornato il 10/10/2025
Descrizione

riferimento: 106769009

BAGNACAVALLO – CAMPAGNA
VENDESI CASA SINGOLA CON CAPANNONE E GIARDINO PRIVATO

In zona tranquilla immersa nel verde della campagna di Bagnacavallo, proponiamo in vendita casa indipendente con ampio capannone e servizi annessi.

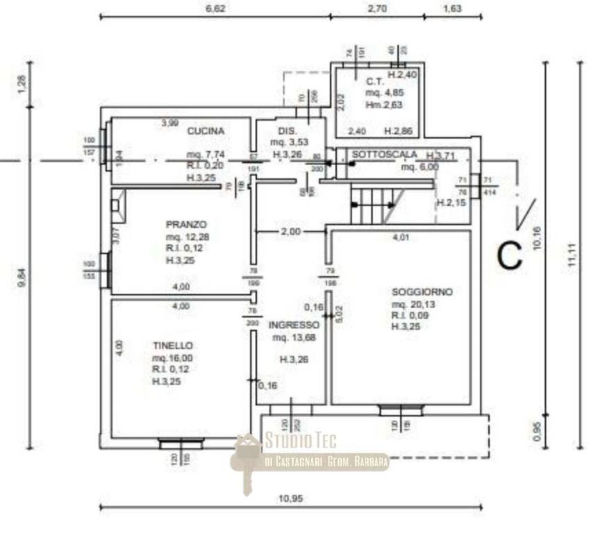
Casa di circa 180 mq, composta da:
Piano Terra

Soggiorno
Cucina
Tinello/Pranzo
Disimpegno
Centrale termica

Piano Primo

Tre camere da letto
Bagno

Capannone di circa 300 mq disposto su due livelli ad uso deposito, ideale per attività artigianali o come spazio multifunzionale.

Giardino privato di circa 3.200 mq, che garantisce privacy e ampi spazi esterni.

L’indirizzo fornito è puramente indicativo della zona e non corrisponde all’esatta ubicazione dell’immobile.

Per informazioni e visite:
Contattare esclusivamente in orari d’ufficio:
Lun–Ven: 9:30–12:30 | 16:30–19:30

StudioTec Immobiliare
Via Mazzini 14/A – Ravenna
‍ Geom. Barbara Castagnari
Caratteristiche
Contratto
Vendita
Tipologia
Attività commerciale | senza mura
Superficie
480 m²
Locali
1 locale, 2 bagni
Piani edificio
2
Disponibilità
Libero
Informazioni sul prezzo
Prezzo
€ 270.000
Prezzo al m²
563 €/m²
New
Efficienza energetica

Consumo di energia

175 kWh/m² annoG

Planimetria
Scopri ogni angolo dell'immobile
+14
Opzioni aggiuntive

Contatta l'inserzionista

Oppure