Appartamento via Beppe Fenoglio 4, Settimo Torinese

€ 279.000
5+
170 m²
2
4 - 5
Balcone
Parzialmente Arredato
Cantina

Nota

Annuncio aggiornato il 16/01/2026
Descrizione

riferimento: EK-123794983

Ampio Alloggio Bi-livello con box auto

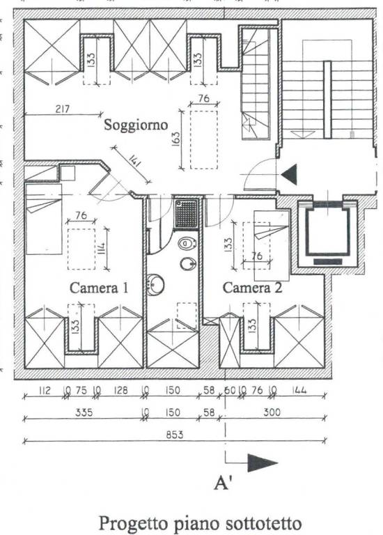
In posizione tranquilla contornata dal verde, ma nello stesso tempo comoda a tutti i servizi, proponiamo, in palazzina del 1994 realizzata completamente in paramano e rivista nelle parti in comune, alloggio bi-livello per un totale di 170 mq. composto da ingresso su ampio soggiorno living, cucina abitabile, camera da letto, bagno, lavanderia/ripostiglio e due balconi, inoltre collegato da scala interna e con ingresso indipendente da portoncino blindato che da sul pianerottolo del quinto ed ultimo piano, troviamo la mansarda Abitabile completamente rifinita e dotata di tutti i confort, composta da salottino con gradevole camino a legna, due camere da letto e bagno.
Completa la proprietà il locale cantina e il box auto compreso nel prezzo.
L'immobile si presenta in ottime condizioni interne e gode di un ottima luminosità grazie all'ottima esposizione e agli affacci completamente liberi.
Riscaldamento Autonomo con caldaia sostituita circa 4 anni fa
Accessori in dotazione all' immobile: Aria Condizionata - Zanzariere - Antifurto volumetrico/perimetrale - Tende da sole estive ed invernali - Videocitofono
Ottima soluzione, visto il numero di camere, per famiglie con più figli oppure per chi necessita di spazi interni come zone lavoro, inoltre grazie all'accesso indipendente della mansarda si riesce a creare indipendenza tra i due piani.

Per visionare o chiedere informazioni su questo immobile, contattateci ai seguenti numeri:
- 345.38.11.886 potete chiamarci, inviarci un messaggio scritto o vocale su WhatsApp.
- e-mail: settimo@studioalfieri.net

Per vedere tutti i nostri prodotti e le nostre offerte visitate il nostro sito internet: www.studioalfieri.net Seguiteci anche su FACEBOOK e INSTAGRAM, clicca su Mi Piace sulla pagina di Studio Alfieri, così da esser sempre aggiornato su tutte le nostre nuove proposte e novità.

Per visionare o chiedere informazioni su questo immobile, contattateci ai seguenti numeri: - 345.38.11.886 potete chiamarci, inviarci un messaggio scritto o vocale su WhatsApp. - e-mail: settimo@studioalfieri.net
Per vedere tutti i nostri prodotti e le nostre offerte visitate il nostro sito internet: www.studioalfieri.net Seguiteci anche su FACEBOOK e INSTAGRAM, clicca su Mi Piace sulla pagina di Studio Alfieri, così da esser sempre aggiornato su tutte le nostre nuove proposte e novità.
Per visionare o chiedere informazioni su questo immobile, contattateci ai seguenti numeri: - 345.38.11.886 potete chiamarci, inviarci un messaggio scritto o vocale su WhatsApp. - e-mail: settimo@studioalfieri.net
Per vedere tutti i nostri prodotti e le nostre offerte visitate il nostro sito internet: www.studioalfieri.net Seguiteci anche su FACEBOOK e INSTAGRAM, clicca su Mi Piace sulla pagina di Studio Alfieri, così da esser sempre aggiornato su tutte le nostre nuove proposte e novità.
Se vuoi saperne di più, puoi parlare con Daniele Ruocco.
Caratteristiche
Tipologia
Appartamento | Intera proprietà
Contratto
Vendita
Piano
Da 4 a 5
Piani edificio
5
Ascensore
Superficie
170 m²
Locali
5+
Camere da letto
3
Cucina
Cucina abitabile
Bagni
2
Arredato
Parzialmente Arredato
Balcone
Terrazzo
No
Box, posti auto
1 in box privato/box in garage
Riscaldamento
Autonomo, a radiatori, alimentato a metano
Climatizzazione
Autonomo
Altre caratteristiche
  • Armadio a muro
  • Caminetto
  • Esposizione doppia
  • Fibra ottica
  • Impianto di allarme
  • Infissi esterni in doppio vetro / legno
  • Mansarda
  • Porta blindata
Dettaglio superficie

Abitazione

Piano
4
Superficie
95,0 m²
Coefficiente
100%
Tipo superficie
Principale
Sup. commerciale
95,0 m²

Mansarda

Piano
5
Superficie
75,0 m²
Coefficiente
100%
Tipo superficie
Principale
Sup. commerciale
75,0 m²
Informazioni sul prezzo
Prezzo
€ 279.000
Prezzo al m²
1.641 €/m²
Dettaglio dei costi
Spese condominio
€ 120/mese
Efficienza energetica
  • Anno di costruzione

    1994
  • Stato

    Buono / Abitabile
  • Riscaldamento

    Autonomo, a radiatori, alimentato a metano
  • Climatizzatore

    Autonomo
Planimetria
S22C-6e25101011340_0001
S22C-6e25101011350_0001
Scopri ogni angolo dell'immobile
+41
Mutuo
%
Durata del mutuo

Rata da € 808 al mese

€ 83.700 (30%)

€ 195.300 (70%)

Vuoi sapere che mutuo puoi richiedere?

Opzioni aggiuntive

Contatta l'inserzionista

Oppure